
济南历下区作为城市文化、医疗与教育资源的聚集地,具备发展高端康养项目的天然优势,解决长者从“健康活力养老”到“专业康复护理”的全周期健康养老需求。
项目选址距趵突泉景区仅13分钟车程,7公里范围内覆盖山东6所三甲医院,形成“15分钟医疗急救圈”。这一区位选择打破了传统养老项目“远离城市”的惯性思维,通过“城市融入”策略,让长者既能享受便捷服务,又能保持社会连接。

槿椿里的新·生·活
回溯时光,享受当下
一碗汤的距离
城市和时间的快节奏犹如河流,
总是消逝的很快将川流不息的时间长河引入岁月里,
让激流蔓延,让时光不老,让人生无限。

养老社区是生活方式的创造,江河设计JHD希望更多地满足老年人生理、心理、社会的需求,为居住在这里的老人创造一个“新生活”——打造一个兼具“互动、活力、自由、有趣、多维度体现自身价值感”的体验式空间,从而催生项目成为令每位老人心之向往的晚年生活基地。

槿椿·时光
代表这是一种最棒的生活方式,
更乐观的生活态度,
更高阶平和的生活方式,
更志同道合的社群。

对于当下浮躁的社会涌流,精神疗愈的作用相当重要。在使康养空间从简单的疗养功能空间进而进化为重视康复康养并帮助回归社会的发展空间,要让人在康养空间当中保持身心灵的平衡。空间环境品质与疗愈理念设计密不可分,康养空间设计中要保证自然元素、实际环境元素,社会环境元素与象征环境元素循环互补,实现身体、心灵、感情和精神的痊愈。

从生理特性来说,设计适老化设施时一方面考虑由于介助、介护老人的身体障碍而产生的特殊要求;另一方面也应基于人体工程学尺度方面的考虑,满足老年人全生命周期的一般化设计。
从心理特征来说,设计时一方面根据调研观察老年人所需所求,针对性设计迎合老年人心理需要;另外一方面利用空间营造,增加行为与空间交互作用,利用空间设计的关联性与感染性,引导老年人间接参与活力生活。

老有所医:项目在南区中心主楼的西侧 D-1首层设置康复门诊,面积约为2160㎡,D-1 2~4 层为康复病房,面积约6480㎡。在北区 A-3栋首层设置社区门诊,面积约为1982 ㎡。
老有所养:D-1 2~4层为康复病房可兼服务失智老人,北区 A-1为介助老年公寓,其余为活力老年公寓,服务于可独立活动的老年人。
老有所学:南区和北区分别选取 A-2 和 B-2 首层作为老年大学,设置健身、棋牌、绘画、手工、图书馆等设施,满足老人的心理和精神需求。
老有所为:利用入口广场、建筑之间的中庭、下沉广场、屋顶花园、阳台等为老年人提供安全享受自然的空间。减轻医护人员的照护强度的同时,满足老年人社交、散步、种花种菜等各种需求。



入户大堂是整体空间的引领者,新中式设计风格,吊顶造型诠释了主体元素“济南之山”的形式。打破常规大堂设计手法,本案营造了酒店会所的氛围,典雅而高贵,独特的养老大厅,园中园设计的融入,进一步刻画了中式风格。

餐厅设计延升并延续了“山”元素的新中式风格手法,普华而厚重,作为入住后使用率较高的空间,其舒适和便利的程度直接影响老年人的居住体验。餐厅不仅是为老年人提供日常餐饮的地方,同时在非就餐期间,可对其空间进行复合化设计,满足交流、阅读、举办各种活动等,提高空间利用率。


设计原则:空间划分形式多变,考虑不同老年人心理状态与用餐氛围倾向性,可设置开放、半开放、私密不同属性用餐环境,满足其差异化需求。餐桌椅家具布局灵活,可以自由组合移动。使其在用餐后转变为活动空间,变更空间使用属性,促进空间使用的延续性。

作为公共活动空间中具备较高人气和文化凝聚力的空间,包括老年大学、阅览室、书画室、教室、棋牌室、多功能厅等。依据老年人活动特征,可分为静态和动态两种空间属性。

接待、洽谈紧邻入口大厅、以茶室的功能形式接待老人及家庭成员,前期作为洽谈区,运营后,可作为老年人品茶、论茶的活动室。
以老年大学为核心的静态学习空间,主要针对自理老人开设书法课、手工课、电脑课等,在培养个人兴趣时获得成就感。同时吸引介护老人的加入,将技能教育课堂与康复训练结合,进行康复教学、技能训练,提升老年人使用相应辅具的能力,唤回老年人的个性活力。


设计原则:在静态学习空间,室外空间室内化,营造良好的自然采光、通风和安静的环境。

走廊地面铺设800mm×800mm的防滑地砖,为坐轮椅的老人提供方便。过道两侧距离地面900mm的墙壁上设置扶手,墙面设置一些装饰画和注意须知,科普一些必要知识。吊顶下吊200mm,使得视觉上走廊空间扩大,减轻压抑感。另外,安装智能化老年公寓环境监测系统,及时感知养老中心环境温湿度变化,防止意外。

设计原则:考虑老年人身体状况和交往需求,以及“随地性”和“随时性”的行为习惯,可将走廊复合化设计。


针对医养结合型设施的医疗部分,最特色的一个部分不是诊疗而是护理。一些护理空间的起源其实就是原本在整个居住单元体系里面,一些经常被频繁使用的房间变成了公共空间:诊断室、患者(长者)浴室、公共休息室、储存空间等。通过长时间的演化,现在的护理空间包括老人区域、治疗辅助区域、生活辅助区域和交通区域组成。

多功能厅延续了“山”的设计元素,“山”型的吊顶设计,最大化利用结构关系,多种氛围的灯光设计,满足不同场景的使用。打造通高空间,光线引入中庭,营造老年人参与的活力度, 满足老年人心理和感官的需求。

电梯厅一般位置流线便捷,人口密度相对较大区域,因此在电梯厅侧边设置休息座椅。设计结合转角的开放活动空间,创造半私密空间,通过点和线的结合形式,使其形成小组团的交流社交。


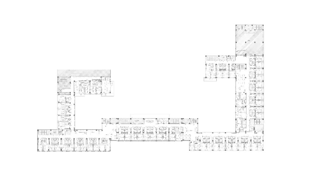
从平面布局图上可以看出,居室都以单人间的模式一字排开,在公共走道与建筑体量的转接处安排了医疗护理区域与公共活动区域。截取居住体量的一段可以发现,走廊的端头位置都是供居住单元内的老人平日活动的区域。
此区域紧邻医疗部分,一方面作为护理区的等候区域、另一方面也作为护士站的监护视野区。这是第一个视线通道,来自医护与居室外部公共活动区域的联系。

对于居室部分,除了朝向都是整体朝外之外,所有的卧室特征是都配备有“室内玻璃”,这是专门建立的第二个视觉通廊,来自居室内部与居住单元公共空间之间,联系着建筑内部的“乡村广场”。

居室空间内走廊设置为2400mm左右较为合适。入户门均宜设置为朝内开启。有助于老年人较为自由地活动交往、书画展示,促进老年人交流。考虑老年人身体状况和交往需求,以及“随地性”和“随时性”的行为习惯,可将走廊复合化设计,使交通空间和交流休憩空间并存,在行走路线中布置几个可提供老年人休憩的服务设施,提高老年人使用舒适度。


护理单元根据照护需求的不同,分为标准单元和失智单元两种。标准单元以收治照护等级三级以上的老年人为主,失智单元以中晚期失智症老年人为主,在房间组团类型、日常流线、安全防护等方面需进行特殊设计。

标准单元分布在二至六层,每层32床,主要由南向居室、多功能餐厅,北向的护士站、服务用房、交通核组成,根据医养结合需求。

主要采用以下几点设计策略:
安全高效“一管多“的流线设计。护士站临近交通核、办公区、多功能餐厅,位于整个平面流线中心,护理人员可同时兼顾电梯、护士站、多功能餐厅、走廊的情况,减少老年人发生意外的概率,并大幅缩短护理人员日常照护流线。

“小空间大功能”的服务用房。服务用房位于北侧,包括助浴间、洗衣污洗室、无障碍卫生间、布草间、轮椅存放区。公共助浴间由更衣区、无障碍卫生间、淋浴区组成,可满足浴床进出;利用走道空间,预留轮椅存放、储物空间,使整个服务空间更便捷实用。

失智单元北楼六楼为失智单元,与标准单元主要有以下几点不同:
情景式洄游路线。利用走道及多功能餐厅设计可供老年人游走的济南风情路线,并在路线旁预留休息空间,有助于失智症老人改善情绪。
隐藏流线,提高安全防护。失智单元内所有对外出入口进行隐藏处理,并配备定位和人脸识别,外窗采用钢化玻璃,减少老人走失风险。

卫生间首要重视的是安全性,采用防滑地砖,增加地板砖面与人体或鞋底的摩擦,防止人打滑摔倒。地面积水可能会导致打滑,会有潜在风险。
卫生间设计中,马桶两侧皆设置支撑扶手,方便借力;同时在其中留出足够的空间,满足无障碍旋转半径;为了避免狭小的空间使人感到压抑,卫生间墙面贴浅色系墙面砖,给人在心灵上带来一种放松的感受,在视觉上给人一种空间被放大、通透的感觉。

进行医疗功能设计的时候,为了缓解老年人对医疗空间的抗拒感是设计出入口的重点,安静惬意,隐蔽舒适是满足老年人精神需求的。与传统喧嚣商业设计不同,通过外部将内部空间阻隔,通过灰空间进入内区,中庭作为集散场地,再有序分散使用人流,对老年人行为习惯存在适用匹配度。

候诊空间在康养空间环境中必不可少,在设计上,候诊空间有一级候诊和二级候诊等空间。 候诊空间在整个空间中起到了承上启下的作用。
首先,因为患者在候诊空间需要等待停留,所以候诊空间需要设计具备良好的通风采光条件,在设计上把候诊空间放在靠外墙或中庭布置,这样的话,就可以保证至少一些候诊空间能有良好的自然采光,让空气得以顺畅流通。
其次,在个别区域设计一些观赏元素,提高视觉感受,例如,加入一些小型盆景,艺术作品等,又或者加入一些数码设备,提高使用者视野。
项目信息
Project Information
设计面积 | 26916㎡
完工时间 | 2025.5
项目地址 | 山东济南
项目业主 | 济南历下控股集团
评论