

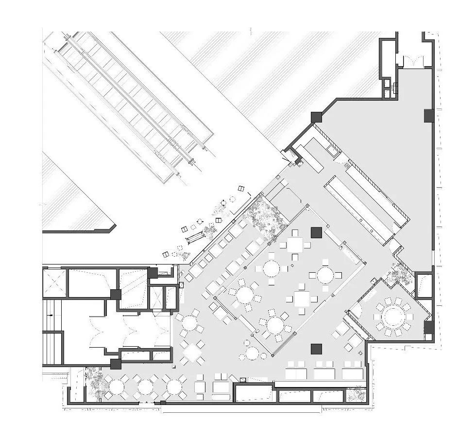
退化建筑为泉州风味餐厅「红椛」设计了他们位于杭州中心的新空间。我们将混凝土、原木与植物融合,在保留结构原貌的同时注入生活温度。传统渔网被重新演绎为墙面装饰与门帘,成为连接空间与记忆的隐性符号,也唤起闽南沿海的文化意象。
Devolution designed a new space for “ANG-HOA,” a Quanzhou-style restaurant located in Hangzhou Center. Blending concrete, natural wood, and greenery, the design retains the raw structure while infusing it with a sense of lived warmth. Traditional fishing nets are recreated as wall decor and door curtains, serving as subtle symbols that link space and memory, evoking cultural imagery of the southern Fujian coast.









内部以微型庭院、开放式厨房与陈列架体构建多重场域,使餐饮行为融入一种更具日常性与展示性的空间逻辑。照明采用局部点光源,营造出克制而温和的氛围。整体风格淡化商业痕迹,更趋近一个具有在地叙事与生活感知的当代表达。
Inside, a layered spatial experience is created through micro courtyards, an open kitchen, and modular shelving, allowing dining to merge with everyday rhythms. Localized point lighting creates a restrained and gentle atmosphere. The overall style softens overt commercial elements, offering a contemporary expression rooted in local narratives and sensory experience.












项目信息
项目名称:红椛杭州中心店
项目面积:约370㎡
项目地点:中国浙江省杭州市拱墅区展览东路150号杭州中心7楼713
项目完工时间:2025年6月
空间设计:DEVOLUTION退化建筑
主创团队:汤建松 王琦
设计团队:黄龙涛 林程辉
项目摄影:Shaoping Pan
施工单位:EMCC
家具定制:集野木工
景观设计:四两山人
渔网编织:jeje
Project information
Project name: ANG-HOA in Hangzhou Center
Design: DEVOLUTION退化建筑
Completion Year: June, 2025
Project location: Tianshui Residential District Zhanlan East Road No.150 Hangzhou Center L713 Store, Gongshu, Hangzhou, Zhejiang, China
Leader designer: Tang Jiansong, Wang Qi
Design team: Huang Longtao, Lin Chenghui
Gross built area: about 370 ㎡
Photo credit: Shaoping Pan
Construction Team: EMCC
Custom furniture: ZEA WOODWORKING
Landscape design: Si Liang Shan Ren
Fishing nets knitting: jeje


评论