DESIGN
项目概览
职教新标·智汇立方
7月26日,智汇上合·2025职业教育治理国际学术研讨会在天津职业技术师范大学的技能实训楼隆重召开。俄罗斯、白俄罗斯等上合组织成员国代表齐聚,共商职教发展大计。技能实训楼是天津大学建筑设计规划研究总院(以下简称设计总院)在这所大学设计建成的最新的一个标志性建筑,由设计总院本土万象设计工作室与设计三院联合设计。

天津职业技术师范大学成立于1979年,是我国最早建立的以培养职教师资为主的师范院校,由教育部、人社部与天津市政府共建,被誉为“全国职业技术师范教育第一校”、“中国培养职教师资的摇篮”。
技能实训楼是天津职业技术师范大学的标志性建筑,位于东校区西北部,总建筑面积38125平方米,地上9层,地下1层,高46.8米。项目毗邻大沽南路城市主干道,东接体育馆,西连主教学楼,地处津滨大道与外环线交汇处,既是校园核心建筑,也是展示城市形象的重要窗口。

和韵双辉
西校区主教学楼以竖向线条、三段式构成和现代手法营造出新古典气韵;东校区体育馆,则采用灵动折线和虚实对比勾勒出腾飞之势。而坐落于两座建筑之间的技能实训楼,正巧妙地让庄重与动感交汇,在呼应两侧建筑特质的同时,在传统与现代之间完成了一场自然的过渡与融合。

明窗匠构
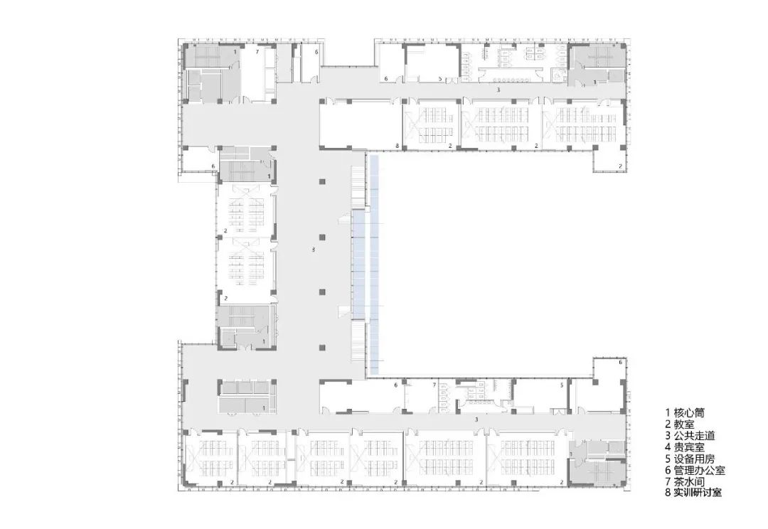
为契合职技教育“产教融合” 的特点,技能实训楼打造了理实一体的教学空间。其中,一至三层设置入口门厅、展示空间 、千人报告厅等,满足大空间场所的使用需求;四至九层采用 U 型布局,分布实训、教学和科研用房,既保证了良好朝向,也获得了充足的采光与通风。
U 型建筑体量与顶部空中连廊形成流线与形体的闭合,让东立面化作自带职业特色的 “职教技能展示之窗”;通透界面更与体育馆形成一脉贯通的视线通廊。设计通过对空间功能进行有机地重组,赋予建筑 “外部方正,内有乾坤” 的独特格局,由此构建起 “教学 - 实训 - 展示” 三位一体的立体化教育场景。



逐梦天阶
在东西立面的设计上,将模块化的铝板递进排序,在参数化设计的精密控制下,化作阶梯状造型,勾勒出蕴藏着职业成长意象的“技能攀升阶梯”。斜向上升的悬挑结构与立体阶梯碰撞出极强的动态张力,非对称的构图打破了规整体量的静态感,更寓意着职业教育发展螺旋上升的美好愿景,让建筑立面俨然成为追寻技能成长的逐梦阶梯。


律动方间
虚实空间的穿插组合,让规整边框内的建筑形体产生视觉上的流动变形,仿佛有了动态生长之势;以线面体结合的方式,使不同立面的斜向元素巧妙呈现出同角度的平行趋势,酝酿出奇妙的视觉感受;而竖向线条通过比例变化的组合,既从视觉上弱化了方正建筑的厚重感,更让整栋建筑透出纤细的韵律和轻盈的节奏。

时光叠院
报告厅上方的空中庭院,承载着学习、交流、休闲等功能,同时巧妙融合了场地内外多样的空间形态,化作如沙漏般层次丰富的地坪,与院落内部立面如梯田般错落有致的空间形式相呼应。那流淌的“沙粒”,仿佛在轻声诉说:光阴似箭,日月如梭,时刻提醒学子们珍惜校园里的每一寸时光。


多维汇智
技能实训楼打破了传统教学楼封闭单一的空间模式,以开放式布局消除学科之间的壁垒和师生之间的空间界限,打造出一个能让大家自由交流、多元互动的学术天地。为了鼓励不同学院的学生开展跨学科、跨专业的合作与交流,整栋实训楼的室内外都设置了大量交流空间。在门厅、报告厅、开敞楼梯交流区、空中院落、空中连廊和室外景观等重点区域营造出充满活力、自由创新的校园氛围。


项目图纸








项目信息
项目名称丨天津职业技术师范大学技能实训楼
项目类型丨教育建筑
项目地址丨天津市
建筑面积丨38125㎡
项目总负责人丨谌谦
主创建筑师丨赵煜
工程主持人丨宦新
方案设计团队丨本土万象设计工作室
施工图设计团队丨本土万象设计工作室、设计三院
项目设计&完成年份丨2020年-2024年
评论