
▲建筑效果图

城市设计
BEA维也纳团队的这个中标项目,位于维也纳第八区。这里城市空间的品质存巨大差异。
虽然有良好的绿地,但街道建筑却相对混乱。设计的首要目的是创造一个整体,弥补现有的城市缺陷,优化城市空间。
按类型学理念,设计将新建筑群理解为差异化和同质性的有机融合体。建筑像街区式住宅一样嵌入街区边界,将城市空间视为具可添加性和可操作性的不断完善的过程。这种小规模的添加为城市和广场增添新的色彩。
然而,对城市建筑的重新解释并不意味着这里应该出现一系列相对独立的城市建筑。串联而又叠加式的体块使得形体简洁。这种“城市住宅”形式的建造为第八区的带来了视觉连续性。 建筑首先是确立和强化街道的边界。但适当的退后,特别是建筑的上部,可以为植被提供了更多的空间,有利于给城市带来良好的环境和气候。
沿街立面的凹凸,强调了沿街住宅群的概念,在地形特征和环境的融合之间取得平衡。建筑所处的第八区中心位置需要一个公共性的建筑,富有雕塑感的立面结构既突出了建筑形象,又确保了城市空间的连续性。
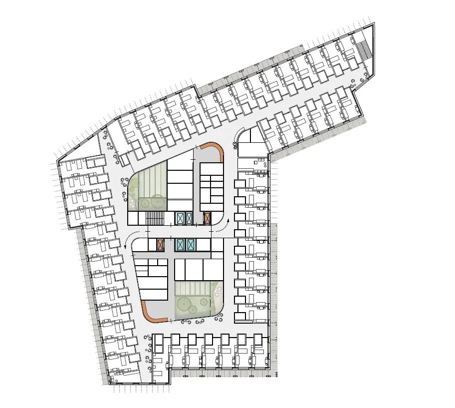
▲首层平面建筑设计
近年来,医疗建筑的设计迈出了非常重要的一步,从现代主义的机器转而侧重关注人、人的愿望、需求和梦想,这种变化也体现在设计中。整个建筑体被划分为各个清晰可辨的小单元。框架型窗户作为一个基本单元确定了人的尺度,也形成了建筑的整体性。当然,这种多样性是从室内向室外看时特别明显。
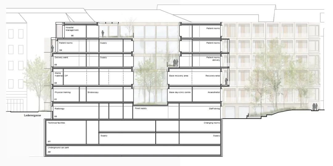
摆脱现代主义思维束缚的另一个重要方面是朝向的优化。在机舱里只有机械工程师知道朝向,而在医院里的每个人都应该容易辨别自己的空间位置和方向。
▲标准层平面图建筑必须做到“不言自明”,一个从路线到空间体验都易于理解的设计对医院建筑来说是非常必要的。设计沿街强调入口,入口通向接待处,然后清晰地引导人们到达想去的地方。一楼被设计成一个交流中心,从街道人们可以直接到达研讨中心和配套自助餐厅,这些都为访客提供了方便。患者在一楼找到放射科,工作人员也在整个街区找到餐厅,室外道路的连接也非常便利。
▲中庭效果图位于两层中庭的接待区如酒店大堂一样明亮宽敞,引导人往上走——这是手术室和诊断室所在的地方,所有这些房间都有自然光,同时贯通各个楼层的两个庭院都为室内带来自然光。走道与立面平行,两端是可开窗的等候区。走廊转角处采用退后的弧线指引,使建筑直接呼应人的行为。
▲沿街立面立面
立面旨在传达建筑的开放性,框架式的窗户作为最小单元从室外就可以感受到,这与人的尺度相关,同时具有一定的体量。从内部看,宽大的玻璃窗和绿化阳台充当过渡,卧室里的半透明窗帘促进了亲密感。在没有阳台的房间里,玻璃用木制元素装饰。病房的窗户可以打开,提供新鲜空气,并改善医院的压抑感和住院者的自主性。立面材料是染色玻璃纤维混凝土,它是纯矿物的,也是环保的,经久耐用,后期几乎无需维护。
▲室内效果图康复建筑
事实证明,建筑对康复过程有积极的作用。为减少压抑感,病房和候诊区使用天然材料,尤其是木材。照明的优化也增加了对房间尺度的感知,使住院变得更加愉快,从而缩短住院时间。
▲剖面图室外空间
在维也纳第八区,绿色户外空间特别需要保护和扩建,这是第八区的重要品质之一。研究表明,与自然的接触可以缓解病人的心理压力,减轻病痛。毫无疑问,新的景观公园将成为该地区景点。上层为公共绿地,下层为诊所的私人户外区域。这两个区域不是用栅栏分隔,而是以郁郁葱葱的植物隔开。东侧被植被覆盖的公共通道,成为贯穿基地南北的“捷径”。
私人诊所区将配备咖啡馆的户外家具以及各种娱乐场所。绿化配置显著增加小环境的生物多样性,改善了小气候,并提供了更多的遮荫。医院的5层露台上也将绿树成荫。
项目信息:
规模:120张床位(3个护理病房)
主要功能:手术室、日间诊所、手术中心以及产科和产科病房
评论