合肥芯碁微装是一家以微纳直写光刻技术为核心的国家级高新技术企业。其位于合肥高新区的智能化研发制造基地,整合了办公、研发、生产及员工公寓等多元功能。高标准打造的园区及办公、生产环境,为员工提供了简洁、高效、明快、舒适的空间体验,也为提升公司规模化生产能力以及市场份额奠定了产能基础。

园区鸟瞰图
1 号楼作为园区的办公与研发主楼,集成了丰富的功能模块:首层设有前厅接待区、展示区及会议室;其余楼层包含标准办公区、会议空间,以及兼具接待与休闲功能的综合楼层。
本项目设计以空间流动性为核心导向,通过开放融合各类功能区域,打破传统边界划分。这种无边界的联动设计,不仅塑造出富有张力的空间表情,更构建起层次连贯的空间序列。其中,楼栋首层的规划逻辑,正是对这种流动性设计的典型呈现。

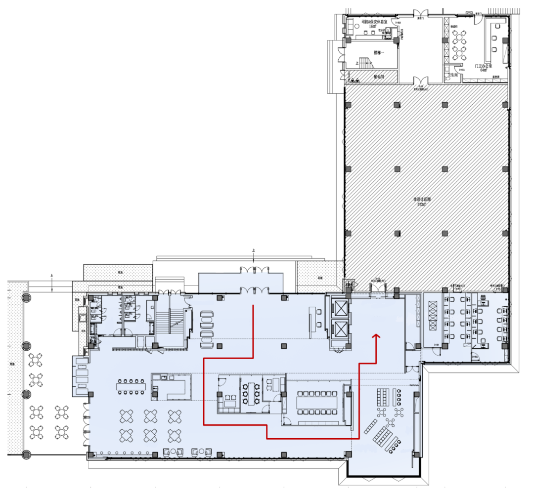
首层平面图
首层平面布局中,沿建筑外幕墙逆时针行进,依次串联起接待大堂、等候区、休闲咖啡区、开放式企业展厅与电梯厅(竖向交通枢纽)。环形动线中央设对外接待会议区,外环空间贯通通透,以简洁明亮的基调营造 “移步易景” 的体验 —— 沿途以多元视觉亮点串联,为不同参访者赋予差异化的空间感知与感官共鸣。

首层接待大堂

二层办公空间与首层大堂的分隔墙体,其上半段采用通透玻璃隔墙设计。这一处理既从立面维度丰富了大堂的空间层次,又使二层内侧办公区得以间接引入大堂的自然光线,让整体空间的光环境更显舒适宜人。



休闲咖啡区



朝向外窗的台阶式分段墙体上,依次布置企业介绍(芯碁)、发展历程、技术专利及分享区等展示模块。开放式的空间布局,让客户接待与参访体验更显灵活友好。



标准办公楼层中,设置了多处可切换使用场景的共享空间,兼具灵动办公与休闲分享功能。空间处理以硬朗洗练为基调,营造出富有速率感与光感的空间氛围,与芯碁的事业特质形成完美呼应。


评论