项目概况
01
高栏港综合保税区于2018年2月经国务院批准设立,坐落于珠海西南端南水镇,距离华南沿海主枢纽港高栏港2公里,距离珠海唯一的货运铁路广珠铁路高栏港站500米,与珠海机场空港直线距离16公里,形成了“海陆空铁四位一体”的立体交通体系和功能完备的江海、海铁、海公、海空、管道多式联运体系。

∆基本地理位置
功能优先 极简设计
02
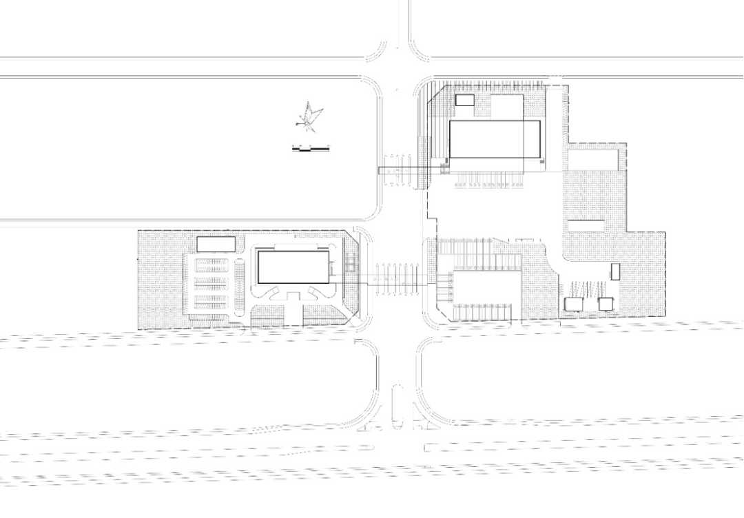
高栏港综合保税区基础设施、监管设施功能混合,分为综合服务区和查验作业区两个区域,建有综合服务楼、卡口、查验监管仓库及平台等智能化、现代化配套设施,以及工业生产所需的危险废物处理中心、工业污水处理厂。
集约度高、周转速度快是保税区最大的特点,建筑设计上以功能优先为原则,不为了追求炫酷的造型,而是强调综保区的运行效率,将这种功能特点转化为海边水平修长方形体量。而且低体形系数的长方形体量也能降低海水侵袭对于地基的影响以及台风天气对建筑的强度影响,同时契合到政府建筑稳定大气简约的气质。

∆总平面图

∆西北角人视

∆海关服务大厅
建筑契合环境
03
本项目为夏热冬暖地区沿海建筑,建筑设计上考虑美观形式契合以及地域使用契合,以达建筑与环境相融合的设计。满足建筑基本功能同时,提升建筑使用舒适度。
海边的水平线:
建筑与环境之间是相辅相成的,建筑的语言应该与环境相协调。设计师从杉本博司《海景》中海平面的摄影作品中获得灵感,立面以波纹板作为基本元素,波纹板反射天光与海岸波纹交相呼应,致敬《海景》中永恒与宁静的禅意。

∆实景照

∆北侧人视

∆北侧鸟瞰
低能耗的建筑
04
对于夏热冬暖地区建筑,办公区空调制冷占据全年大半的时间,而通过窗户进入室内的太阳辐射对于室内热环境具有很大的影响。相关研究表明,外遮阳设施可以降低建筑表面80%的太阳辐射得热,是比内遮阳设施更为有效的降温措施。
因此,对于综合服务楼而言,层间采用银色金属线条具有较高的反射能力,加大装饰进深,形成自带外遮阳系统,美观效果同时,给室内带来舒适均匀的采光。波纹板背部与建筑之间形成空腔,利用穿孔板形成流通的空气层,避免金属直接作为建筑外立面的直接热传导。窗部分采用低能耗的Low-E玻璃进一步降低进入室内的太阳辐射热与传导热。综合以上设计措施减少空调能耗,综合服务楼达到国家二星绿建标准。

∆波纹铝板幕墙节点大样示意



∆立面细节
设计反思
05
珠海高栏港综合保税区综合服务楼及查验检疫设施项目综合考虑了建筑与环境以及使用者的关系。通过极简的设计达到绿色高效的使用体验。但是在设计中仍有一些值得反思的地方:
1. 除综合服务楼部分采用波纹铝板,为达到综合经济效益,仓库类型采用波纹钢板直接作为外立面的方式,施工较为粗糙且横向波纹板容易囤积雨水和灰尘;
2. 综合服务楼部分波纹板交接施工粗糙出现缝隙,立面交接处应当注意收边收口的处理与交接;
3. 原有综合服务楼设计南北各有一个通高边庭花园,可以有效地提升办公空间的体验感以及利用烟囱效应拔风,改善过渡季节的自然通风。后因建设周期原因取消,也是本项目的一个遗憾。

∆原方案剖面示意
2023年2月10日,由海关总署、国家发展和改革委、商务部、财政部等七部委组成的联合验收组,通过视频连线方式,对珠海高栏港综合保税区进行验收,经评审后一致同意珠海高栏港综合保税区通过验收。希望高栏港综保区发挥地域以及政策优势,为珠海加快建设开放型经济、加速融入国内国际双循环发展新格局贡献一份力量。
项目档案
项目名称:珠海高栏港综合保税区综合服务楼及查验检疫设施项目
建设单位:珠海华港建设投资有限公司
项目地址:广东省珠海市
用地面积:79071.05m2
建筑面积:20878.57m2
全过程设计: CCDI悉地国际,21设计工作室
设计总负责:王浪
建筑专业(方案):张英新、林嘉、刘晓泉、吴毓璇
建筑专业(施工图):金艾、李义华、张超、黎盼
结构专业:李建伟、丁屹、吴娟、郭亚夫
机电专业:杨得志(暖通)、温小生(暖通)焦培荣(电气)、陈贵君(电气)、王励(给排水)、刘康荣(给排水)
设计时间:2017/2022
摄影:方健
评论