
扬州无形妙有唐卡艺术空间
——静谧的精神
本案位于扬州,为“无形妙有”打造的唐卡艺术展示空间。空间也提供茶饮、休憩与文化交流的场所。我们希望它不仅仅是一个展厅,更是一处可驻足、可沉思、可对话的精神空间。
This project in Yangzhou is a thangka art space created for “Wuxing Miaoyou.” It offers tea lounge, and a space for quiet reflection and cultural exchange. More than an exhibition, it invites visitors to pause, connect, and experience a sense of calm.



“轴”与“核”
我们希望空间本身具备一种精神性与层次感,设计不在于繁复的装饰,而是以最简洁的姿态衬托唐卡的文化底蕴。空间作为背景退让下来,让视线、光线、注意力都聚焦在作品本身。
We wanted the space to evoke a sense of spirituality and depth. Rather than relying on elaborate decoration, the design takes a minimal approach to highlight the cultural richness of the thangka.




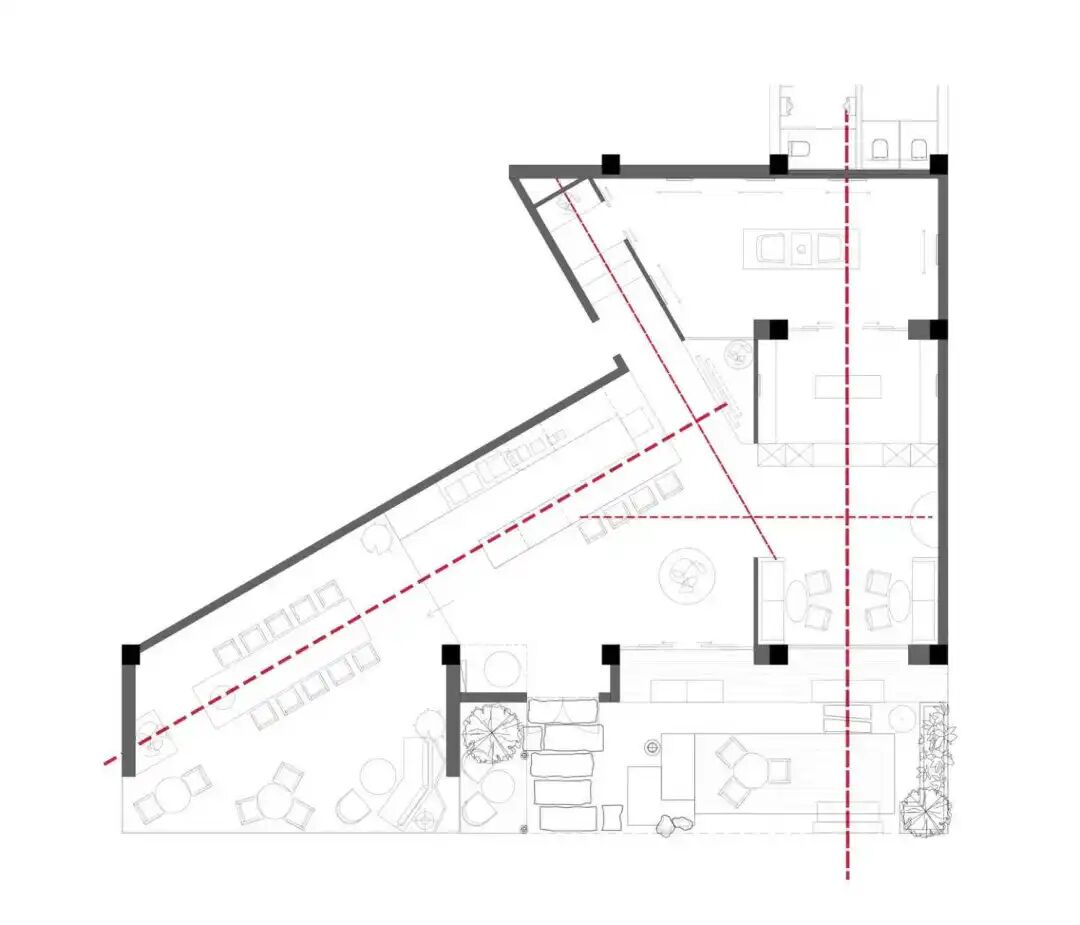
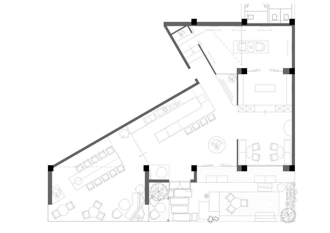
由于原始空间形状复杂,我们以轴线与尽头的视觉引导建立秩序,在有限的平面中组织出清晰的动线与节奏。同时将人的视线引导向空间中的一处处景致,从明亮过渡到昏暗,从休闲区进入展陈核心。
Given the irregular layout, we introduced axial lines and visual endpoints to create spatial order. Within a limited footprint, the plan organizes a clear rhythm and flow—guiding the eye from one scene to another, transitioning from light to dimness, from lounge area to exhibition core.



最核心的唐卡展陈空间被设置在最深处。人们需穿过休息区、展示区,方可抵达七幅唐卡悬挂的静心室。光线逐步减弱,节奏逐步放缓,红色墙面与黑色木地板共同营造出一种沉浸感,激发对作品的专注与敬畏。
The core thangka gallery is set at the deepest end of the space. As light gradually dims and the pace slows, red walls and dark wood flooring create an immersive setting—inviting focus, reverence, and quiet contemplation.



承载艺术
我们围绕“承载艺术”的理念,设计了一套精致而克制的展陈体系。木作结构、织物包裹、藏式灯光等细节,既为空间中的艺术品提供了稳固的呈现形式,也形成了特有的空间语言,与唐卡作品一同构成完整的体验叙事。
Centered on the idea of “carrying art,” we designed a refined and restrained display system. Wooden structures, fabric coverings, and hidden lighting offer stable presentation for the thangka pieces while forming a cohesive spatial language that complements and deepens the narrative of the experience.



材料选择上,我们延续唐卡的文化气质与手工质感。木饰面、织物、洞石等自然材料被用于地面、展台、家具表皮,构成空间的气质主线。这些材料不强调装饰性,而更像是沉静的基底,为精神性提供支撑。
We chose materials that echo the handcrafted, spiritual quality of thangka art. Natural elements like wood veneer, fabric, and travertine are used across floors, displays, and furniture surfaces—serving not as decoration, but as a quiet foundation that supports the space’s contemplative tone.



空间外部,我们设置了极具气场的吧台作为视觉核心,配合长桌、可移动家具,构成一个舒适的休闲区。这里既可用于日常手作活动,也可承载小型的交流与互动,为展陈之外创造出人与人之间的亲密时刻。
Outside the core gallery, a long bar anchors the space. Together with a long table and movable furniture, it forms a relaxed lounge area suited for daily craft sessions or small gatherings—fostering intimate moments beyond the exhibition itself.



这个空间并不寻求喧哗的视觉记忆,而是想为城市中创造一处可以慢下来的精神圆心。唐卡沉静地悬挂于空间的最深处,等待观者与它真正对视。在这里,我们期待人与作品的连接,也期待人被空间本身轻轻地包裹与唤醒。
This space offers a quiet pause within the city. The thangkas hang at its deepest point, inviting visitors to slow down, to connect—with the artwork, with themselves, and with the stillness the space holds.

项目平面图
项目地点:江苏扬州
项目面积:185 sqm
设计公司:白菜设计
空间摄影:图派视觉
评论