新时代背景下,职业教育早已超越“补充教育”的传统定位,成为国家人才培养体系中的“硬核支柱”——不仅是破解制造业“技能缺口”的关键举措,更是推动区域产业升级、实现协调发展的“动力引擎”。国家层面明确强调“职业教育与普通教育具有同等重要地位”,政策持续为职业教育注入新动能。在能源重镇榆林,随着《榆林市中等职业教育“十四五”发展规划》的实施,本土对“懂技术、留得住、用得上”的高素质技能人才需求日益迫切。
正是在“时代使命”与“地域需求”的双重召唤下,榆林市职业教育中心应运而生。榆林市职业教育中心项目选址榆林市芹河新区,项目建成后在推动榆林市 “一城五区” 规划落地、助力区域建设发展方面发挥积极作用,为城市整体发展布局注入新动能。我们以建筑为媒介、空间为平台,致力打造一所“扎根榆林、面向未来”的现代化职业院校——它不仅满足教学与实训需求,更成为衔接城市、传承文化、服务民生的重要纽带,定位成为助推黄河流域高质量发展的标志性教育地标。

△校园东侧鸟瞰图©THAD

△校园南侧鸟瞰图©THAD

构建“城校共生、功能联动” 的校园骨架
我们从榆林地域文化中汲取灵感,紧扣职业教育实际需求,通过“文化转译、功能整合、边界消融”三大策略,构建出高效、开放、富有温度的校园格局。项目将榆林传统书院“院落+轴线”的空间精髓以现代规划语言重新诠释,通过一条贯穿校园的主轴线串联多个尺度不一的景观院落,既延续传统书院的秩序感,又融入现代校园的开放与互动空间,使“礼乐有序、润物无声”的书院氛围在现代环境中焕发新生。
针对职业教育“教学—实训—生活—运动”四位一体的核心需求,我们采取“四区联动”的规划策略,各功能区既相对独立,又通过便捷的动线紧密衔接。教学楼居于校园核心,连廊贯通各栋,避免师生雨天奔波。生活区位于西北侧,远离城市主干道。运动区靠东布局,既屏蔽噪音干扰,也为“向城市开放”创造条件。
规划的一大亮点在于打破校园边界,将东侧运动区(包括乒羽训练馆、400米标准田径场及若干室外球场)纳入城市公共服务体系。该区域按陕西省第十七届省运会标准设计,既可承办省级赛事,赛后亦面向师生与市民开放,成为榆林全民健身的重要节点。专业运动资源从“校园专属”转变为“城市共享”,这种“赛时承赛、赛后惠民”的模式,使职业教育建筑超越单一办学功能,成为推动城校协同发展的社会基础设施,彰显教育资源的公共价值。

△实拍校园总平面图©THAD

△校园入口轴线©THAD

打造“在地表达、实用高效” 的空间载体
建筑设计以“简约实用、在地赋能”为原则,从形体、色彩、材料到空间细节,均呼应地域特质并契合职业教育需要,实现“低造价、高品质”的建设目标。
建筑形体简洁利落,摒弃冗余装饰。教学区与生活区采用4-6层小体量组合,乒羽训练馆、800人礼堂等大体量建筑则以竖向线条为主,通过高低错落的体量组合,抽象再现黄土高原“沟壑纵横”的地貌特征。立面色彩融入“黄土暖黄”作为点缀,使现代建筑承载榆林文化基因,避免“千校一面”。

△宿舍楼立面以具有现代感的白色为底色,点缀以具有地方特点的土黄色与天蓝色©THAD

△学生食堂©THAD
在总投资4.37亿元、总建筑面积12.99万平方米的成本与规模控制下,项目通过“成熟结构+高性价比材料”实现平衡:选用可靠的框架-剪力墙结构,满足大跨度实训空间和礼堂的荷载与抗震要求,节约特殊结构成本;外立面以涂料为主,替代昂贵石材与幕墙,通过色彩与质感搭配,呈现“简约而不简单”的视觉效果,最终将建安成本控制在每平方米3361元。

△教学楼立面以涂料为主,立面干净简洁©THAD

△学生服务中心立面,通过镂空开洞消解压迫,加强空间纵深感©THAD
针对职业教育“教学场景多样、实训需求特殊”的特点,建筑空间强调“模块化与可变性”:教学与实训用房采用大跨度无柱网设计,配灵活隔断,可快速调整为理论教室、分组实训区或综合操作区;走廊局部加宽至3-4米,兼顾通行、展示与小组讨论;立面采用大面积玻璃窗,保障自然采光与视觉通透,同时配置800人礼堂、多功能实训用房等复合设施,最大化满足教学、集会与实训的多元需要。

△由2#实验楼、行政楼与2#教学楼构成的形态错落有致的建筑组团©THAD

△实训楼©THAD

△礼堂夜景©THAD

△礼堂门厅©THAD

△礼堂观众厅©THAD

赛教融合与多元价值实现
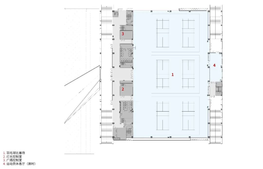
在“规划-建筑”一体化设计的基础上,项目借助“赛教融合”理念,使校园成为“技能培养平台、赛事承办载体、城市公共空间”三者兼容的集合体。乒羽训练馆作为省运会正式比赛场馆,不仅提供“真实赛事场景”的实训机会,使学生参与赛事筹备、运营与维护,将知识转化为实战能力,日常也用于乒羽教学、裁判培训等课程,实现竞技体育与职业教育的深度交融。
项目投入使用后获得多方好评:省运会组委会称赞其“功能完善、运营高效”,校方认可其“空间实用、契合职教需求”,市民欢迎其“丰富健身选择”,甲方更誉其为“一座真正多功能、高性价比、具有地域标志性的教育标杆项目”。

△作为陕西省第十七届省运会正式比赛场馆期间的乒羽训练馆©THAD

△乒羽训练馆夜景©THAD

△乒羽训练馆立面细部©THAD

△乒羽训练馆羽毛球场©THAD

△乒羽训练馆乒乓球场©THAD

从“造空间” 到 “塑生态” 的职教新探索
榆林市职业教育中心的设计实现了“从空间到生态”的跨越。规划上推动“城校共生”,使校园融入城市;建筑上追求“在地实用”,让文化扎根生长;“赛教融合”释放多元价值,使教育资源真正服务社会。
如今,这座校园不仅是榆林职业教育的新地标,更成为黄河流域“城校协同、资源兼容”的示范样本。未来,它将继续以“兼容并包”之姿,为榆林培育契合产业需求的技能人才,为陕北地区职教发展提供可推广的经验,在黄河流域高质量发展的宏伟蓝图中,写下“教育赋能城市”的生动篇章。



△教学楼二层平面图©THAD

△礼堂二层平面图©THAD

△实训车间首层平面图©THAD

△食堂首层平面图©THAD

△男生宿舍楼首层平面图©THAD

△2#实验楼、图书馆首层平面图©THAD

项目名称丨榆林市职业教育中心
项目地点丨陕西省榆林市
建筑类型丨教育建筑
用地面积丨18,300㎡
建筑面积丨129,900㎡
设计时间丨2019
竣工时间丨2022
设计单位丨清华大学建筑设计研究院有限公司
建设单位丨榆林市榆阳区教育和体育局
施工单位丨陕西中承建工集团有限公司
项目负责人丨霍春龙
建筑设计丨卢向东 霍春龙 郭瑽 刘霄 孙中轩 丁峰 孙瑜珠 李新欣 郝晓旭 章雯娟 龚士玉 高歌今 瞿莹然
结构设计丨刘湘 罗云兵 江波 许锦燕 王晓鹏 刘爽
给排水专业丨崔艳辉 王春香
暖通专业丨刘建华 李冰 张悦
强电专业丨武毅 刘路 张红霞
弱电专业丨徐华 李艳维
摄影师丨 三景影像 九里建筑摄影
评论