
颐寿嘉园(空港)毗邻温榆河畔,是北京市顺义区机构养老公建民营重点项目,这是弘石团队继北京康养东竹园与善果寺后又一竣工改造案例。



空港项目打造“居、医、养、食、康、乐、智、健” 八位一体服务体系,为自理、半自理、失能失智长者提供全周期照护。改造后可提供512张床位,其中20%为专项保障失能失智、低保等托底人群,其余床位面向社会开放,同时承担空港街道养老服务中心功能,为周边社区居家养老需求提供服务。
01
入画
项目的灵感源自南宋米友仁的《云山墨戏图》,此画描绘云山烟树的沿江景色,细径蜿蜒,远山起伏,屋舍隐现。画面上的墨点或急或徐,或虚或实,有无相生。以水墨为戏,游弋于山水之间,自得其乐。

在颐寿嘉园的创作中,我们尝试寻找一种素雅、安静、松弛的状态,在质朴的设计语言中创造温润的细节,在宁静雅淡的风格中植入绵长的韵味,即是苏轼所谓的“发纤秾于简古,寄至味于淡泊”,力图将用这种空间意境陶染长者的生活状态。

当访客步入大堂,重新解构的《云山墨戏图》磅礴展开,高挑的空间呼应画作的张力。传统“框景”被打破,让空间本身成为画境的延伸。米氏山水朦胧的墨气与留白,仿佛云霭漫出画框,浸染整个空间。墙面温润的木质感呼应着画中茅舍的素朴;冷峻的灰色石材和卵石铺地,如画中沉稳的山体,奠定空间的厚重感;隐藏在基座中开启的水雾装置,如同画中留白的云雾,成为轻盈的过渡与连接。



空间流线被精心引导,人们并非直穿而过,而是不由自主地沿画作徐徐前行,一如手卷展开的观赏方式,人的动线成为“阅读”画作的时空轴线,画的意境转化为可感知的空间语言。接待、等候、交流等功能区域沿动线布局,长者们在此放缓脚步,在子女的陪伴下,于画前驻足交流。这不仅是空间序列的起点,更是一次重要的心境转换仪式——从繁忙喧嚣的都市生活,过渡到静谧舒缓的画中境界。不觉间,便也成为画中人。





02
游画
-

室内流线与长卷形成呼应,融合各类功能,取法画中溪畔村落的生机和烟火气,塑造成一条市井小街般的内部商街蜿蜒其中。地面铺装如墨迹斑驳,两侧橱窗的灯光温暖如豆,仿佛山野人家的点点灯火。生活街尺度亲切,集咖啡茶座、书画阅览、手工花艺、家庭餐厅等功能于一体,长者们在此散步、小坐、交谈、访友,有了可触摸的生活情景。

街道上的绿化处处可见,数株绿植从庭院或天井中生长而出,与建筑简洁的直线形成柔与刚的对话,光线穿过枝叶,在地面上投下婆娑光影,正是《云山墨戏图》里“米点”皴法的动态演绎。


03
居画
-

“游画”之趣,终归于“居画”之静。如果说公共空间是画卷中笔墨酣畅的山水云树,那么长者居室便是那画中安然隐现的屋舍。

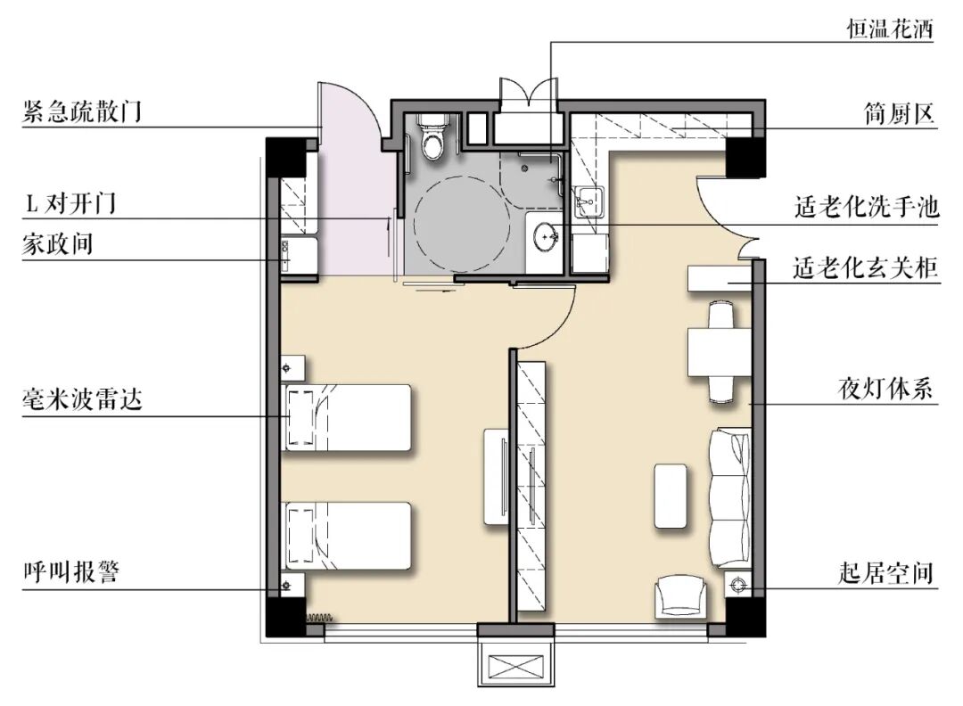
在居住空间设计中,我们力求将《云山墨戏图》中“可游可居”的理想,转化为每一处安全、舒适且充满诗意的日常。整体色调以宣纸般的米白为基底,搭配质朴的深木色家具和雅致的布艺配饰,如画中的浓淡笔墨,为空间注入温暖与宁静。
所有设计均将适老化作为核心,并巧妙地“藏”于雅致的美学之中。全屋无高差防滑地面、圆角处理的家具、适老化厨卫设施、防眩光照明以及智能监控和呼叫系统,共同构筑了一道道看不见的安全防线。

从“入画”的震撼,到“游画”的沉浸,最终归于“居画”的安然。人的活动成为最终完成这幅“立体长卷”的笔触。颐寿嘉园在完成的不仅是一次空间的改造,更是一场关于养老生活的重新诠释。
项目信息
项目名称:北京康养·颐寿嘉园(空港)
业主单位:北京市顺义区颐寿轩养老服务中心
设计单位:弘石设计
设计范围:建筑设计、室内设计、景观设计、泛光设计、标识设计
项目面积:19,319m²
设计时间:2024
竣工时间:2025
设计总负责:张兵
项目经理:陈星
建筑改造:陈星 魏源
室内设计:陈星 孙冠珍 魏源 左建芳 刘小盼
景观设计:孙捷 陈星 魏源
合作团队
施工图设计:北京市建筑设计研究院股份有限公司(十院)
泛光及标识:筑珈国际照明设计(北京)有限公司
软装设计:北京一木伟业家具有限公司
项目摄影:李晓光
评论