


项目共分三期,gad 对项目进行总体规划及单体设计。已竣工的一期项目中,gad 作为EPC总承包牵头单位及设计主导方参与其中。一期项目总建筑面积约10.2 W㎡,由两栋地上22层、地下2层(含局部夹层),高度约100m 的办公塔楼组成。作为园区首批落地项目,设计不仅需要保持项目设计与施工的独立性与完整性,也要为园区二、三期的建设留下互通、交织、生长的空间。




园区广场 摄影:直角建筑摄影

从室内看园区广场 摄影:直角建筑摄影
我们通过设计 “可灵活分隔的办公模块” 的方式,让办公空间能匹配多样的租赁需求。面积约1850㎡ 的标准层平面被分隔成四个规整且可分合的空间,设计通过建筑体块的分割、错动,让四个独立空间都拥有三面采光的景观视野。
错动的体块也改变了同尺度下规整板楼的视觉宽度,让建筑显得修长、挺括。重复排列的虚实相间的锯齿状幕墙单元,不仅解决了室内采光、通风等使用需求,也进一步拉长了立面视觉比例,并让建筑呈现 “步移景异” 的动态形式。





蓝橙(国际)科创中心是 gad 继浙江建德空港航空产学研基地后承接的第二个EPC项目。相较于首个完全由 “设计主导” 的EPC项目,这次作为 “EPC总承包牵头单位”,gad 在工程过程中并不占有绝对主导权,与施工团队的合作属性更强,这便需要我们在建筑的高品质落地与施工团队的利益诉求之间寻得平衡。

除了 gad 特有的项目管理团队全过程驻场,我们也着重对工程推进过程中关键流程的关键节点进行深入管控,包括设计交底、设计巡场、变更管理、样板控制。
设计交底,即在项目施工前,将相关设计图与施工团队充分沟通,确保施工团队充分理解设计意图并能按图施工。

施工细节 摄影:直角建筑摄影
设计巡场,即设计师有主动性地参与项目建造过程,关注项目成本、工期并配合解决现场问题。
变更管理,即对业主或施工单位提出的设计修改进行修改必要性分析,并对可能产生的效果、成本、工期等变更进行预判,再对是否修改、如何修改进行评估。
样板控制,即让设计师与业主参与工程全周期中材料、设备的选样、定样,有效控制项目落地品质。


施工细节 摄影:直角建筑摄影
gad 有不同建筑工程组织模式的实践经验。除了浙江建德空港航空产学研基地(2018)、蓝橙(国际)科创中心一期(2019)、梅山小筑改造 / 南太湖山庄会议中心二期(2020)、凤栖江河商务中心(2022)等已落地的EPC项目;

梅山小筑改造/南太湖山庄会议中心二期(2020) 摄影:侯博文

凤栖江河商务中心效果图(2022) © gad
也实践了留风轩项目(含 gad 总部大楼)(2017)、四堡七堡12班幼儿园(2023)、浙江冶金数字贸易产业园(2024)等建筑师负责制项目。
但无论哪种模式,我们关注的核心并未改变,即充分发挥建筑师的积极性、主动性、统筹性,确保设计在品质、成本、进度均可控的前提下,实现方案的高还原度落地。
留风轩项目(含gad总部大楼)(2017) 摄影:直角建筑摄影

四堡七堡12班幼儿园效果图(2023) © gad

浙江冶金数字贸易产业园效果图(2024) © gad




1# 标准层平面图 © gad

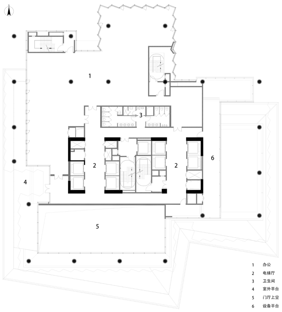
1# 二层平面图 © gad

2# 二层平面图 © gad

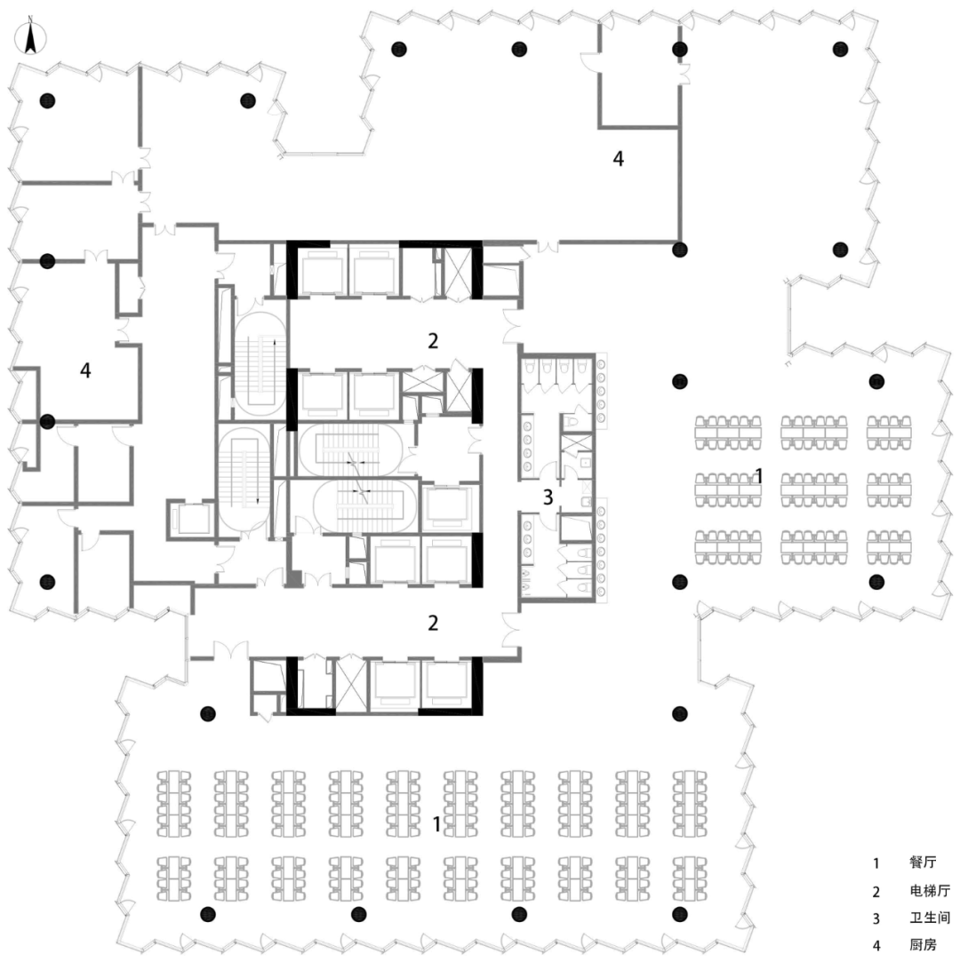
2# 四层平面图 © gad

剖面图 © gad
评论