
项目位于河南省漯河市郾城区孟庙镇白云山北路与文明路交叉口漯河食品职业学院新校区,处于整个新校区建筑集群的中心位置。
区位
日景鸟瞰
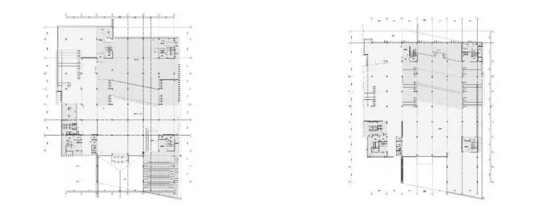
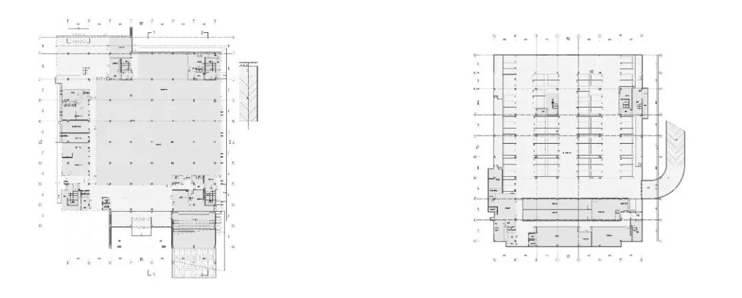
本工程为漯河职业学院新校区图书馆(中国食品教育博物馆),主要功能为图书馆、行政办公楼、博物馆和校史馆等。总建筑面积为32479㎡,建筑层数为9层,建筑高度为40.8米,总阅览座2000座,近期藏书量50万册,远期总藏书量约100万册。图书馆用地位于中轴线上,是校园中心区的高潮与焦点,也是控制校区的三条纵横轴线以及主要道路的交点所在,位置极为重要。
方案采用巨构立方体锚定场地秩序,力图以书山之势为学校创造庄重大气的标志性建筑。用地周围为5-6层的系楼与实验楼、学生宿舍。为避免校园中心广场因尺度过大而显得均质与冷漠,建筑须有足够大的体量创造出具有凝聚力的空间界面完善中心广场的构图。方案尝试以景观元素的形式与外部环境有机融合,在充分利用周边景观的同时美化校园环境,以实现两者景观效果的双提升。本工程校园总体规划轴线明确,图书馆用地位环境基本对称,中轴线上,形成了一个尺度宜人的校园礼仪场所。作为全国知名的食品类职业院校,着重突出其食品特色。将图书馆类比成消化知识的容器,将内部空间组成做成一个连续金属板展开面组合而成的复杂腔体,其他功能围绕着这个腔体,并与之有着视觉和内部功能的联系。腔体在外部与立面相切,形成通透的玻璃幕墙,或者金属实体,或者勾勒的线条。外立面采用混凝土现浇形成立方网格,与金属腔体形成材质的对比,和清晰的图底关系。景观上,延续金属板的材质,构成连续的景观文化墙,展示校园历史;东侧景观分化为四个小园,分别种上不同的植物,体现校园食品文化。由于项目空间复杂,我们设计人员直接使用Archicad软件进行BIM设计,颠覆了以往的翻模模式,在设计过程中实现了三维信息化及对空间关系的推敲,最终形成图纸模型一致的高质量设计成果。 设计过程也采用动态云协同方式,让所有设计人员能够实时共享数据,也让建设方、施工方以有限权限参与数据共享,全过程实现了基于三维的设计协同。内部空间较为复杂,楔形的多边形构成,形成特别的腔体空间,与近大远小的常规心理认知叠合在一起,时而放大,时而缩小,形成特殊的透视效果。内部大空间结合形体采用斜柱支撑;屋顶部分采用钢结构与下部混凝土结构通过金属饰面装饰为一体,中庭东侧大面积玻璃幕墙采用发电玻璃,顶层有电动可开启窗,形成烟囱效应,使得低能耗腔体中庭的设计成为可能。首层、地下一层平面图 FIRST FLOOR & GROUNDFLOOR PLAN二层、三层平面图 SECOND & THIRD FLOOR PLAN建筑:谌珂、郭钦恩、彭帆、周珂、贾长浩、张人泽、牟彦霖、苏笑悦
2025年度广东省优秀工程勘察设计成果公共建筑设计组 二等成果2024年度广州市优秀工程勘察设计奖公共建筑工程设计组 一等奖
评论