秩序与艺术-蚌埠三中淮上校区 | 深总院
阅读:1211 2025-11-08
 1  项目背景和概述
蚌埠第三中学为安徽省示范高中,建校于1922年,学校现设置48个教学班,在校学生约2600人,教职工200多人。经过几代人的努力,学校发生巨大变化, 2000 年 3 月被评为“ 安徽省示范高中 ”,学校先后荣获安徽省“文明单位”、“绿色学校”、“家长学校”等光荣称号。多年来,学校以科学的办学理念、先进的教学设施、优美的校园环境、淳厚的校风教风,誉享珠城,名播江淮。新校区的设计将继续贯彻蚌埠三中精神,坚持以人为本,人与自然和谐的理念,依据标准但不拘泥于标准,设计上充分考虑学生学习、生活特点,并考虑走班等发展因素影响,打造一座集“创新、高效、共享、生态”于一体的高标准现代学校。
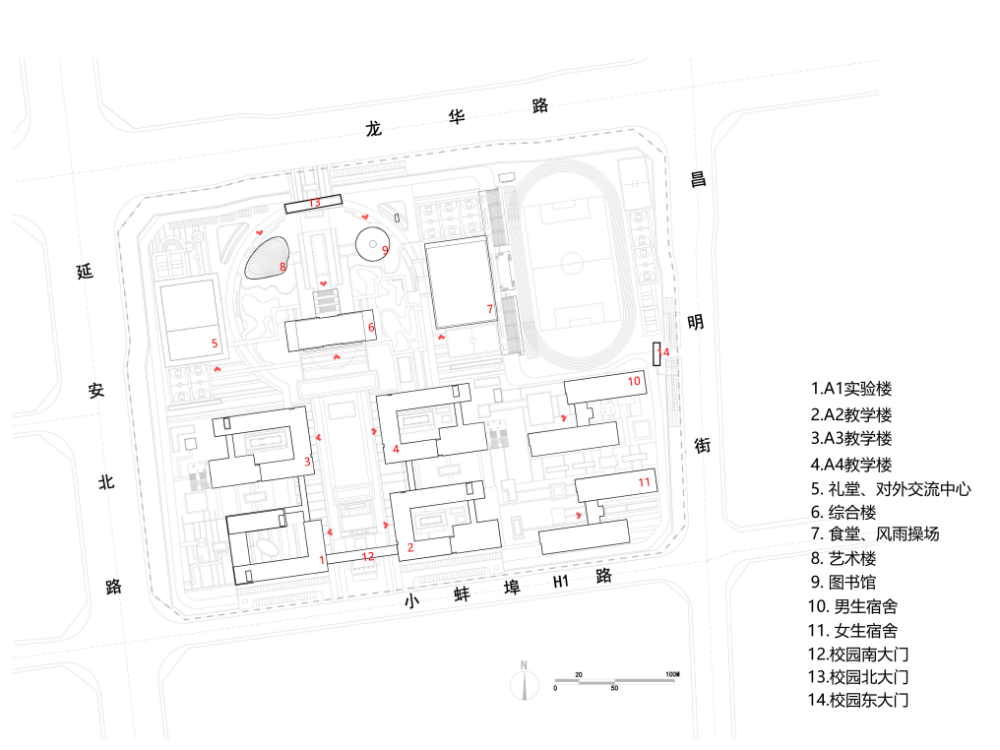
蚌埠三中淮上校区位于延安北路以东、龙华路以南、昌明街以西、小蚌埠H1路以北,用地东侧毗邻蚌埠职教园。校园用地面积约161870㎡(约242.8亩),项目拟建设规模为90班的全寄宿高级中学。
项目总建筑面积12.5万平方米,其中地上11.5万平方米,地下1万平方米。
整体鸟瞰图(©孙智)
整体俯瞰(©孙智)
夜景鸟瞰(©孙智)
规划设计理念图(©深圳市建筑设计研究总院有限公司—合肥分院)

 2  秩序和艺术并存,理性和感性共生
一个理想的校园应该是什么样子?我们希望它像一座社区,不光拥有整齐划一的住宿和学习空间,还拥有开放、丰富、被自然环抱的公共空间,每一个孩子都带着对知识的憧憬,自由自在的生活在其中。蚌埠三中淮上校区是我们对自由多元建筑设计理念的一次探索与实践,将高效的教育空间与自由的公共空间以一种有机交融的关系呈现。
规划设计理念图(©深圳市建筑设计研究总院有限公司—合肥分院)
新校区主体规划架构以“秩序和艺术”为设计理念南片区的教学组团和生活组团以秩序和理性为理念展开空间布局,教学楼以南入口为轴线东西对称布局,宿舍楼延续理性的布局原则错落设置于教学楼东侧。北片区的公共教学区采用艺术和感性的规划原则,礼堂、体育馆和综合楼三组建筑作为校园内的标志性建筑,坐落于校园中部,成为校园核心区域,形成强烈的向心性,整体展现出动态的空间关联。同时综合楼、艺术馆和图书馆三栋建筑采用古典园林布局的建筑布局,形成南北跨度164米,东西宽度175米的校园绿谷,这片自由的、自然的校园生态核心如同引力场一般,环绕着校园的公共建筑,承载着学生的追逐和奔跑
对于老师而言,校园意味着秩序和管理,老师是教学活动的组织者,他们需要保证教学活动有条不紊的开展。同时,对于学生而言,这里是他们的求学生涯,自由和艺术的场所可以成为校园文化精神的存在,多少年后,同学们回忆起自己的少年校园生活,总能除了井然有序的课业之外,还有阳光和草地、畅享和天空。

 3  轴线与核心
区别于营造宏大叙事常用的单轴空间,新校区规划采取了复合轴线的策略,形成一个灵活分散与自然结合的校园建筑布局。如果现代设计想脱离纸上建筑的格局,就必须承受供需面的市场力量,一如承受地心引力一样。[1]
生活教学区的轴线简洁高效,讲求对称与礼仪,形成南入口的空间秩序感。公共活动区轴线布局则更加自由多元,形成丰富有致的空间序列,孩子们可在此聚会游乐、平等交流,培养孩子们丰富而自由的精神世界,并加强学校作为一个大家庭的归属感,成为整个校园的活力中心。
轴线分析图(©深圳市建筑设计研究总院有限公司—合肥分院)
区别于普通学校单一的以操场为核心来营造主要户外活动空间,新校区设计不仅将北片区的圆形公共区打造为更接近自然的户外活力空间,更在空间层级上呈现了清晰的逻辑关系,即室外空间组织上遵循由大到小的尺度,由公共到私密的属性,由自由到秩序的逻辑。
校园轴线空间(©孙智)
综合楼、艺术楼和图书馆位于校园中心位置,三座建筑通过整合形成生态立体的校园综合体,面向中心花园的水面打开,建筑界面和形体相对自由开放,通过将湿地景观与核心建筑群充分融合,打造具有内聚力的“引力场”般的核心公共空间,为学生提供一个鼓励创新与自由的学习交流场所。
中心花园俯瞰图(©孙智)

 4  光影呼吸
设计希望风和光线能成为校园空间的要素建筑单体之间和内部都植入多个不同尺度的庭院和架空空间,风和空气可以循着空间渗入,再从庭院上空流传而出,让校园四季都能拥有舒适的内部风环境。
教学组团风环境分析图(©深圳市建筑设计研究总院有限公司—合肥分院)
教学组团架空空间(©孙智)
侧边庭院空间(©孙智)
光线给空间注入灵魂,设计空间就是设计光亮。“游戏”的特质存在于每个孩子身上,也是沟通最重要的形式之一。[2]小小的光影变幻,是孩子们追逐、探索和梦想的载体。我们希望校园空间是充满童趣的,让孩子们自己成为空间的画笔,自由生长。
图书馆设计为圆形,寓意珍珠,功能上植入采光中庭,圆形楼梯盘旋而上,让行走的过程仿佛置身于书籍的海洋,让人流连忘返。首层设置下沉的开放讲演空间,同时也是个小剧场,而圆形楼梯自然化身为观众席。这种开放空间、自由布局的设计,让图书馆不再仅仅是个安静的阅读场所,还可以成为读书后的分享和交流场所。
图书馆外观(©孙智)
图书馆中庭空间(©孙智)
艺术馆设计为河蚌造型,与图书馆隔水相望,形成空间对仗。这两组建筑在承载功能的同时,也形成了校园北礼仪入口的空间序列,寓意“蚌上明珠”
北礼仪入口的空间对仗(©孙智)

 5 “半个”实验楼和八边形教室
基于对传统教学空间的思考,综合高中生课业和时间的痛点,我们将使用率较高的物理和化学实验室从实验楼中拿出来,和年级组团合并设置理化实验室、阶梯教室、教师办公和开放学习共同组成年级组的“公共客厅”。“半个”实验楼的功能布局避免了学生在教学组团和实验楼之间的频繁往返,更加高效。公共功能的植入更让这里成为跨班级的交流场所,为师生提供开放、灵便、交互的组团客厅。
年级组团布局分许图(©深圳市建筑设计研究总院有限公司—合肥分院)
本次设计对教室单元的形状进行研究,颠覆了传统的矩形教室,创新的提出八边形教室设计。据研究,八边形教室在声环境、风环境和空间使用率等都比传统矩形教室要高效。
八边形教室单元(©深圳市建筑设计研究总院有限公司—合肥分院)
在声环境层面,切角45度的教室STI(语言清晰度)分布更加均匀。在风环境层面,长方形布置的教室平均风速较高但空气龄较大,室内气流组织分布不均匀,教室边角部位存在涡流区,通风不畅;正方形教室室内气流组织相对较为均匀,但平均风速较低、空气龄大;八边形教室的平均风速较高,同时气流分布较为均匀,无明显通风死角,主要人员活动区域空气龄最低。由此可见,隔出教室的边角空间作为储物空间或者设备平台,不仅提高了空间利用率,还可以有效提升自然通风效果,对室内空气环境有较为明显的改善。
教室单元的声环境和风环境分析图(©深圳市建筑设计研究总院有限公司—合肥分院)

 6  生态底色,自然校园
中学生面临学业和青春期的压力,心理发展常滞后于生理发展。学生课间活动意愿逐步降低,呈现出害怕社交、喜欢独处等特征。[3]因此空间设计中,我们把生态底色作为校园布局的重要元素,为学生提供更多与大自然接触的机会面向水面打开的各种半室外的活动空间,建筑之间的视线流通、空间的渗透,风、光和水都是空间的非物质元素,为师生提供了自由而丰富的休憩空间。
自然生态的校园环境(©孙智)
校园打造了如同“森林”般的自然空间,让师生繁忙的高中生活有了可以小憩的场所。晨读的那片树林、午后的明亮水面、傍晚的共享广场和晚自习后路过的石拱桥,都是高中生活中精彩的片段。

 7  多元化界面
校园建筑和空间呈现出不同的面貌特征与空间姿态,使教学资源的最大化共享和校园活动空间的最大化拓展,激发学生活力
校园北片区作为公共教学和活动区,空间构成如同“森林”般拥有完整的“生态系统”。运动场、体育馆、食堂、图书馆,艺术馆、综合楼和礼堂等建筑,如同树木一般有机的生长在充满阳光、空气和水的森林中,建筑和环境相互联系、相互影响,构成了一个完整的森林生态系统。
校园剖透视示意图(©深圳市建筑设计研究总院有限公司—合肥分院)
多元化的界面不光体现在空间构成上,建筑单体造型更是秉承“整体素雅、多元体验”的原则,通过建筑的退叠、穿插、架空来搭建光影,通过穿孔板、铝板、陶土砖的运用形成不同功能、不同表情、不同质感且有温度的校园面貌。
教学楼(©孙智)
庭院空间(©孙智)
综合楼(©孙智)
综合楼细部(©孙智)
教学楼细部(©孙智)
建筑细节(©孙智)

 8  结语
秩序前庭,自由后院,书声郎朗而悠远,笑声婉转而悠扬设计以“承古启新”为理念,兼顾秩序和艺术,发掘自由空间的可能性。耽于幻想的建筑巨匠曾经感叹苹果切开时果核内那小小的空间是何样地静谧[4]我们旨在繁杂的城市环境中为校园营造出如同“苹果核”般静谧的中心花园,力求建设一个多元生态、富有底蕴、朝气蓬勃的文化教育社区。
西向整体鸟瞰图(©孙智)
总平面图(©深圳市建筑设计研究总院有限公司—合肥分院)
A2教学楼一层平面(©深圳市建筑设计研究总院有限公司—合肥分院)
A2教学楼二-五层平面(©深圳市建筑设计研究总院有限公司—合肥分院)
礼堂对外交流中心平面图(©深圳市建筑设计研究总院有限公司—合肥分院)
礼堂对外交流中心剖面图(©深圳市建筑设计研究总院有限公司—合肥分院)
图书馆平面图(©深圳市建筑设计研究总院有限公司—合肥分院)
图书馆剖面图(©深圳市建筑设计研究总院有限公司—合肥分院)

项目负责人洪绍军、吴松

项目经理:黄超

方案创作钱川保、吕捷、何海坤、江腾飞、李梦琪、江显龙

建筑设计:谈柱、徐驰、杜翔、周振宇、钱志慧、冯晶晶、王宇阳李华唱、钱志鹏

结构设计:胡亮、蒋兴笠、刘顺、刘文武、张可、朱凯旋、管瑞

电气设计陈明霞刘追黄会娜、胡琦、徐声贵

给排水设计李郑、吴浩、王婕、窦烨海、朱妍妍

暖通设计:张海燕、彭亚美、张启玉、曹晴

景观设计汪晨曦,张海峰,马琦,朱磊李婷

绿建设计:刘晓宇朱子夜、李亚慧

BIM设计:江帆、林珑、冯昊天

幕墙设计:李晓光、方超、周磊

内装设计:施跃发、李想

ARCHINA 所有平台上发布的项目、招聘、资讯等内容,部分由第三方提供或系统自动收录。资料版权属于第三方,若信息不实或涉及版权问题,需要版权方和第三方沟通,ARCHINA 将配合对接,并在确认无误后删除涉及版权问题的信息,相应的法律责任均由资料提供方承担。


评论


请 [登录] 后评论