B.Duck小黄鸭
亲子度假酒店
小黄鸭与江南村落的奇妙邂逅
在地性与IP化的深度实践





村中园 园中趣
B.Duck小黄鸭亲子度假酒店位于常州雪堰镇雅浦半岛,坐拥三面环水的自然格局,是太湖湾旅游度假区内的关键文旅节点。设计面临的核心议题是:如何将一个高辨识度的商业小黄鸭IP,有机融入一个拥有百年祠堂、原生香樟林及丰富水域景观的典型江南村落,并打造一个亲近自然的亲子游目的地。
设计以“园趣”为核心理念,旨在平衡自然的原生力与IP的趣味性,打造一个能吸引长三角家庭、并重塑乡村活力的亲子度假目的地,一个能让孩子放下束缚、释放天性,让家庭重拾亲密、畅想幸福生活的度假空间。项目不仅是一组建筑,更是一个以沉浸式故事串联多元空间场景的舞台。


项目总用地约4800平方米,建筑限高15米。设计摒弃了标志性单体的宏大叙事,转而通过连廊系统将多个三层体量整合为风车状聚落,既回应了当地乡村肌理,又实现了对半岛景观资源的最大化利用,为家庭宾客创造了一个能让孩子释放天性、让家庭重拾亲密的沉浸式度假体验。



▲空间爆炸图
为实现“景观最大化”的承诺,我们构建了一个立体、流动的景观游历体系。连接四个主要体量的三层环形外廊是此体系的核心。它超越了交通功能,成为一个立体的“观景器”。宾客漫步于不同高度的廊道中,视野在私密庭院、保留树冠与远方湖光之间交替变幻,步移景异的体验让每一次穿梭都充满发现的乐趣。



设计同时采取了“积极消隐”界面的策略。建筑南侧底层局部架空,打通了从内部庭院至滨水公园的视线通廊,将外部自然景观无缝编织进建筑的内部体验中。东侧多功能厅采用可完全开启的立面,当门扇打开,室内空间便与萱草花园连为一体。这种对古典园林“借景”手法的现代化运用,确保了核心空间与自然的深度对话。




▲项目模型
院中嬉,廊间乐
设计的终极目标是创造一个能持续促进亲子关系、激发孩童潜能的沉浸式体验场域。整个酒店被构想为一个开放的、可探索的乐园,通过空间与活动的组织关系,实现“欢乐情绪、增强体质、体验自然、互动社交”的核心价值。
我们创造了大量趣味的互动场所,旨在激活儿童的运动细胞。连接各客房体量的三层环形外廊构成立体观景系统,鼓励孩子在不同高度发现不同视野。东侧和南侧三楼客房内从夹层盘旋而下的室内滑梯,则将日常起居变为充满笑声的微型冒险。这些设计不仅提供了自由玩乐的机会,更在无形中增强了孩子的体质。



酒店充分利用半岛的生态资源,为孩子提供一个亲近自然、感受生命的户外课堂。东侧的萱草花园、南侧的滨水步道以及场地内保留的香樟树林,都是进行自然探索和兴趣培养的最佳场所。通过亲子学习等特色活动,让孩子们在玩耍中感知艺术与生命的奥秘,促进自我潜能的挖掘。


设计致力于提供全龄化多样化的休闲方式,并创造能增进亲子关系的空间。公共多功能厅可灵活转变为儿童剧场或手工作坊,成为互动游玩、互动交流的核心阵地。散布于庭院、廊下等各个角落里的小黄鸭主题雕塑,则构成了一个持续的寻宝游戏,鼓励混龄发展的孩子们一起互动,结交新友。
通过建筑南侧底层的局部架空和东侧厅房的完全开放,重构了空间与自然的联系,让家庭宾客在安全的环境中共同探索自然。在灵动趣味、活泼清新的自然新氧中,享受沉浸体验,沉浸在享趣氛围与趣味环绕之中。



形之趣 色之舞
小黄鸭IP的植入,是本次设计实践的核心。我们致力于超越图形化的表面应用,通过一系列抽象的建筑语言,将IP特质转化为可感知的空间体验。
IP叙事始于形态的契合。建筑整体采用的弧形坡屋顶,其柔和轮廓不仅与周边乡村风貌形成对话,更在宏观尺度上呼应了小黄鸭可爱的造型基因。这一曲线语言被延伸至廊道平面的弧形倒角及墙体的圆角处理,在人的行进与触碰中,持续传递圆润、安全与友好的氛围。


项目的标志性表达集中于西北侧的公共区域。餐厅上方的ETFE半透明膜结构构筑了一个弧形的灰空间露台,其轻盈的体量如同一顶巨大的庇护壳。从平台顶部延伸出的观景台,其上方镶嵌着抽象的小黄鸭圆形Logo,使之成为整个聚落的视觉焦点。与之呼应的是东北角的圆形泳池,它以鲜明的几何形态进一步强化了IP的场所感。


色彩的提点,是品牌活力的精准注入。在素雅的白色与浅灰色肌理涂料立面中,明黄色的楼梯如同雕塑般成为跳跃的色彩符号。这些提取自小黄鸭标志性颜色的亮黄元素,与黄色彩钢栏杆一同,以极低的成本在关键节点引爆视觉,传递出纯粹的快乐。


最终,IP的体验落脚于沉浸式的场景营造。部分位于景观最佳方位的客房,充分利用弧形坡屋顶结构,创新性地设计了内含夹层的Loft户型。一个专属的室内滑梯从夹层盘旋而下,将居住空间变为一个微型的冒险乐园,完美构成了“下层共享,上层探险”的趣味家庭单元。而散落在庭院、廊角等各个角落里的小黄鸭主题雕塑,则如同寻宝游戏中的彩蛋,不断丰富着空间的叙事层次。


一场持续生长的乡村童话
小黄鸭亲子度假酒店,是乡村振兴背景下一次关于“在地性”与“IP化”的深度实践。成功构建了兼具自然野趣与品牌童趣的欢乐栖所。项目不仅为雅浦村带来新的文旅业态,更展现了乡村振兴背景下,通过根植土地、回应需求的设计,实现商业IP与乡村环境有机融合的多元可能性。期待这座“园趣”盎然的建筑聚落,能成为引导家庭宾客探索自然、重拾亲密的理想场域,与雅浦村共同生长,持续绘就新时代乡村振兴的温暖画卷。






▲建造过程
技术图纸

▲立面图

▲一层平面图

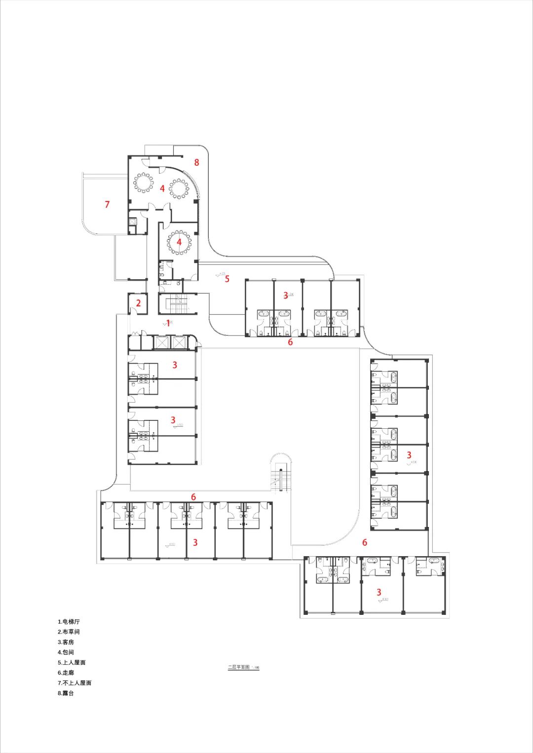
▲二层平面图

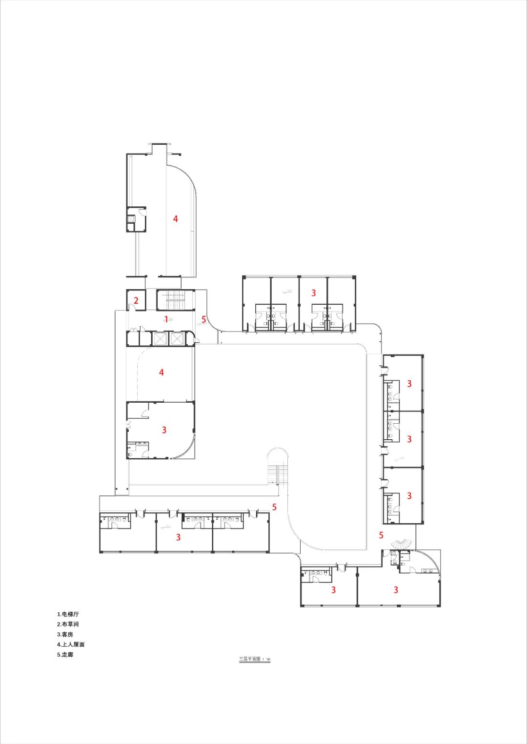
▲三层平面图
项目名称:B.Duck小黄鸭亲子度假酒店
项目地址:常州武进区雅浦村
建筑面积:4283㎡
设计时间:2023年-2024年
竣工时间:2024年
业主单位:常州嬉戏谷国际大酒店有限公司
设计委托:乡伴文旅
建筑方案设计:水石设计-米川工作室
主持建筑师:徐晋巍、谢湲
设计团队:王友文、唐一峰、赵惊喧、刘凤鸣、侯君妍、赵丽锋
建筑施工图设计:上海华阆建筑设计事务所
景观设计:上海东线景观规划设计有限公司
室内设计:朱胜萱(上海)建筑景观设计有限公司
建筑摄影:胡义杰
主要材料:肌理涂料、超白中空玻璃、黄色彩钢栏杆、ETFE膜、油毡瓦
设计关键词:乡村振兴、亲子度假、IP叙事
评论