
崇左市江州区城南实验小学是一所规模为42班的全日制小学,设计结合新时代师生多元的学习空间需求及城市友好关系的需求,营造出丰富多元的教学空间、通达便捷的交通体系、与自然交融的空间环境、现代大气的建筑气质,为师生创造一处高水准的新时代校园。
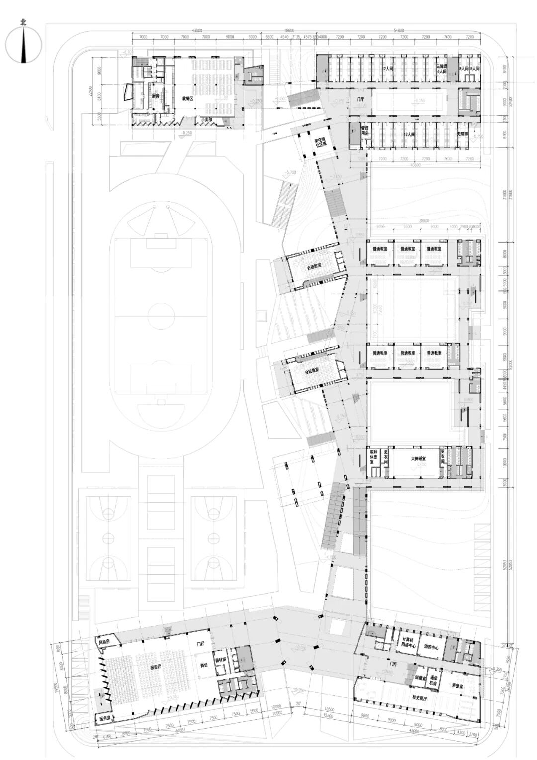
项目规划总用地面积52902.76平方米,项目总建筑面积36224.15平方米,其中,架空机动车库接送区域约3877.65平方米。校园建筑由图文行政楼、风雨操场、科技教学综合楼、午托用房、食堂及架空停车场建筑单体构成。

本项目包含教学、生活、运动等多种功能的合理组合,在空间上突破传统的格局,在规划上引入地域地景特色,采用架空游廊的形式组织整体空间,将教学行政区域与生活运动区域连接成风雨无阻的整体,形成别具一格的特色校园空间,具有一定的复杂性和前瞻性,对提升崇左市教育资源和促进地区教育发展具有重要影响。
学校不但是学习探秘的空间,也是成长的趣味中心。设计以广西崇左石景林空间特色为灵感,以校园用地中央的趣味学习活动廊主轴线串联起校园各功能区,曲折蜿蜒的路径营造出中国传统园林中的起、承、转、合的空间体验。

设计融合石景蜿蜒嶙峋的形态和广西壮锦的鲜明色彩特点,营造出富有地域特色而又具有强烈的表现力的校园形象。

校园风貌
以广西崇左地区石林空间特色为灵感,引入“中轴学习廊”的概念,形成“一轴、四线、多院”的整体化空间规划格局,整个校园聚散有序、疏密有致。以校园用地中央的趣味学习活动廊主轴线串联起校园各功能区,以廊为轴,流线清晰,体验舒适。

“中轴式学习廊”示意图

实景效果图
设计从城市的角度出发,校园规划采用“一轴、四线、多院”的形式来组织空间布局,以轴线、对称、均衡等手法强化校园空间序列。
一轴——项目以校园用地中央的学习活动廊形成主轴线,由趣味学习活动廊主轴线串联起校园各功能区。
四线——教学行政区、生活后勤区、体育运动区间形成东西向的空间次轴线,为学生提供休闲、生态、舒适的休憩空间。
多院——建筑和建筑间、建筑和室外体育场间形成互相渗透的多样化院落。互融的庭院、底层的绿台、草坡等多种的景观配置共同营造出一个立体化、生态化、多样化的活力校园。

“一轴、四线、多院”布局示意图
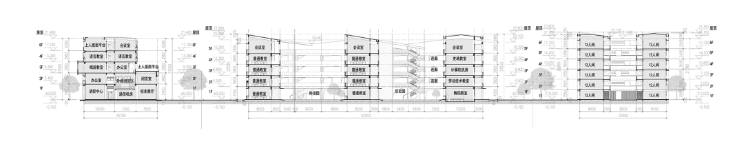
建筑造型上,立面采用以浅灰色调为主,搭配以饱和度稍低的的淡彩色设计,与当地地域特征及气候相结合,错落的体型,丰富的虚实对比,明快柔和的色彩与园林生态绿化相映生辉。

功能分区示意图
教学楼内庭


多措并举解决小学接送停车难题:校园南部主入口设置早晨送达的停车缓冲岛;借助城市绿化带构建生态绿化停车场;在西北侧利用下沉地形在运动场下方设置架空停车场,下沉庭院为学生提供舒适等候、便捷通达、安全离校的多元空间。

架空庭院
停车场接送分析图
总平面图 GENERAL PLAN








绿建:胡文斌、李绪凯
摄影:吴永雄、卢江谋
2024年度广州市优秀工程勘察设计奖公共建筑工程设计组 一等奖
评论