虹桥商务区致力于打造我国东部沿海地区及长江三角洲地区的重要城市综合交通枢纽。作为虹桥商务区的关键组成部分,机场东片区以T1航站楼为核心,集聚航空总部,旨在建设上海乃至全国的“现代航空服务示范区”。伴随商务区建设推进,东片区城市更新条件日渐成熟,2010年5月时任上海市长韩正视察时更明确指示“机场东片区要抓住机遇,实现脱胎换骨的改变”。
上海机场运行指挥中心扩建工程正是在东片区城市更新背景下的一项原址基地扩建工程。为加快推进上海航空枢纽建设,提升航空运营效率和服务水平,上海机场集团对现有业务用房进行扩建改造,旨在打造一个集中高效的“一市两场空运指挥中心”。该项目由华建集团华东建筑设计研究院有限公司建筑创作中心向上团队原创设计。


机场东片区的改造面临诸多挑战,包括土地权属复杂、公共空间匮乏、城市形象陈旧等。为此,东片区城市更新提出三种土地利用模式:“重新开发、现状保留、改造置换”。本项目利用运行指挥中心老楼与东侧建筑之间的原停车场场地,属于“重新开发”模式。西侧老楼所在区域则属于“现状保留”模式,根据城市更新要求,需“对景观环境进行改造整治,呼应地区空间品质的整体提升”。
设计团队面临的核心挑战在于:如何在紧扣地区发展目标、全面提升功能的同时,实现与老楼所在区块“现状保留”开发模式的协调,在有限的既有城市空间内进行功能拓展与空间重构,提升土地利用效率和城市空间品质。

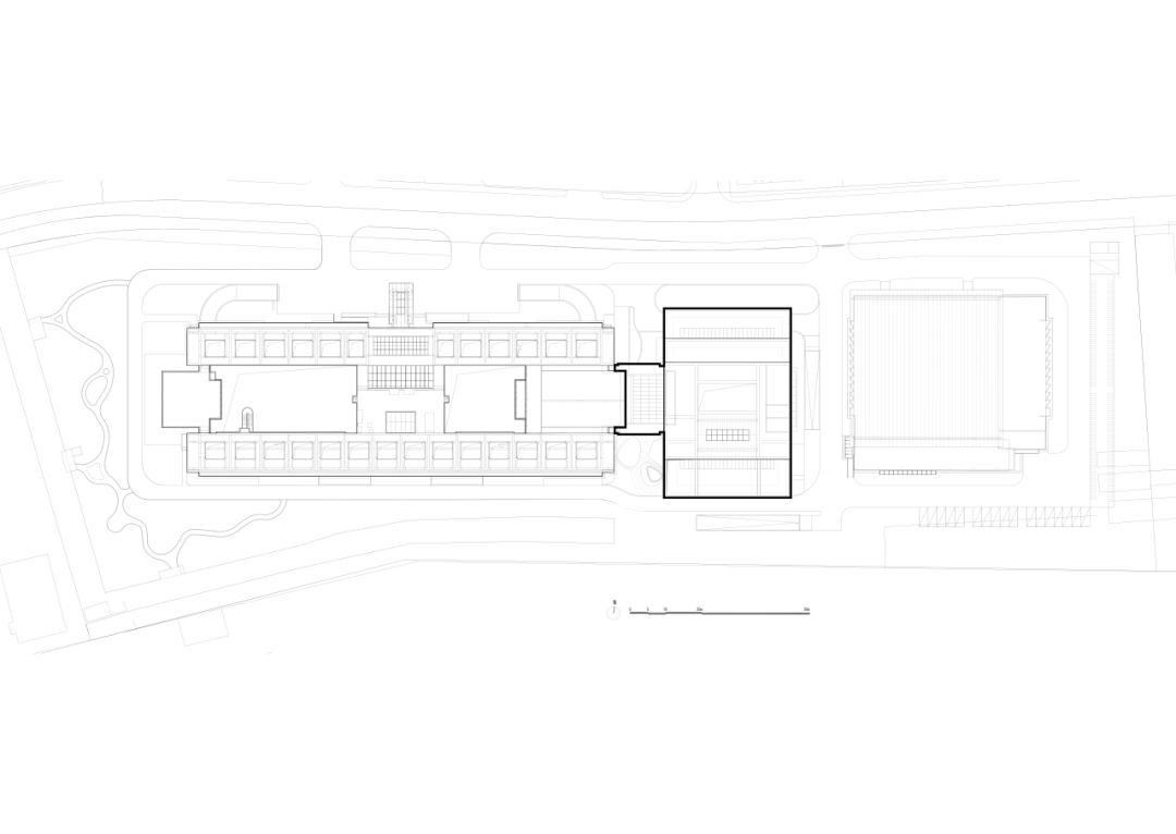
▲区域总平面图

面对基地局促、功能复杂的挑战,设计团队从城市整体关系出发,注重与既有建筑的协调互动,提出以下设计策略。






▲建筑形体生成图
策略一:向新而生的立体织补
基地位于2栋老建筑之间,原为停车场和绿地,空间因场地割裂而缺乏联系。设计通过重新调整规划,向新而生,以“立体织补”为策略,重构空间逻辑。通过空间置换——将地面停车场下沉至地下,释放地上空间,将绿地往空中延伸,提升景观环境。通过空间缝合——利用连廊、共享空间等柔性连接体,有机串联新旧建筑群,重塑高效复合的交通网络。最终形成新旧共生、立体复合的城市空间,完成从“空间裂缝”到“城市露台”的蜕变。

▲迎宾二路视角
策略二:尊重环境的体量控制
新建建筑以谦逊姿态融入街区肌理,通过切削空间实现新旧对话:北侧沿街界面采用三层退台式切削处理,将建筑高度控制在15米以内,与两侧老建筑形成统一的高度关系。自四层起向南侧采用阶梯式抬升手法,塑造出“层峦叠翠”的渐进形态。这一设计既消解北侧体量对街道的压迫感,又为行人营造出开阔的视觉体验,更通过错落有致的轮廓线,为城市增添富有韵律的天际线轮廓。

▲迎宾二路视角
策略三:街区色彩的有机融合
在建筑色彩规划层面,设计通过系统化色谱分析,制定与迎宾二路现状建筑群协调的色彩衔接策略。基于场地调研数据,选定具有现代质感的银灰色为主基调,采用“灰-红”交替的韵律式色彩模数。这种渐进式的色彩配置方案,在空间维度上实现双重设计意图:其一,通过跳色韵律与周边建筑形成适度对比;其二,借助中性的“银灰色”与邻近建筑建立视觉缓冲,构建新旧建筑对话机制。既保持街道色彩的整体延续性,又形成富有节奏感的视觉引导,最终达成文脉传承与时代创新表达的动态平衡。

▲色彩分析图

▲新老楼色彩关系
策略四:新老建筑的空间对话
本项目在满足扩建建筑与原指挥中心功能互补的基础上,着力构建新老建筑之间的空间对话关系,以实现人性化设计与空间活力的双重目标。设计通过将老建筑二层内的东西向双走道向东侧延伸,形成2条轻盈通透的室外架空连廊,与新建筑在空中衔接,方便新老楼的人员往来。同时在2栋建筑之间植入玻璃采光顶,在老建筑东侧餐厅与新楼之间营造出一个兼具自然采光与遮雨功能的半室外庭院空间。这一设计策略不仅优化人员动线,更创造出一个尺度宜人、功能复合的过渡空间,为员工提供交流互动与休憩放松的理想场所。庭院内设计与景观树池结合的休憩座椅,形成富有生机的景观节点。投入使用后,这一过渡空间已成为员工餐后休憩、交流的热门场所。通过连廊与庭院的精心设计,新老建筑之间形成多层次的空间对话,不仅提升建筑群的整体性,更为使用者创造舒适宜人的空间,实现新老地块城市空间品质的整体提升。

▲新老楼通过连廊相连
策略五:多维立体的绿化空间

项目构建多层次立体化的绿色空间体系。首层空间以北侧主入口和西侧新老建筑连接处为主要节点,打造丰富的景观带。在此基础上,扩建建筑的二层特别设计中央内庭院,这一空间不仅实现建筑的自然通风与采光优化,更为员工创造一个充满生机的户外交流场所。庭院景观采用“蒙德里安式”几何构图手法,通过色块化的草坪铺装。

▲玻璃采光顶下的绿岛
形成极具现代艺术感的绿色肌理。从各楼层俯瞰,宛如一幅精心编织的绿色地毯;仰望时,又融入江南传统庭院“四水归堂”的空间意境,实现现代与传统的美学对话。
建筑四层和五层皆有屋顶绿化,通过树池、环绕式树篱、台阶式草坪等景观元素,在三维空间进行点、线、面的有机组合,形成层次丰富的第五立面绿化系统。这些错落有致的绿色空间不仅为使用者提供亲近自然的休憩场所,更在面向城市街道的一侧形成立体绿化帷幕,实现绿地向空中延伸的设计理念。
通过立体化的绿色庭院、屋顶绿化,在建筑多个层面打造多维度的景观绿化空间。这种创新性的绿化体系不仅创造舒适宜人的生态办公环境,更与“绿色建筑”要求的低碳环保、节能减排,缓解城市热岛效应等诉求高度融合,营造出建筑与自然和谐共生的生态图景。


▲二层庭院空间

▲层次丰富的屋顶绿化
策略六:有机融合的一体化设计
本项目面临多重设计挑战:功能需求复杂多样,除配套业务办公和会议外,还需容纳运行指挥中心大厅、决策室、数据机房等特殊功能空间;同时受限于狭小的建设用地和严格的航空限高要求,设计采用“一体化”设计策略,将功能布局、空间组织和建筑造型像“七巧板”一样有机地组合在一起,既与既有建筑形成和谐对话,又展现出独特的创新性。

▲首层入口区
建筑北侧首层主入口落客区采用架空设计,既保持建筑形体的纯粹,又创造富有仪式感的入口序列。
首层南面设置共享会议室,可同时服务新旧建筑。会议室西侧布置休息厅,既可向西侧玻璃采光顶绿化庭院借景,也方便老楼员工使用,实现新旧建筑的有机融合。
指挥中心大厅层高约8米,通过垂直空间整合,将决策室叠加在指挥中心上方,并通过室内楼梯直接连通,既满足功能联系的需求,又实现空间的高效利用。

▲指挥中心大厅
各层休息厅均能面向屋顶绿化,将自然元素引入室内,创造出宜人的工作环境。
建筑立面以简洁硬朗的线条为基调,三层及以下主要采用窗墙体系,虚实相间的方格窗与老建筑开窗形成对话关系。四层及以上采用幕墙体系,建筑更具漂浮感。主要材料选用银色铝板与超白玻璃,呈现出简约、精致的现代商务风格,带来整个街区立面的品质提升。
为确保立面的整洁纯粹,建筑幕墙把自然通风、屋面排水进行一体化设计。室内开窗式通风器与外立面凹窗套两侧的深色穿孔铝板结合,避免主立面窗户开启的凌乱感,同时还为建筑立面增加立面细节;屋顶露台的雨水排水管道隐藏于幕墙铝板空腔中,巧妙地解决排水管外露问题。

▲建筑细节
另一方面,为避免视觉效果过于单调,项目采用深浅两种铝板及不同样式的彩釉玻璃,以提升建筑立面的丰富性。在凹窗顶部及两侧、室外吊顶侧壁等区域采用深褐色铝板,利用位于阴影区的深色材料化解结构的沉重感,并形成立体“眼影”效果。屋顶花园顶部采用“迷彩马赛克”形式的彩釉玻璃花纹,与屋顶植物相映成趣,营造出落英缤纷的诗意视觉效果。内庭院、电梯厅西侧外立面则采用竖向彩釉玻璃,通过半遮蔽的处理手法,营造出若隐若现的朦胧意境,为空间平添几分东方园林的韵味。
通过功能、空间与造型的一体化设计,建筑不仅实现使用效率的最大化,更创造出富有层次感的空间序列,为使用者提供舒适宜人的环境体验。

项目的高完成度源于对设计目标的极致追求。这一目标通过设计过程、专项深化和施工配合中的精细化控制得以实现。以连接新老建筑的钢结构连廊与玻璃采光顶为例,其荷载不能作用于老建筑。建筑专业提出以“轻盈、通透”为设计目标,要求每根连廊仅设一根结构钢柱。结构设计将连廊一侧与钢柱相连,另一侧通过屋面悬挑,梁下设置高强钢拉杆悬挂,连廊与老建筑设缝脱开,仅与新建筑结构相连。在后期与幕墙设计及施工的配合中,始终紧扣这一目标。由于钢结构施工精度有限,屋顶梁改为由幕墙铝板进行装饰,并利用装饰线角刻画线条感,彩釉玻璃则有效化解影子盒的厚重感。对于钢柱的表面处理,设计坚持采用防火涂料做完成面,而非铝板装饰,从而实现整体结构的轻盈和通透感。

▲新老楼的连廊和庭院空间
为明确施工界面,避免设计漏项,设计初期即通过图表和设计说明对室内精装、景观及幕墙深化进行清晰的界面划分。在设计过程中,建筑专业与结构、机电、室内精装、幕墙设计以及景观设计进行高度融合的一体化设计。例如为确保室内净高,对影响净高的露台落水斗及雨水管路由进行多次修改,并由建筑专业提供主梁位置供结构专业定位。
在外立面幕墙的设计中,设计团队秉持精细化的控制理念,运用开放式与封闭式2种铝板幕墙体系,打造利落的立面效果。为追求更精致的近人尺度视觉效果,三层及以下采用开放式幕墙系统,避免胶缝对铝板划分板块的干扰,使建筑更显挺拔硬朗。四层及以上,受限于平面布局,采用封闭式幕墙系统,为追求玻璃与铝板平直的镜面效果,构造上采用无高差节点设计,最终效果不失精致。为避免立面开窗杂乱,采用通风器和机械排烟策略,并对层间铝板高度、材料色彩搭配等进行多方案建模对比,力求最佳视觉效果。铝板小样与老建筑银灰色彩反复比对,确保色彩呼应;对无法上样板段的穿孔铝板和彩釉玻璃纹样,进行原尺寸打印对比挑选,模拟真实尺度。
在现场巡场时,不仅发现问题及时沟通,还提出可实施的修改策略。例如,针对穿孔铝板安装处露钉问题,通过增加铝板折边深度隐蔽螺丝钉;针对室内开窗通风器打开后暴露幕墙内部龙骨问题,通过在室内侧增加浅色穿孔铝板进行规避。最终,项目在各方共同努力下,实现高完成度,获得建设单位的高度好评。

上海机场运行指挥中心扩建工程设计,植根于城市更新的背景环境,通过巧妙的空间布局、生态设计以及与周边环境的和谐融合,成功打造一座功能高效、环境宜人的现代化指挥中心,成为城市中一道独特的风景线。设计既满足功能需求,又体现对城市文脉的尊重与创新,为城市更新等类似项目提供宝贵的参考价值。

▲新老楼的空间对话






评论