
01
项目背景—区位优势与产业机遇的深度融合
在“双碳” 目标的大背景下,新型储能产业作为新能源产业的“动力引擎”,是实现“双碳”目标的重要支撑力量,应用前景广阔。珠海高新区把握产业发展的机遇,积极构建产城一体的新型产业新社区,并将新能源的相关产业纳入“3+3+1”现代产业体系。大湾区新型储能生产基地项目积极践行工业上楼理念,基于储能产业生产工艺进行空间载体的定制化设计,致力打造储能行业的 “超级工厂”,助力珠西科学城高质量发展。
本项目坐落于珠江口“黄金内湾”西岸,地处珠海市“东大门”——珠西科学城核心区域的高新区,区位和交通优势显著,随着广珠澳科创走廊的建设,进一步带动产业集聚发展,科技创新升级。

#1 项目区位图
02
工艺解读—定制化空间与高效物流的协同运作
2.1 储能工艺
本项目生产工艺专注于电池检测与化成设备、PCS系统以及充换电站设备的研发与生产,在新型储能产业领域具有一定的代表性与普适性——其主要工艺流程从电芯化成与分容开始,经过电池簇封装与测试、PCS 组件装配,最终完成储能柜整体测试与系统调试。
2.2 功能布局
根据生产工艺要求,采用 “工业上楼” 模式,将五大功能区按楼层进行分层布局,其中一层为总装区,承担产品总装、测试及化成工作,二、三层分别为线束与运动机构生产区,负责相关部件的加工、组装及校验, 四层为电源模块生产区,聚焦PCS组件装配,以及GAN的生产与测试,五层为仓储物流区,规划包含备料、储存、待检区域及物流通道 。

#2 各层功能空间
2.3 空间特征
建筑空间基于工艺需求量身订制,相较于传统的标准厂房,展现出四大独特空间特征:
a. 大平面:厂房平面尺寸249.1m(长)*72.3m(宽),在生产主层规划了长度分别为141m、154、212m的三条生产线,充分满足大规模生产的需求。

#3 首层平面图
b. 高净空:首层生产主层层高12m,精准规划生产净高、桁吊、设备层与检修层、结构高度,为各类生产设备的安装与运行提供充足空间。
c. 高承重:在一层桁吊区域设置了载重45吨的牛腿,不仅能满足本项目企业的生产需求,还能高度适配其他智能制造行业,提升厂房的通用性。
d. 长柱跨:基于设备尺寸和物流通道的最小要求,采用14.2mx11.8m柱网模数化布置,确保生产通道净宽≥12米,为物料运输和设备移动提供宽敞便捷的空间。
2.4 立体物流
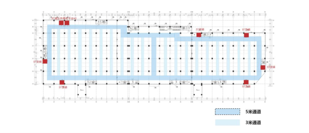
由于储能设备体积和重量都很大,对水平和垂直交通运输工具的荷载能力提出了较高要求,项目在物流设计上,以叉车搬运作为水平运输主要方式,以液压升降平台和货梯作为垂直运输主要方式,构建起高效的立体物流体系。
a、水平交通:1~5层采用 “主通道 + 专用道”叉车通道模式,形成集群作业路线,有效保障原料、半成品水平运输连续无折返,大幅提升运输效率。6层设置AGC物流通道,实现物流智能化、自动化高效运行。

#4 标准层物流通道示意图
b、垂直交通:垂直交通设计构建起 “立体运输网络”。项目设置了6组载重5吨的垂直货梯、2组8T的液压升降平台、以及每层预留3个设备吊装口,将各楼层生产单元紧密连接,实现设备、物料的垂直转运,确保各楼层生产环节的顺畅衔接。

#5 垂直货运交通示意图

#6 货运和吊装口实景图
03
建筑设计—巨构体量与模块立面的有序结合
3.1 建筑巨构,储能方舱
项目所在的高新区金鼎片区,上位规划以“产业新社区”为核心理念,通过探索构建城市社区新形态的路径,打造产城融合示范区,作为首个呈现的产业新社区,在香山路近3km的范围内,集中布局了智能制造、新能源以及生物医药三大产业组团,以高品质产业建筑重塑片区门户形象。
本项目地处产业新社区的核心位置,平面尺寸达249.1m(长)*72.3m(宽)*28m(高),建筑体量远超常规高层厂房,堪称“超级巨构”,因此,立面设计需重点兼顾与片区内产业建筑风格的整体协调,同时着力塑造储能建筑的专属形象。

#7 “产业新社区”区位示意图

#8 “产业新社区”效果图
3.2 化整为零,模块单元
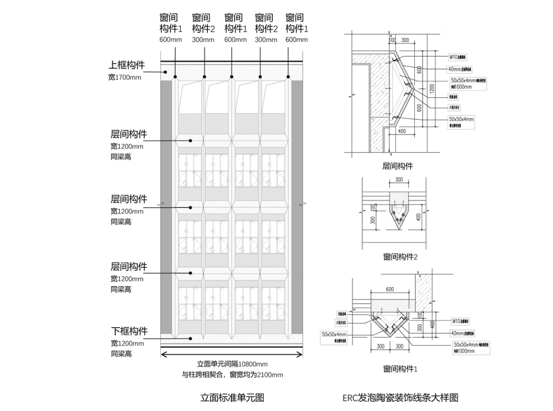
在立面整体效果上,以上下两段大面进行色彩分割设计,通过白色与深灰色的对比,有效弱化了超大体量的压迫感,上部的外立面设计提取“储能舱”概念,采用化整为零的手法对超大体量进行体块切分,形成4个大型模块化单元,通过层层划分,逐级同构的方式,统一比例,形成一个个标准的白色“储能舱”,外立面结合开窗设计,借助水平和垂直线条,构建出一个个ERC单元式构件,使立面整体层次分明,风格明快,同时充分体现出秩序和韵律,既与城市界面相呼应,又赋予建筑独特的标识性。

#9 立面模数示意

#10 沿街实景图

#11 西立面图

#12 局部立面图
04
低碳策略—“光储充” 模式引领绿色能源利用
4.1 光储充规划
基于本工程的日照条件和负荷特性,采用了“光储充”的绿电模式。在建筑屋面设置1MWp的低压并网型BAPV系统,所产生的电能全额自发自用,有效缓解高峰期的电力供需矛盾。
储能系统采用“两充两放”的峰谷套利运行策略,即在谷、平电价期各充电1次,在峰电价放电2次,这一策略不仅提高了项目收益率,还能有效缩短成本回收期。同时,储能系统也为大容量充电桩提供电能,减少了充电桩运行对园区供配电系统的冲击。
上述三大系统通过能量管理系统(EMS)统一协调管控,实现高效、安全、灵活的能源综合利用,达成了技术与经济的共赢。
05
结语
本项目以储能产业为纽带,是将工业上楼模式转化为城市共生的一次创新实践 ——工业建筑不再是割裂于城市的生产孤岛,而是产业社区中鲜活的 “有机细胞”,它以高效的产业空间激活区域科创动能,不仅为区域储能产业的发展提供了优质的空间载体,促进区域产城深度融合发展,更为整个城市的产业升级和绿色低碳发展贡献了重要力量。
项目地点:广东珠海
设计时间:2023年3月-2023年6月
建成时间:2024年1月
业主单位:珠海高新储能产业园建设有限公司
设计单位:中国建筑西南设计研究院有限公司
用地面积:27745.13㎡
建筑面积:86095.86㎡
结构形式:框架剪力墙
项目团队:
中国建筑西南设计研究院有限公司(方案设计、施工图设计)
· 设计总负责人:王沃
· 设计副总负责人:袁志华
· 项目经理:刘飞
· 建筑专业:何精良、孙林、李泽宇、李超
· 结构专业:况建刚、刘锟宇、肖青、王旭、彭雁平、邓源
· 给排水专业:李晓玲、黄奕佳、董菲
· 暖通专业:欧海银
· 电气专业:周晓辉、王丹
· 智能化专业:徐胜梅、程伟
评论