
2025年,一座全新的文化地标在内蒙古呼和浩特市亮相。
从设计到开馆历经了6年时间,经过红色革命教育基地转向文史博物的内容重置等重大修改,内蒙古博物院新馆以13.7万平方米的恢弘体量,开启"北疆文明容器"的叙事篇章,同时也成为了我国最大的博物馆单馆。
这座博物馆以独特的建筑语言,将草原文明、历史记忆与现代审美有机融合,成为中华文明多元一体的生动注脚。博物馆投入使用半年来,获得业内外与社会各界以及市民和游客的好评。

新馆设计灵感源自内蒙古独特的本土自然地理与文化基因,"拥抱大地"的理念贯穿始终——建筑屋顶的圆形穹顶象征苍穹宇宙,呼应草原文化与蒙古族建筑原型,方形基座寓意广袤大地,与远处的阴山山脉遥相呼应,暗含"草原文明汇入中华文明长河"的深意。

建筑形体呼应内蒙古"东西长而南北窄"的地理特征,360米长的弧形主立面与中央公共大厅呈弧形姿态环抱北面的大青山,与阴山岩画的历史肌理形成跨越千年的对话,使建筑在广场的人视点与空中鸟瞰视角均能感受到雄鹰展翅的蒙元文化气势。
与历史时空对话——民族与革命意向
博物馆最初设计主题为内蒙革命历史博物馆,因而在入口大厅留有了容纳近万名少年儿童的宣誓大厅。建筑设计力图与历史时空产生对话,40米高的主楼与23个开间的柱廊呼应了1947年4月23日内蒙古自治区人民代表大会召开的重要历史事件,致敬内蒙古自治区成立的革命历史峥嵘岁月。


34根朱红立柱矗立北侧广场,以内涵的数字密码镌刻民族共同体意识——每根立柱代表一个内蒙古的世居民族,从蒙古族到鄂伦春族,34种文明在此平等对话,柱头哈达造型暗含"民族团结"隐喻。红色石材幕墙取自大兴安岭的火山岩,既是对革命历史的致敬,亦延续了蒙古族对"红"的文化崇拜。

自然地貌的诗意转译——草原记忆
建筑立面上蜿蜒的曲线既模拟草原丘陵的韵律,流动的曲线元素亦如舒展的哈达,传递着民族文化的敬意与祝福。入口柱廊的柱基底部巧妙的进行圆拱透空的设计,一方面是建筑技术与结构美学的呈现,同时反映了蒙古族对大地的敬意,是对蒙古包结构与居住方式的集体记忆原型的回应。



入口大厅设置了开放的无柱空间,顶部采光天窗引入"草原晨曦"光影序列,夜间通过智能控制系统,使3000㎡红色铝板幕墙呈现"星火燎原"动态光效。该室内公共空间的设置便于处于严寒气候区的内蒙的全年公共艺术文化活动开展,提供了积极的空间物质载体。

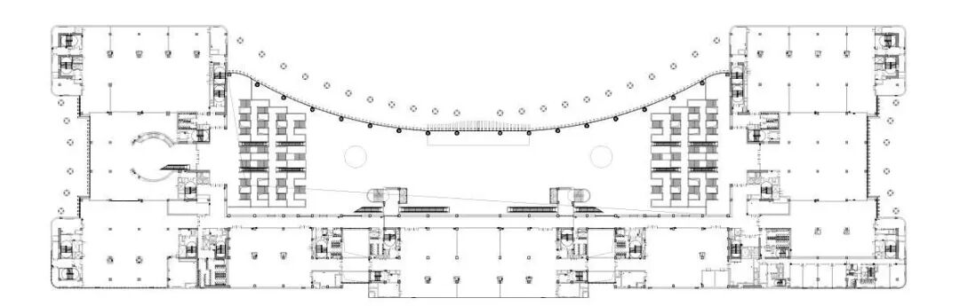
空间与功能复合的立体文化矩阵
新馆突破传统展陈逻辑,构建起"立体文化矩阵":地下一层打造沉浸式草原文明体验舱,首层2.9万㎡展厅串联"飞天神舟"航天展与匈奴黄金覆面特展,四层空中连廊化身数字丝绸之路的起点。本土材料图书馆收集内蒙古5大沙漠、3大草原的23种典型建材样本,构建地域材料基因库。

博物院采用了"垂直功能分区+水平流线串联"的复合布局模式;负一层设置7000㎡专业库房(含3个恒温恒湿库区)、设备用房及机械停车库,通过环形物流通道实现藏品高效转运。
首层层高5.5m,为2.9万㎡开放式展厅集群,中央1.5万㎡的综合大厅作为视觉枢纽,联系起东西两侧对称布局临时展厅与专题展区。二层层高8.7m层高,主展区聚焦内蒙古革命历史主线,通过双层通高空间强化叙事张力。





空间与流线设计上,国内首个采用"双首层"疏散体系,通过东西两侧4m宽消防连廊与南北向坡道,实现10分钟内全员疏散。公众流线与公共交通便捷接驳,设置了3条地下连廊衔接周边广场与政务中心和交通枢纽。南侧前区为2.5万㎡城市广场,作为重大节庆活动的活动与开放空间。考虑应急流线,东西两侧屋顶设置直升机停机坪,与地下人防工程形成"平战结合"生命通道。


绿色基因与生态策略
博物院蕴含着超越时代的智慧,设计注重绿色基因的考量,采用雨水收集回收系统,非传统水源用水量超过50%,能耗较传统建筑降低40%。生态策略上,地面透水铺装率达75%,下凹绿地与雨水花园形成三级蓄滞系统,年径流总量控制率超55%,采用太阳能热水系统,提供生活用水比例超过50%;智能运维上,能源中心搭载AI能效管家,实时调节空调负荷,较常规场馆节能42%;数字孪生上,建立BIM运维平台,通过3000个物联网传感器监测建筑健康状态,故障预警准确率达98%;碳足迹公示,入口大厅设置实时碳计量屏,展示建筑全生命周期减碳数据,打造"看得见的绿色承诺";608座多功能报告厅采用"花瓣形"声学穹顶,配合智能调光玻璃,可快速切换学术会议与数字展映模式。450座的阶梯报告厅(草原议事厅)采用"哈达"造型座椅,可瞬间转换为露天剧场,举办那达慕直播、星空观测等活动。
博物馆“第三空间”进化论
展陈采用新型信息技术,其中数字孪生展厅运用UE5引擎构建1:1虚拟展馆,游客可通过手机扫码来触发文物背后的动态史诗(如匈奴骑兵数字阵列重现);感官实验室,国内首个草原生态声景系统,通过定向音箱阵列还原狼嚎、马蹄等37种原生声音,配合气味扩散装置唤醒五感记忆。


AI导览机器人引导"顺时针螺旋游览",通过AR眼镜实时解锁文物故事,参观时长可弹性控制在2-4小时。博物院还关注社群交互,文创空间旨在孵化草原文化IP,据统计周末非遗工坊吸引了超3000个家庭参与。

充分发挥城市文化客厅功能,地下一层2.9万平方米的文创商业区融合内蒙古非遗工坊、草原主题餐厅与智慧零售,周末客流峰值达3万人次,设置金属锻打、皮雕等9大专区,游客可现场定制文物复刻品并参与区块链确权。


内蒙古博物院新馆不仅是草原文化的容器,更是传统文化与现代技术终在可持续发展的维度上达成的美学共识。当夕阳为樱花红石材镀上金边,当孩童在哈达幕墙下描绘民族图腾,内蒙古博物院新馆正以其独特的建筑语言,续写着中华民族多元文化一体的当代传奇。


项目地点 内蒙古自治区呼和浩特市
设计时间 2019年
建成时间 2025年
用地面积 19.9万m²
建筑面积 13.7万m²
设计主持 曹晓昕
建筑专业 孙雷 王献娉 王文革 乔华 李颖 周龙 孙超
总图专业 高治 周清照
结构专业 何相宇 周岩 李妍,刘雪冰
给排水专业 夏树威 高燕飞 刘洞阳
暖通专业 徐征 唐艳滨 高丽颖 董元君
电气专业 李战赠 常立强 肖彦 戴玉 杨骏
智能化专业 高爱云 王野 任亚武
经济专业 赵静 张桂芝 胡艳豪 李小维
室内专业 李江 陈倩 王志鹏 李瑾 刘颖为
建筑摄影 李季
评论