



作品设计灵感源自“火星屠场”这一概念,由意抵境,空间逐一解构,创造空间情绪。
The design inspiration of the work comes from the concept of "Mars Slaughterhouse". From the intention to the scene, the space is deconstructed one by one to create the mood of the space.
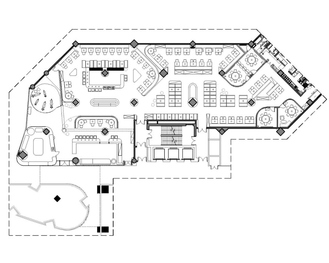
三大功能区域以1:1复刻金属质感的轨道传送带密切链接,以“鲜”为始,以“新”为终,构筑现实与未来交叠的感知连接。
The three major functional areas are closely linked by 1:1 replicated metallic texture track conveyor belts, starting with "freshness" and ending with "newness", building a perceptual connection where reality and the future overlap.

入口处机械牛与LED还原品牌全产业链的第一站“牧场”,以细腻冷冽的探照灯具模拟未来科幻场景,明档区域充斥重金属味道,牛肉的鲜美通过徐徐递进的轨道意向传送至核心用餐区。
The first stop of the brand's entire industrial chain, "Pasture", is recreated by mechanical cattle and LED lights at the entrance. The future sci-fi scene is simulated by delicate and cold searchlights. The open kitchen area is filled with the smell of heavy metal, and the freshness of the beef is conveyed to the core dining area through the gradually advancing track intention.



打磨精良的不锈钢围合出独特用餐区,同时兼具吧台功能,特有的肌理纹路配合发光天花以及LED的交叠变化,材料自身的独特属性营造出一种未来科幻感。
The exquisitely polished stainless steel enclos a unique dining area, which also serves as a bar counter. The distinctive texture and pattern, combined with the overlapping changes of the illuminated ceiling and LED, create a futuristic sci-fi feel due to the unique properties of the material itself.
镜面天花延伸了视觉上的深度与空间的通透,虚实相交。
The mirror ceiling extends the visual depth and the transparency of the space, with the interplay of reality and illusion.
皮质沙发与与金属相接,解构了设计材质的局限,曲折蜿蜒的金属轨道呈现出场域的导视系统。
The leather sofa is connected to the metal, deconstructing the limitations of the design material. The meandering metal track presents the wayfinding system of the entrance area.

项目名称 | 左庭右院 黑金店
项目地址 | 中山公园龙之梦店
项目面积 | 1238㎡
完工时间 | 2022年06月
设计总监 | 周博 / Jingle Design浆果设计研究所
主案设计 | 庞铠、李晨硕、崔启威、杨喆翔 / Jingle Design浆果设计研究所
艺术陈设 | 刘中男 / Jingle Design浆果设计研究所
深化设计 | 李文静 / Jingle Design浆果设计研究所
绘图团队 | 李文静 / Jingle Design浆果设计研究所
评论