
地址:白俄罗斯 明斯克
面积:220 平方米(25位员工)
时间:2020年
摄影:Sergey Artemov
Tags:科技,空间色块、微水泥、声学墙板、蓝色与粉色、优雅灰、时尚摩登、精致唯美工业风
SVAI Studio设计团队精彩呈现IT公司DEVXED位于白俄罗斯明斯克的办公场所。设计团队以精湛的配色结合简约的设计语言,创造性的将一处住宅空间打造成精致、唯美且舒适的工作空间。
△ 项目视频

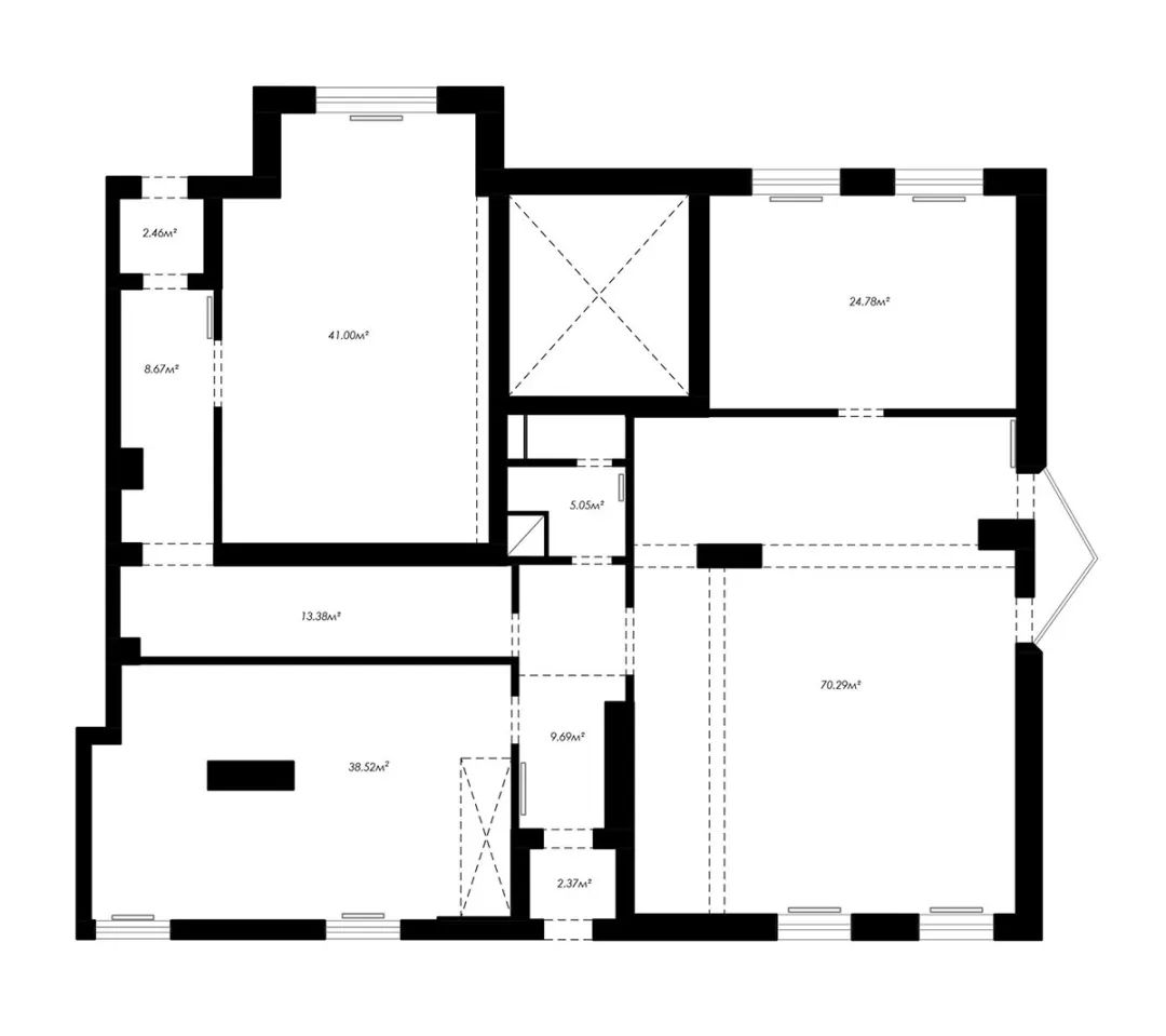
具有独立入口的DEVXED办公室位于多层住宅楼的一楼,总面积约220平方米。本案最重要的设计任务是创建一个舒适的工作场所,并为25名员工提供灵活的工作配置、宽敞的会议室和一间相对独立的行政办公室。








在以住宅结构为主体的建筑平面内布局办公室,需要最大化的高效利用每一寸空间,并力求营造舒适开敞的空间感。设计团队取消了狭窄的走廊和不必要的墙体。装修天花板内隐藏了通风系统的设施,极大地占用了房间本来就不高的层高。由于后期仍需要通风系统,因此只是拆除了二次装修的天花板。







根据建筑平面现实结构,自然形成了三个主要工作区域,分别容纳不同部门的员工。独立办公室和会议室通过智能玻璃隔断与开放空间隔开,当按下按键时,透明玻璃就变成完全不透明的雾化玻璃。即使在如此紧张的面积里,设计也没有忘记为员工提供舒适的休闲区。在玻璃隔断的后面是一间带早餐吧、餐桌和游乐区的厨房。


























此外,尺寸相当庞大的通风系统管道在室内根本无法做到隐形,因此设计团队决定将它们作为设计元素并重点突出它们,反而形成令人印象深刻的独特空间美学。








1、Fiber 餐椅,品牌:Muuto



评论