之江云上集—金龙矿粉厂改造项目
ZJ Market Above the Cloud
项目地点: 浙江杭州
建筑面积: 12586平方米
设计/竣工年份: 2023/2024
业主: 杭州金龙矿粉有限公司
Location: Hangzhou,Zhejiang
Gross Floor Area: 12586 m²
Design/Completion Year: 2023/2024
Client: Hangzhou Jinlong Mineral Powder Co., Ltd.
“随着国家的宏观调控,许多矿粉厂、水泥厂因其对环境的破坏与污染逐渐被关闭甚至拆除,而金龙矿粉厂如同时代的幸运儿,历经时代洪流的洗礼坚韧地留存下来。如今历经一场蜕变后,原本破败的废墟重新焕发新活力,传统工业矿区在时代的浪潮下逐步演变成高科技实验室,绿色美好的城市空间正在见证一场过去与现在的对话。”
Amidst national macroeconomic regulation and control, many mineral powder plants and cement factories have been gradually shut down or even demolished due to their environmental damage and pollution. However, the Jinlong Mineral Powder Plant stands as a fortunate survivor of its era, enduring the trials of time with remarkable resilience. Now, after a transformative rebirth, the once dilapidated ruins have regained their vitality. The traditional industrial mining area is gradually evolving into a high-tech laboratory among the tides of change, while green and vibrant urban spaces bear witness to a dialogue between the past and the present.

航拍厂区实景©文沛
01
#项目概述#
金龙矿粉厂位于浙江省杭州市西湖区转塘街道,北邻石龙村路,于 1978 年建设, 1980 年正式投产,至今已有四十余年的历史。周边集聚云计算、航空航天、文化科技等产业资源,北面有艺创小镇,西面有云栖小镇。南面为铜鉴湖公园,自然山水景观优越。现金龙矿粉厂改造为汇聚艺术、高科技产业、创业办公、休闲娱乐于一体的综合城市公园。

整体区位图©ZIAD

园区区位图©ZIAD
02
#设计理念#
设计充分尊重场地现状,建筑顺应地形起伏,自然融入周边山体环境。同时,在保留原有建筑肌理与布局的基础上,对部分经安全评估认定存在安全隐患、无法保留的建筑予以拆除,并严格遵循原址重建、风貌协调的原则延续原有的空间秩序与工业记忆。

厂区鸟瞰图©ZIAD
根据各个建筑的特征植入新的功能和产业,如展示中心、文化艺术、创意空间等。园区中心打造绿色低碳的生态文化广场,覆绿建筑屋顶,力求将项目建成绿色生态修复的示范园区。通过功能激活,充分挖掘既有建筑的价值,进行合理高效的再利用,让旧建筑在新时代中找到新的价值和意义,焕发生机。

功能分区图©ZIAD
2.1 #旧厂的保护与活化
对于外立面工业特征保存完好、主体结构稳固、室内空间完整的厂房,设计对其进行完整保护,并进行结构加固以及立面修复及提升。采用铝合金格栅和聚碳酸酯板形成虚实对比的立面,尽可能减少对原有立面的破坏和负担,立面材料色彩与周边建筑相协调,并对原有建筑功能进行转化与升级,使之能满足现代人们的生活需求,实现旧厂房的新生。

厂区内半鸟瞰©文沛
2.2 #结构加固
建筑内部空间保留原建筑形态的同时,结构加固方案尽可能排布整洁合理,拆除原生产车间内多余的配件构造,高效合理地利用现有内部空间,根据不同的建筑内部空间营造适宜的建筑内部场景——接待中心、特色商业、艺术画廊、文化展示中心等;建筑内部大空间建筑,改造时充分体现内部空间的可变性,确保后续不同运营商的功能使用需求。


室内空间©文沛
2.3 #立面改造提升
对于拆除重建的高新产业研发区,外立面采用冷色调彩钢板,与周边建筑的色系色调一致,同时也适应厂区功能需求;对于外立面风貌保留完好、具有较高的工业厂房遗存价值的建筑,在不对立面产生破坏的前提下,采用外挂金属格栅(筒仓采用圆管,其他采用方管)和聚碳酸酯板的形式进行立面的改造和提升,格栅和聚碳酸酯板虚实呼应,塑造良好立面景观;对于拆除重建的艺术文化展示区,采用聚碳酸酯板重塑建筑立面,外观轻盈淡雅,同时柔和室内光线,营造微妙的艺术氛围。


改造后外立面©文沛
03
#技术亮点#
本项目设计过程中在尊重原有现状的基础上进行适当更新,改造重建时融入现代技术与理念,满足人民现代化需求,实现新旧风貌交叠、过去与未来共生;另外结合地形特色,融入绿色生态理念,通过屋顶覆绿、原垃圾填埋场改建生态停车场,为人们打造生态城市公园。

西侧鸟瞰图©ZIAD
3.1 #新建的融合与共生
对于拆除重建的建筑,采用原位重建,新建建筑体现现代技术与理念,规模与布局基本尊重原有建筑,并置入新的功能与文化产业,如园区接待以及艺术文化展示,吸引周边场地人流,带动整个城市公园的活动氛围。新建建筑采用和保留建筑相同的立面材料,整个建筑群风貌新旧交叠,过去和未来在此融合共生。

东侧鸟瞰图©ZIAD
3.2 #绿色生态修复
项目结合原始地形,在园区中心打造了一个生态景观广场,围着中心广场设置了商业、艺术、文化区。主入口两翼保留原建筑的空间格局,采用地景化手法,将平面景观延续到建筑屋面。其余生态景观广场周边的建筑屋顶覆绿,将更多的绿地还给城市公园。

生态景观广场©文沛
根据现场充分调研分析,同时考虑基地周边现状肌理以及场地内现状建筑形态以及游客人群的交通流线,在整体场地内打造了一条绿色生态的游客观光轴,从整个园区的主入口串联起场地内的多个片区组团,一直延续到项目南侧的生态停车场。

主入口处街景图©文沛
04
#社会价值#
矿粉厂在保留原有建筑风貌形态、延续自己工业厂房特质的前提下,不断充实新的功能、产业和文化,调整适应现代化生活,并关注着自身的可持续健康发展。未来的矿粉厂将会是文化、工业遗存文化和现代化城市公园文化集合体,为市民提供以工业文明为主题的城市休憩开敞公园,着重打造多层次复合的生态活动新体验,成为现代都市文化创意生活的载体。
点击查看改造前后对比
05
#专业图纸#

总平面图

首层平面图

二层平面图

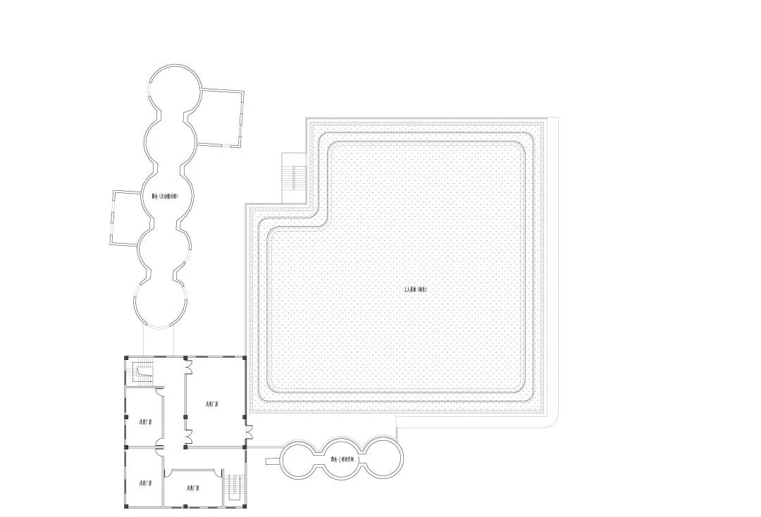
屋顶平面图

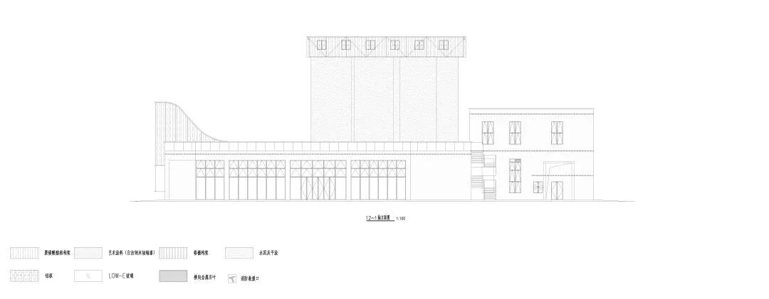
立面图

剖面图
#设计团队
建筑 | 林峰、朱周胤、马立、金逸、甘勤俭、盛春云、杨皓翔、田源、董晓
结构 | 任涛、徐伟斌、严巍、尤宇翔、戚亚珍、姜珉明
电气 | 王刚
暖通 | 金涛、万阳
给排水 | 王凌燕、冯友斌
幕墙 | 林娜、蓝黎冰
评论