阳江市综合文化中心位于阳江市漠阳湖公园北侧,基地环境优美视线开阔。项目集合了阳江市档案馆、党史馆、方志馆、名人馆、博物馆、规划馆及工人文化宫等多个机构与功能,它为周边社区注入全新的活力,成为阳江市新城区的文化地标。



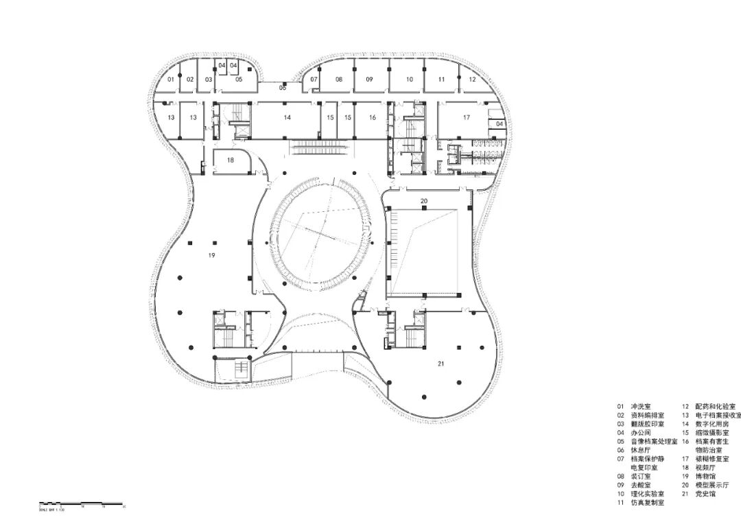
阳江市综合文化中心采用功能复合、共享集约的设计策略,通过将7个独立运营机构集中在文化中心建筑内,环绕共享中庭布置,形成7馆合1的复合型的文化综合体布局,既为市民带来了丰富的空间体验,又通过集中的服务管理缩短流线、节约用地、表面积与空调能耗,减少公共配套资源浪费,创造了国内小城市文化综合建筑集约建设的新模式。



我们希望文化中心不仅被设计为新区的地标,也能成为与周边公园共享、为市民提供多重体验活力场所。建筑基座通过绿化平台的手法向漠阳湖公园延展打开,平台上设置尺度宜人的平缓草坡,建筑基座部分融合如咖啡、书吧、工人文体活动等功能。
市民可以随意进入、停留、休息,结合平台上的观赏植物与条石座阶的设计,市民不但可远观漠阳湖景和河流景色的全景视野,也可在平台上实现各种社交活动,各得其所又不干扰。绿化平台承载多样活动,成为漠阳湖公园的一部分,将文化中心和公园的人与活动连为一体,使建筑从封闭的传统文化公共建筑变成平时向社区开放的活动场所,激发新城区的社区活力。





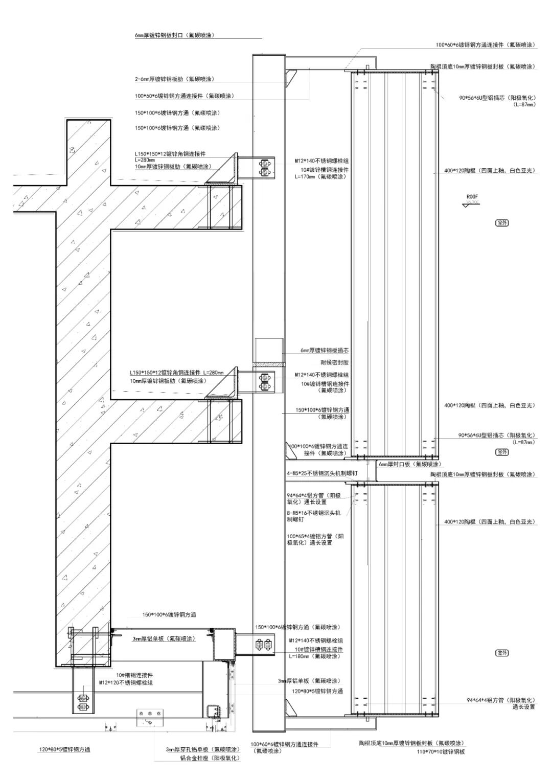
文化中心微妙的平面外形与立面轮廓控制,令使用者环绕建筑时随着视角的变换,可体验到不同朝向各不相同的形体与高低起伏的轮廓变化。而参数化的立面陶棍肌理,在阳光的照射下带来丰富而充满动感的光影变化,远观彷如微风吹动的风帆与波浪,展现这阳江滨海城市的地域特色与文化自信。



方案结合亚热带滨海地区高太阳辐射、炎热潮湿气候的特征,采用多项被动式建筑设计措施降低建筑运营能耗,包括:
立面的竖向遮阳陶棍是项目设计的重难点,主创团队设计了具有独创专利的大型复合陶棍遮阳系统,结合建筑各方向立面的阳光照射角度、辐射强度模拟计算,采用参数化的定位控制使陶棍在立面上形成不同角度、高度的变化,在各个方向实现最佳的遮阳、隔热和采光效果。



建筑采用有利于通风降温的被动式布局,夏季南向海风经过湖面降温,为建筑带来清凉的空气,降低文化馆内外环境温度;建筑设计有通风中庭、主导风向开口与立面开窗,春秋季过渡季节可采用自然通风,大幅降低运营能耗。






总平面图 GENERAL PLAN










2024年度阳江市优秀工程勘察设计奖综合类优秀公共建筑设计 一等奖
评论