历时3年的打造,湖州职业技术学院如今终于揭开了其神秘的面纱,以崭新的姿态呈现在世人面前,依托其得天独厚的自然风貌条件、古朴优雅的建筑设计以及高配置且极具现代化的室内设计,或将成为湖州的又一文化新地标。

湖州职业学院的图书馆部分,作为整个学院的门面,更是以学院会客厅的姿态,迎接着八方来客,她在展现湖州学院文化传承与发展脉络的同时,也在接受着世人的检阅,特别是其内装的部分,其建造品质、选材及还原度受到了当地政府部门领导、学院负责人以及参与该项目的各单位负责人的高度的评价。
书接上回,在之前的文章里,我们已介绍过我院参与了湖州职业技术学院新校园全过程的一体化设计。这次便来说说在湖州学院图书馆内装设计背后的故事。
湖州职业学院图书馆位于整个片区的西侧主入口中轴线处,其主体共分为四个部分:主楼(开架书库及阅览区)、西楼(校史馆)、东楼(报告厅、档案馆、行政办公)、南楼(自习及报刊阅览)。其重要的节点位置便已奠定了其内装的高要求及标准。

然而,在其内装方案的初始阶段其实进展的并不顺利。
当概念方案如一幅意境优美的“简笔稿”交到我们手上时,我们看到的不仅是已呈现的亮点,更是背后需要填补的大量空白,以及从“效果”到“效果实现”之间,那条必须亲手搭建的桥梁。
01CHAPTER
方案补全与空间深化设计
基于前期概念方案,我们对已有设计内容进行了做法确认与细节推敲,同时针对未表达的空间补充了完整设计方案,确保全区域设计语言统一、功能合理。
挑战:设计资料较少、细节做法需深化


▲设计资料较少

▲各专业间沟通协作
团队以主动探索的态度积极应对:首先向方案团队系统确认已有空间的做法、材料体系及收口标准,明确深化设计的框架;继而参照方案的设计元素和整体风格,结合建筑阶段模型,推敲其余空间做法。同时主动联动各专业协同校准落地可行性,规避跨专业冲突。

▲推敲过程
02CHAPTER
全专业深化设计推进
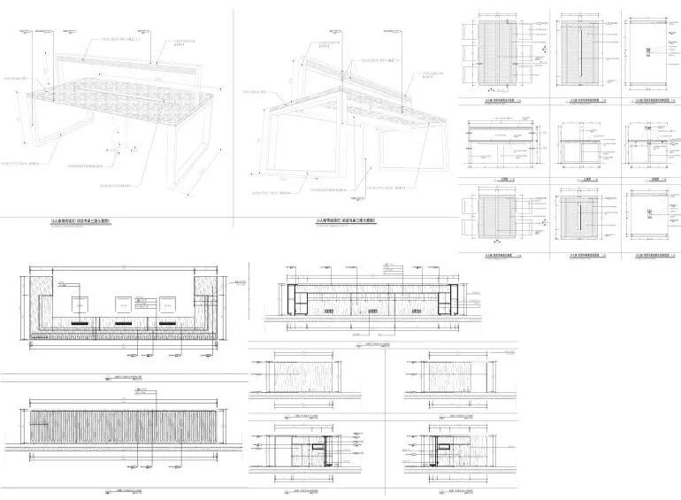
基于初步方案方向,团队全面开展了室内深化设计,包括平面系统优化、立剖面图绘制、节点详图设计等,逐步构建起完整、可行的施工图设计体系。

▲ 深化设计平面系统图定位与布局

▲深化设计节点详图
通过360个节点以放大比例清晰表达构造工艺,如墙顶地不同材料之间的搭接、收口、留缝、与建筑外立面的交接关系、点位、设备等的安装固定方式及要求、重点(复杂)部位放大详细表达,确保施工可行性与精度。

▲深化过程中协同
前期内装方案与建筑图纸在前期推进中存在阶段性信息不同步的情况,后期深化时,我们结合实际情况与规范要求,确保调整既合规又保整体。例如与设计方积极沟通,同步信息,取消防火卷帘下的固定家具。
03CHAPTER
材料与技术适配调整
我们结合国内规范要求与材料市场实际情况,对所选材料进行了属性复核、适用性调整与细分优化,确保设计成果符合本地施工标准与长期使用需求。


▲主入口门厅材质复核


▲报告厅复核

▲细分材料与分缝
从功能角度出发,根据材料的特性,进一步细分材料与分缝。以铝板为例,相同的面层,采用不同的基层做法。不锈钢材质也有类似的做法(出发点略有区别)。
04CHAPTER
设计整合与细节把控
通过调整模数关系、对齐各系统界面,如弱电点位,灯具等,以及影响采光天窗的管线、检修口设计、软装建议一些列深化调整,进一步提升了设计精度与图纸协调性,为后续施工配合奠定了清晰可靠的基础。

▲模数与对齐
调整模数,三个小台阶对应一个大台阶。地面、墙面、天花的线条对齐。

▲设备点位的重新整合
室内天花点位密集,前期统筹不足易导致排布杂乱。团队主动沟通并深化设计。如果只是简单的翻拍,可能就是左图这样;加以整理,如右图。


▲为还原天窗空间方案效果,调整管线走向
大量管线从东侧裙楼到南楼需要通过此处。双层脱离的吊顶,管线无法通过。经协调管线调整,通过室外地下管线连接。

▲检修口等细部控制
设计整块铝板液压杆+合页,类似隐形暗门做法,并提供实际案例,对于板面分缝无影响。

▲软装的设计与控制

▲软装的设计与控制
阅读书桌、服务台的设计,原本不属于硬装设计范围,我们的工作对于甲方后期家具招标选型起到了指导性作用。
05CHAPTER
匠心筑梦与施工护航
项目施工阶段,我们始终保持着与项目并肩前行,确保设计意图从图纸完美走向现实。
1. 设计清单核对与成本把控
协助甲方细致核对室内招标清单,确保项目内容与成本清晰对应,为施工开展奠定扎实基础。

▲协助甲方核对室内招标清单
2. 全程跟进与现场指导
项目施工期间持续保持远程响应,及时解答施工疑问,提供工艺指导,保障施工按设计标准推进。
大到甲方的功能调整(已过审图),小到灯具选型控制,都与施工方密切协作,几十轮的图纸答疑,确保项目的顺利推进。

▲施工阶段全程跟进服务,指导施工
3. 问题预警与快速响应以及灵活应对现场条件
主动识别现场施工与图纸不符之处,及时提出可行性调整建议,在问题发生前介入,避免返工与延误,面对施工中出现的尺寸误差与现场条件变化,我们迅速调整装饰面层与节点设计,在尊重实际的前提下,最大限度还原设计效果。

▲及时反馈解决方案

▲结构柱柱头处理
原金属复合板包柱方案中,未考虑结构柱柱头。现场反馈主楼楼梯底部结构柱顶部有柱头,存在无法包柱情况。经过与现场沟通,其他位置保持原金属复合板包裹不变,柱头处进行如图金属复合板包裹处理。

▲天花板细部处理
原设计中,每个金属条在灯的地方断开,与灯的两端碰撞。但与现场沟通发现,在金属嵌条与灯碰撞处,会出现小洞,呈露明状态。我们首先考虑采用石膏板填补缝隙,但发现在补完腻子粉和油漆后,会出现开裂问题。最终决定修改灯具做法,使金属条贯通。这样不仅解决碰撞处露明问题,也更加美观,方便施工。
06CHAPTER
总结与展望
这次项目,是一次典型的“深度共创”。我们很荣幸能凭借自身的系统性深化能力与跨专业整合经验,将美好的概念愿景,淬炼成可触摸的现实。同时,我们也总结了在这个项目中的经验与不足,这正是专业价值的所在——我们不仅是创意的执行者,更是让梦想安全着陆的守护者与赋能者。
评论