
项目位于沧州市运河区开元大道东侧、安悦街西侧、307南绕城北侧。项目地理位置优越、交通便利,场地现状无植被覆盖,与周边道路无明显地势高差,区域内无高压电线(电缆)穿越或跨越。项目总用地面积5.0731公顷,主要建筑包括综合教学楼、文体综合楼、宿舍楼、门卫;配套建设田径场、足球场、篮球场、旗台、绿化、硬化等。项目建成后为16轨制初级中学,共48个班2400人。



“知识之舟,千涛载卷”
校园规划以“知识之舟”为精神内核,将千年运河的漕运智慧转化为空间基因。建筑群如扬帆船队沿南北轴线左右展开,综合教学楼以顺列型的排布呼应运河上的漕船队列,层叠错动的立面构成“千涛载卷”的书简长卷。地面水波纹铺装串联旗台广场与运动区,形成载动文化传承的视觉长河;307南绕城路侧的生态绿廊如静默护波,使城市喧嚣化为学海航程的背景音。

“核聚联动,学脉贯通”
“核聚联动”理念驱动功能高效织融,构建贯通生长的学脉网络。两座教学楼通过双联廊形成学科共振体,专业教室与实验室环抱共享中庭,激发跨领域思维碰撞;综合教学楼通过室内连廊无缝锚接,实现全气候五分钟通勤圈。
以人为本,筑境育人
校园设计始终将师生的身心体验置于核心,从青春期的行为特征到教育变革的空间需求皆深刻融入肌理:教室模块化通过装配式框架实现灵活重组,支持探究式学习与协作共创;连廊网络织就风雨无阻的通勤纽带,校园内的每一步都踏着温暖与安全;窗台化作观景书案,景观庭院变身生态课堂。专业教室群环绕阳光中庭布局,落地玻璃模糊学科边界,激发思维的自然流动。夜色中暖橘光晕沿弧形轮廓流淌,既守护晚归脚步,亦以“明月映沧州”的诗意唤醒文化认同。


功能组织遵循全维度育人逻辑,打破教学、运动与生活空间的传统边缘界限。教学楼群通过灵动连廊形成有机网络,促进学科间的自然交融;地下文体设施与地面活动场地立体联动,释放多维学习场景。宿舍区与教学区构建风雨无阻的通勤体系,确保师生在各类天气条件下都能畅行无阻,真正实现以空间赋能教育效能的提升。

△总平面图©THAD
可持续发展理念贯穿每个设计维度。从生态降噪绿廊的边界处理,到透水铺装与屋顶花园组成的海绵系统;从装配式结构提供的空间重组弹性,到本土材料与低技节能策略的运用——所有举措共同织就绿色成长的生态基底。让校园不仅是传授知识的场所,更是承载代际记忆的容器,为沧州基础教育树立人文与自然和谐共生的典范。

△海绵城市措施©THAD

△日景西南侧半鸟瞰效果图©THAD


△功能分区分析图©THAD

△首层平面图©THAD
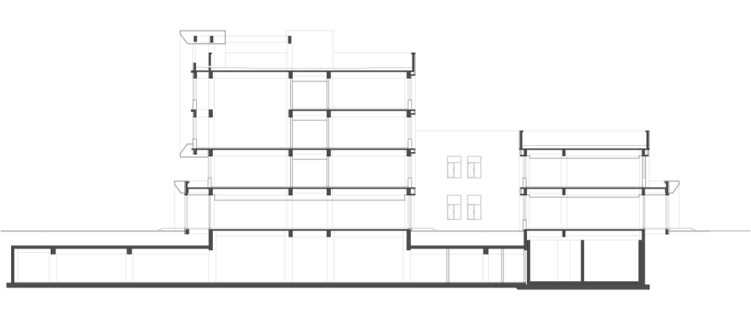
综合教学楼承载教学核心功能,半围合形式建筑体量呼应“知识之舟”的精神内核。本建筑共分为A、B、C座,建筑平面规整,每一建筑楼座均南北一组,各自形成围合、半围合内院。三座教学楼座沿东西向一字排开,形成各自独立又相对集中的教学区。

△夜景西南侧半鸟瞰效果图©THAD
建筑组群方整有序,教学楼造型设计凸显建筑体量感和空间虚实对比关系,利用竖向、横向线条,营造建筑的挺拔感、体量感,建筑风格简洁、新颖、大方,外观造型及色彩与周边已有建筑相协调。空间组织践行“核聚联动”内核,教学区采用“双核三翼”布局,共享中庭作为知识熔炉,专业教室、实验室与普通教室如船舱环绕分布,建筑外墙采用白色、灰色、橙色真石漆及局部铝板,虚实结合、色彩明快。

△日景南侧沿街人视效果图©THAD
教学楼地下一层功能为设备用房及汽车库,地上1-4层主要功能为50人普通教室、专业教室、教研办公室、阅览、食堂(就餐区)、变配电室、消防控制室以及各种教学辅助用房等。建筑地下一层层高3.9m(上部覆土区)、5.8m(主体建筑下部);首层层高4.5米,二层-四层层高为4.2m,室内外高差均为0.30m。

△综合教学楼1剖面图©THAD
文体综合楼为地上一层建筑,南侧功能为篮球馆,北侧为阶梯式多功能厅,中部为公共卫生间、更衣、淋浴等功能。篮球馆层高为9.6m,多功能厅层高为6m,中部门厅、卫生间、广播室等区域层高为4.80m。

△东北侧沿街人视效果图©THAD

△日景入口大门人视效果图©THAD
建筑立面风格现代简约,以橙色真石漆与白色构件、银灰色铝板(或银灰色金属漆)搭配,营造简洁大气氛围。橙色真石漆传递沉稳厚重感,呼应校园文化底蕴;白色框架与通透玻璃和白色穿孔铝板,增强空间轻盈感与采光。立面线条规整有序,横向窗带、竖向立柱塑造节奏韵律,既满足功能需求,又展现简洁明快、富有秩序的视觉效果,让建筑在蓝天绿树映衬下,彰显现代教育建筑的活力与质感。

△材质说明©THAD

项目名称丨沧州市第十四中学南校区
项目地点丨河北省沧州市
建筑类型丨教育建筑
用地面积丨 5.0731公顷
建筑面积丨 3.15万平米
中标时间丨 2025
设计单位丨清华大学建筑设计研究院有限公司
业主单位丨沧州市教育局
项目负责人丨蒋炳丽 马京涛
设计指导丨盛文革
方案设计丨宫学宁 赵欣亮 王倩颖
建筑设计丨郝利兵 丁鸿雁 刘训英 刘英男 赵婷 孟庆山 李玉威
结构设计丨李增超 陈化康 季运全 马志平 杨帆 张静锟
给排水设计丨郭汉英 李伟 王文举
暖通设计丨张志林 李铁利 丁明琦
强电设计丨王立驰 朱冰 何璐媛
智能化设计丨王立驰 朱冰 何璐媛
景观设计丨李伟 包春雷 李诗瑶 杨浩
绿色节能设计丨袁朵 刘晓晖 马莹莹
评论