
▵教堂传递校园之心意象 ©JJP

▵教堂南侧串联风雨走廊 ©铉琉工作室

户外讲台的十字符号 ©铉琉工作室
中华福音神学研究学院为一所培养学员研究并实践圣经的神学教育学院,依使用需求规划文教大楼、礼堂大楼、师生宿舍等四栋建筑物。该研究学院的建立,亦是一场将神学教育植根于特定地景并与之对话的空间实践。

▵教堂内部的纵向侧壁 ©铉琉工作室

校园配置顺应日照及地势作规划 ©铉琉工作室
Part 01 | 02 | 03
配置构想
学院的规划设计,首先是对此自然基底的回响:以生态永续为核心原则,致力于最小化环境干扰。设计策略性地主动顺应基地北低南高的地形特征,将校园划分为「教学行政」与「生活住宿」两大区域。

▵总配置图 ©JJP

▵校园空间规划图示 ©JJP
半开放的风雨走廊如纽带,串联起轴线上的各栋建筑,并与环场步道及院内绿地系统交织,将舒缓的草坡与渗透性绿地作为柔性的生态缓冲带与视觉联结,从而完成一个既尊重自然脉络、又满足现代教育复合需求的研究及生活群落。

▵阶梯大草坪界定出教学与生活两区 ©铉琉工作室

▵从大草坪东望生活住宿区 ©JJP

▵师生宿舍与儿童花园 ©铉琉工作室
01 | Part 02 | 03
校园之心
位于校园入口广场旁的礼堂大楼,是整体序列在空间与精神维度之中的锚点,其中的教堂是整个校园的凝聚之所,也是最具代表性的建筑物。建筑外观蕴含宗教意象的静默力量——教堂之上,十字架钟塔凌空而立,日光与月色在塔身周围缓缓流转,如无形的时光显影,在坚实的建筑材料上,留下关于晨昏与季节的、静谧而恒久的低语,与生态地景遥相呼应。

▵入口夜景 ©铉琉工作室

▵层叠错落的几何体块于光影中浮现出十字印记
©铉琉工作室

▵从默祷花园看向教堂栋,建筑体量采低矮分散的配置
©铉琉工作室
01 | 02 | Part 03
礼拜堂设计
教堂内部由前厅、大堂、讲台三个序列空间组合而成。前厅是礼拜前后的主要缓冲空间,帮助访客在尘俗与心灵的两个世界柔和地切换。行至挑高9.6m的大堂,视域豁然开朗,这是一个可容纳600人,并可弹性扩展至800席的宽阔场所,被赋予了一种基础性的稳定与宁静。最深处是讲台区,它虽形制简朴,却是整个教堂灵性与象征意义升华的顶点。

▵建筑剖轴测示意图 ©JJP

▵前厅为礼拜前后缓冲空间 ©JJP

▵大堂空间 ©JJP
在大堂的空间建构中,24m×20m的无柱钢构空间,以其清晰的结构逻辑呈现出现代工程的理性力量。两侧钢柱向上延伸出斜向交错的网状梁系统,构建出大跨度的拱形天幕。这一现代建构语言,并非简单模仿,而是对哥特建筑精髓——肋状拱顶的深刻解构与转译。

▵结构概念与构造图示 ©JJP
结构骨架的线性力量以一种前所未有的透明与轻盈,重塑了当代的礼拜空间。纵向侧壁是以云杉木条镶嵌而成的扩散墙面,既是对声学物理性能的精确回应,又以材料的温暖质感在技术理性与人文感知之间建立起微妙的张力,兼具空调系统的功能。

▵斜向交错之钢梁形成大跨度网状梁系统
©铉琉工作室

▵室内材质与构造图示 ©JJP

▵扩散墙兼具空调系统功能 ©JJP
与大堂空间相比,讲台相对简朴,呈现出一种洗练的专注。主墙以暖色调的天然岗石覆盖,质地坚实而温厚。设计的精髓在于光与石的对话:清晨,阳光从墙面中央精心镂空的十字架后方注入室内,穿透坚硬的岩石,化作一道具象的光之十字,辉映于空间之中,真实体现圣经中对神性与光的空间化阐述。

▵讲台 ©铉琉工作室
空间上部设有天窗,让全天候的漫射光线照亮讲台,使其与大堂形成明暗韵律的对比变化。当主墙上明亮的十字光影投射至空间深处,教堂内氛围更显宁静安祥,体现真实、平安之感。

▵默祷花园 ©铉琉工作室

▵风雨走廊串连教学区与生活区 ©铉琉工作室

▵入口广场夜景 ©铉琉工作室
中华福音神学研究学院的建筑实践,最终呈现为一个多重维度交织的意义载体。石材、木材与混凝土,以其本真的质感奠定礼堂大楼的空间基调,最重要的——自然光作为一种超越性媒介的戏剧化引入,共同构建出沉浸思考的默祷空间。而学院建筑本身通过与地景的对话、对地形的顺应以及对光影的精密调控,成为可被感知、浸染甚至栖居的精神场所。

▵校园总平面图 ©JJP

▵二、三层平面图 ©JJP

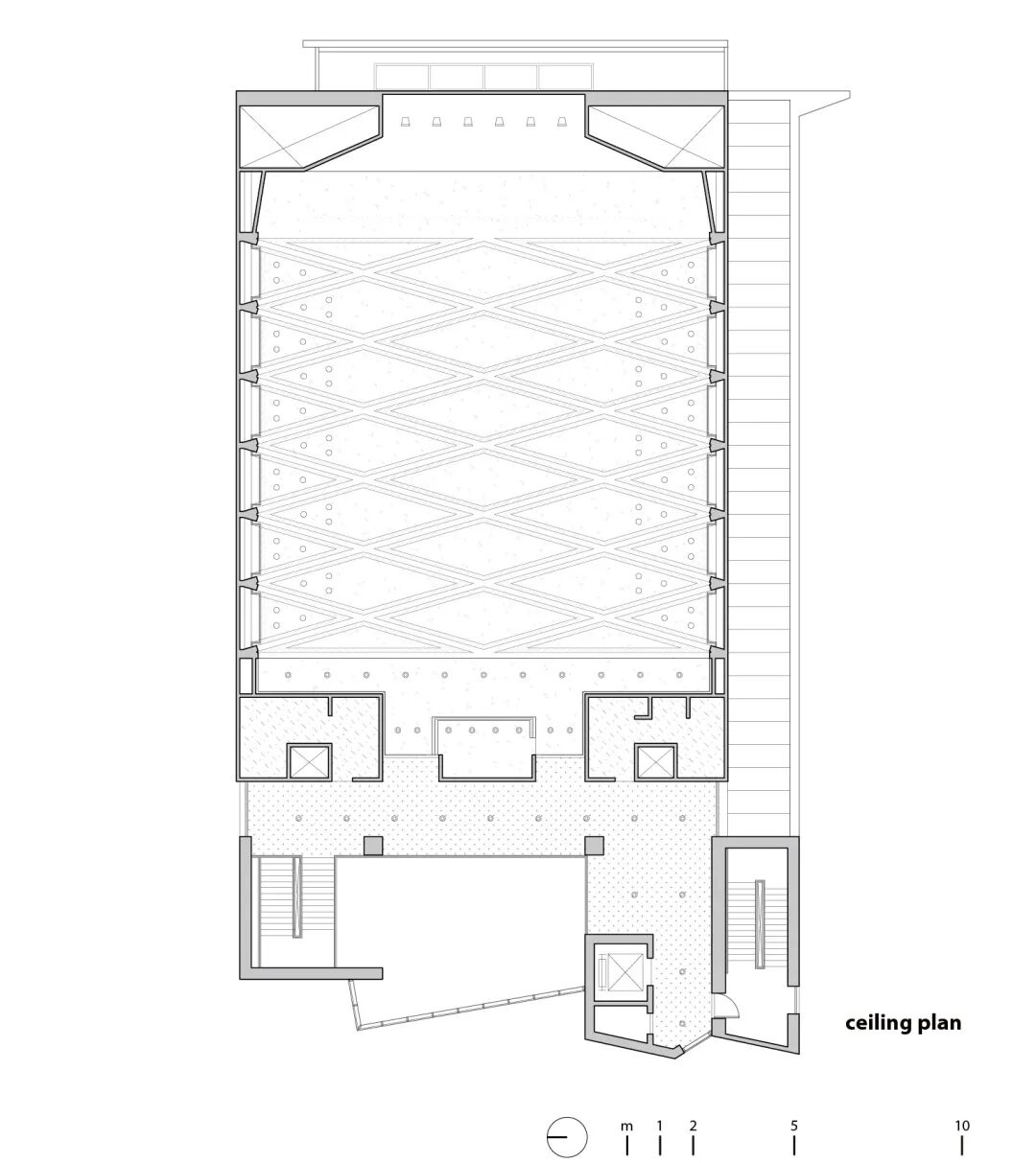
▵吊顶层平面图 ©JJP

▵剖面图 ©JJP
项目名称
中华福音神学研究学院八德校区
项目类型
建筑
项目地点
中国台湾桃园市
设计单位
潘冀联合建筑师事务所
主创建筑师
潘冀
设计团队
叶胜钿、马法耶、欧阳钧、吴姿桦、郑泑如、林育廷、黄诗芳、杨家琳
业主单位
财团法人基督教华神学校
设计时间
2016.05 - 2017.08
建设时间
2017.12 - 2019.07
用地面积
23,140㎡
建筑面积
10,546㎡
总楼板面积
18,610㎡
结构顾问
祥谷工程顾问股份有限公司
机电顾问
吴建兴电机空调技师事务所
音响顾问
台湾科技大学建筑系
施工
丽明营造
材料
仿清水涂料、玻璃帷幕、烤漆铝窗铝板、抿石子
图片版权
JJP、铉琉工作室
评论