项目名称丨嘉善梅花坊历史街区更新一期工程
项目地点丨浙江省嘉兴市嘉善县
设计时间丨2021年
竣工时间丨2023年
用地面积丨6570㎡
建筑面积丨1.5万㎡
设计单位丨北京华清安地建筑设计有限公司
业主单位丨嘉善全域文化旅游发展有限公司

01项目简介

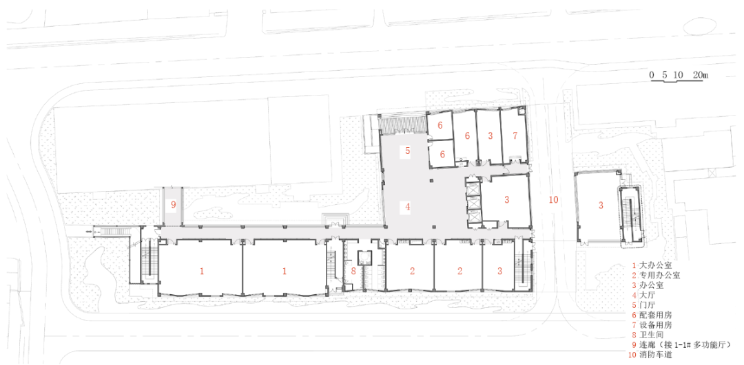
▲总平面图



面临问题
嘉善县极其重视社群中的老年人日常生活和社群活动,一直努力改善提高全县老年人的生活质量,增强社会对该群体的关注度。尤其老城区,是老年人生活的密集场所。但由于老城区建筑密度较大,年代久远,用地紧张,周边环境复杂,市政配套落后于现行标准,一直缺少专门为老年人服务的活动场所,只能借用政府一些老旧办公场所为老年人使用。

项目成果
项目设立之初被命名为梅花坊,是以江南水乡结合吴镇绘画意境,代表善文化精神的园林为核心的城市客厅。其中,一期工程位于北部,借助老城复兴契机,为嘉善老年人在老城核心区“梅花坊”中建设一个专门服务的固定场所。老年社群不仅需要物质上的满足,同样需要精神上的追求与实现。该项目的落成,不仅满足老年人的功能需求,同时提供一个充满艺术感的老年社群建筑。使老城社区结构完整,做到了对全年龄段社员的关怀。
02设立老年大学提升社区价值

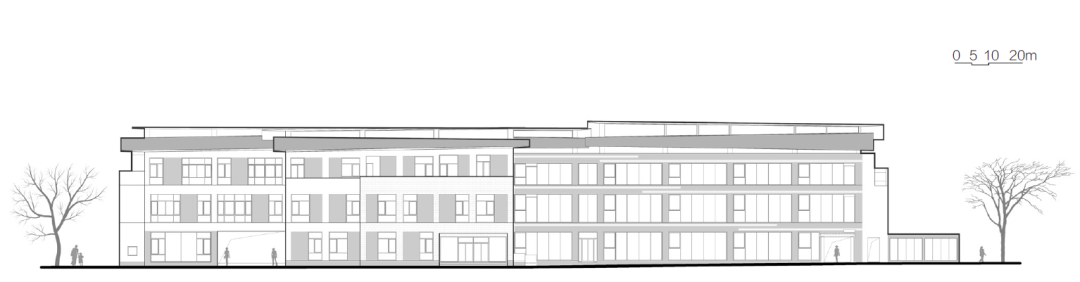
建设方希望尽可能提供使用面积,为老年人服务。设计最大限度的在空间维度上撑满整个用地,同时为了融入“梅花坊”肌理,将硕大的建筑体量切分成四块,并通过错动的屋顶,以及变化的体型进一步削弱尺度感。并通过过街楼的形式,在空间上形成了一个北门户,作为未来整个“梅花坊”片区的北入口。在色调材质上,一方面通过金属、涂料、灰砖等采取当代的构图形式,塑造艺术感,另一方面通过材料本身色彩呼应嘉善江南水乡粉墙黛瓦的传统意境。


03新旧建筑融为整体




保留建筑一直作为老年活动室使用,新建筑与其织补成为完整的功能空间。新老建筑临近处的建筑材料,采取与保留建筑砖瓦颜色接近的青砖与深色金属,做到新旧呼应。其中,保留建筑的砖,在使用过程中经过历次翻修,替换的砖瓦已成为建筑记忆的一部分。项目保留了砖瓦原有的修补样式,延续了场所记忆。








总项目负责人丨张杰
评论