在成都的市中心,少城最南端,有一条被法国梧桐覆盖的静谧街道,由东向西依此路过那些青砖红墙的旧居,梧桐树影下掩映着张彩芹老画室,四川美术学社,新华日报社旧址……祠堂街有机更新项目立足于此。近日,木木美术馆在祠堂街揭幕,与毗邻的街区历史保护建筑一起呈现给成都市民,成为西部艺术圈打卡的新热门。

木木美术馆是祠堂街历史街区改扩建的第一栋新建建筑,和街区南侧的历史保护建筑修缮一起,同时呈现给市民现代和传统的结合,活化这片沉寂了许久的三角街区。项目契合祠堂街改扩建的整体设计策略,借助人民公园的活力和绿意,以艺术街区为设计亮点,打造“公园里的立体艺术街区”,以街串巷,引出祠堂街那绵延的文脉,唤醒这片城市中心的记忆。
CSWADI
街区里的美术馆
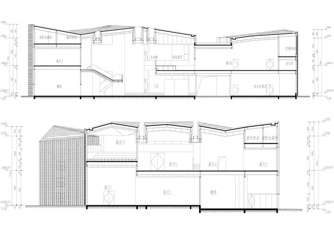
小尺度的街巷空间,各显风韵的历史建筑带来的空间肌理以及三角形的用地范围,对美术馆空间设计提出了不小的挑战。设计团队需要考虑满足城市脉络的同时,植入满足美术馆使用的大空间展厅、方正的布展需求。整体抽取了历史建筑主要的轴线方向,把美术馆体量划分成5个大小不一的屋顶平面,控制每个形体的面宽在8-10m左右的尺度,与街巷和古建筑的尺度相呼应的同时,又能很好地在三角形地块内布局形体。
打碎的建筑形体带来的不仅仅是融洽的屋顶形态,也是与室内展厅空间结合的形体控制。5个小的体量盒子分成2个组群,分别对应美术馆的入口+展厅空间和出口+衍生品商店,再通过一个过街骑楼连接。这样手法实现了祠堂街一侧和古建筑空间在近人尺度上的连续感,以及蜀都大道侧城市体量的需求。再通过起伏连续的坡屋顶变化,让新的形体和老建筑风格协调的同时,兼具现代感。

CSWADI
公园旁的艺术客厅
祠堂街有机更新的设计中,始终贯彻着“焗瓷金缮”的设计理念。焗瓷金缮的中国传统手艺,是一个经由残缺重塑完美的过程。从破碎的瓷器中理出纹路,或用焗钉修补,或用天然大漆黏合,敷以金粉、金箔。焗瓷金缮是尊重器物,凸显新老对比美的瓷器修补艺术。祠堂街上的历史建筑,就像历经风雨的瓷器残片;美术馆等新建建筑和被重新赋予活力的街巷空间,则像修补瓷器时使用的新瓷和金箔,这种“焗瓷金缮”的设计手法,尊重了历史,提供了新的美学效果。


美术馆的室内空间需尽可能减少自然光线的干扰,因此设计将展厅更多布置在街区北侧,以实面陶砖协调古建筑的青砖立面;靠近人民公园的祠堂街一侧布置美术馆的门厅、咖啡厅和衍生品商店等,以镂空砖或玻璃幕墙的立面引绿入室。镂空立面采用不锈钢锁串联,通过四种厚度的陶砖参数化渐变组合,模拟梧桐树叶投影到青砖墙体的阴影,给人营造梦幻般的室内外效果。

CSWADI
美术馆里的“半边桥”
祠堂街的历史上,东街口连接西御街处有一座“半边桥”。半边桥横跨金河,始建于清代,小而简陋,原本极其平常。民国年间开在此处的半边桥老妈蹄花是这座桥最后的记忆。如今少城水栅不在,半边桥难觅原址,我们希望这座美术馆能够延续街区的记忆,重现“半边桥”的历史。

木木美术馆的展厅空间通过几处特色的空间串联:一处悬浮的楼梯、一座跨越门厅的桥和一个过街的特色展厅。这种连接的空间如同当年半边桥连接城市一般,串联空间,为这处小型美术馆提供了不一样的观展体验。

CSWADI
老建筑的修缮与活化
与美术馆一同呈现给公众的还有祠堂街上的历史保护建筑。张彩芹老画室,四川美术学社,新华日报社旧址……这些青砖红墙的旧居掩映在梧桐树影下,被赋予了全新的生命力。
设计团队在与古建筑团队的合作中,针对街区历史保护建筑进行了修旧如旧的保护性修缮。修缮的过程充分尊重历史,还原古建筑原貌,去除了那些附着在建筑立面的杂乱构件,尽可能的保留了建筑在各个时期有价值的遗存。修缮之后的老建筑风格独特,设计精巧。为了使老建筑重焕活力,设计与策划团队合作,为这些老建筑引入了网红商业。在这些品牌的进驻下,老建筑重焕了活力。

CSWADI
结语
这座不到3000㎡的美术馆,工作室协同设计九院的同事付出的精力不亚于一座几万平米的大型公共建筑,谨慎的思考新旧建筑关系,焗瓷金缮的更新策略,是为了更好的在人民公园旁呈现一座细致的街区美术馆。经过与业主、运营方持续2年多的相互沟通,伴随着一期建筑完工和木木美术馆“坂本龙一首展”开幕,祠堂街迎来“新声”。
如今祠堂街有机更新二期部分也正在进行,希望无论是安逸生活的老城居民,还是慕名而来的外地游客,都能感受人民公园旁这处百年历史街区的韵味。

△ 建筑平面图

△ 建筑剖面图
地点:四川成都青羊区
设计时间:2022年2月
建成时间:2023年6月
业主:成都市兴光华城市建设有限公司
用地面积:1068.73㎡
建筑面积:2342.31㎡
结构形式:钢结构
设计单位:
中国建筑西南设计研究院有限公司
项目团队:
中国建筑西南设计研究院有限公司——郑勇工作室+设计九院
• 设计总负责人:郑勇
• 设计副总负责人:陈嘉乐
• 建筑专业:陈嘉乐 刘宇 续文琪 张宗腾
• 结构专业:王恒
• 给排水专业:肖斯达
• 暖通专业:龚博
• 电气专业:李国会
• 建筑智能化专业:张晶
• 幕墙专业:蔡红林 程超
评论