我要投稿
注册 / 登录
在线客服
首 页
HOME
资 讯
NEWS
建 筑
ARCH
景 观
LA
室 内
INTERIOR
品 牌
BRAND
科 技
TECH
更 多
MORE
专 辑
地 产
视 频
周 刊
图 书
招 聘
植物检索
首 页 / HOME
资 讯 / NEWS
建 筑 / ARCH
景 观 / LA
室 内 / INTERIOR
品 牌 / BRAND
科 技 / TECH
更 多 / MORE
专 辑
地 产
视 频
周 刊
图 书
招 聘
榜 单
植物检索
北京科兴凯信厂区 | 中国建筑设计研究院
阅读:6273
2023-09-15
文 / 郑世伟、余浩
2019到2022这三年间,世界发生了很多的事情,有悲伤,有眼泪,也有感动和鼓舞。
作为设计单位,
我们
通过为疫苗企业设计办公和生产场所,
也有幸参与到这段不寻常的历史中来
。
厂区庭院入口
厂区主入口
科兴公司在疫情期间承担了艰巨的任务,在早期,公司用于疫苗研发和生产的物理空间一直处于供不应求的状态。以往的疫苗生产车间大多通过购买既有厂房改建而成,这种方式虽然能够很快地提升产能,但带来的问题也是明显的:既有建筑并非为疫苗生产量身定制,改造成本较高。更为重要的是,受原有建筑空间的制约,很多使用功能并不能完全得到满足
,智能化、人性化的工作空间也难以实现。
正是在这样的背景下,科兴决心打造一个全新的厂区,这个厂区必须能够满足以下期待:它必须让物理空间匹配高效生产的需求;它必须是一处让科学家们身心愉悦的工作场所;它必须是一座绿色低碳的环境友好型建筑;它必须能够代表科兴追求科技、面向未来的企业形象。
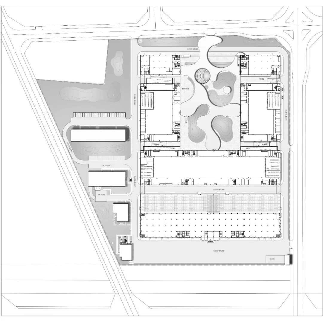
01
理性的布局与流线
凯信厂区用地并不是一块白地,用地上已有近6万㎡的既有建筑,是上一任业主建造的物流仓库以及配套的宿舍和中试车间。整个用地呈直角梯形,北宽南窄。用地南侧魏永路是一条大货车通行较多的公路,魏永路和用地南边界之间还有一条泄洪渠和绿化带,用地西侧是未建成的规划路,再往西是高压走廊及其下方的绿化隔离带。
已有的物流仓库及其物流集散广场占据了用地南侧,中试车间和宿舍则占据了用地的西侧,留下较为方正的一块用地,朝向东侧和北侧,而东北方向也是本地块最主要的车辆和人员来向。
根据上述条件,我们将符合研发和生产要求的5个车间布置成一个朝向北侧
开口的U形。北侧作为主要的人员和办公车辆出入口。再利用南侧原有的仓库和物流广场作为主要货物进入端。位于三层的连廊将仓库和5个车间连接起来,内部布置智能物流系统,将原材料便捷地运送到每个车间。除位于中间的开敞绿地外,其余建筑下方的地下室连接成为一个整体,层高7.2米,净高可以满足冷藏车的通行。成品从车间出来后通过货梯运送至地下室,并由冷藏车直接运走。
厂区庭院内夜景
除此以外,我们还增设了连接既有建筑和新建筑地下室的地下通道,为未来可能的生产联络预留可能性。
除了南侧物流集散广场以外,厂区的其它区域的地面不再铺满叉车和货车,一个高效、智能化的物流体系被收纳到了建筑内部和地下空间,把地面尽量还给景观和人群。
首层平面图
原料入库流线
成品出库流线
02
院落、门厅和人性化
接到项目之初,我们一直就在思考,如何让工厂不是机器的工厂,而是人的工厂?U形的规划布局确定后,我们首先确定的是将5个车间的门厅、生产调度区和客梯厅都朝向中心庭院区域打开。因为生产的需要,其它立面是相对封闭的,但朝向中心庭院的立面则有了更多玻璃幕墙和窗户,尤其在首层,中心庭院的景观几乎是可以蔓延到门厅里的。
厂区庭院内景
在考虑中心庭院景观设计的时候,我们希望对这个巨大的内院空间进行一些尺度上的调整,因此设计了一个蜿蜒于绿地间的步道,这个步道从厂区北入
口一直往南,将人们引导到每个车间的门厅。同时,游廊也将巨大的内院空间划分为多个景观区域,在庭院中精心布置上树木、艺术品、休息亭,科学家和工作人员
在茶余饭后
可以在草地里散步,在庭院中交谈,在大树下思考。也许“一颗苹果掉下来,一个牛顿就诞生了”。
在庭院中,结合人防出口的功能性需求,我们设计了一个下沉的露天剧场,在解决地下疏散和采光通风的同时,也得到了一个具有各种使用可能的场所,古希腊式的理性让它也成为驱车来此的人们对于科兴的第一印象。
下沉庭院内景
剖面图
03
阳光、雨水和绿色建筑
“如果把建筑造型比作一个人的容貌,把建筑功能比作一个人的才能,那么建筑的绿色则可以比作一个人的品格。”在考虑凯信厂区设计的时候,我们也希
望它不仅才貌双全,也拥有卓越的品格。
厂区东北侧
凯信厂区使用钢结构进行建造,在满足装配率和快速建造的同时,也使得建筑生命周期后的循环利用变得可行。我们尽量保留了根据生产要求得到的简洁方正的建筑形体,仅基于生产的需求对立面进行节制的开窗,较小的体型系数和窗地比对降低室内制冷和采暖能耗都有更加积极的贡献,尤其是对于疫苗生产这种需要完全封闭洁净的空间而言。
项目所在地的大兴区聚集了多家知名的光伏生产企业,再加上区政府的倡导,因此在凯信厂区使用光伏技术成为自然而然的事情。我们将新建车间屋顶和原有物流仓库屋顶都安装上光伏板,
立面也覆盖光伏薄膜,每天发电13500度,
完全能够满足厂区照明和生活用电的需求。这些六边形的光伏板将屋顶设备遮盖住,使原本杂乱的屋顶也变得整洁起来,一定程度上也拓展了绿色建筑的美学外延。
凯信厂区所有的雨水都通过管线收集到南北两个雨水调蓄池中,并安装过滤设备,过滤后的水通过中水管线再回用于景观灌溉和洗车冲厕,节约水资源。
04
细胞、几何和极少主义
当建筑的形体是一个极简的立方体时,建筑表皮就成为最重要的视觉元素。我们应该赋予科兴凯信厂区一个怎样的表皮,才能让它从周边巨大的工业建筑中脱颖而出?什么样的表皮能够呼应科兴所从事的事业?展示出科兴对于未来的雄心?
厂区庭院内景
业主和我们都认为生命体中,细胞聚集的形态具有优雅的美感。我们从这一形态中抽象出微妙变化的六边形,使其成为立面的纹理。就像4种核苷酸不同的排列可以构成千姿百态的生命体DNA一样,我们在立面上选用平板、凹版、玻璃和穿孔百叶四种基本单元,基于室内功能需求,运用参数化设计进行排列,形成凯信厂区独特而富有变化的表皮纹理。
厂区庭院内景
因为只有四种基本单元,我们可以考虑全装配式建筑立面。各个不同的单元模块各自集成了内外饰面、夹心保温、通风百叶、采光窗、通风器、泛光灯等组件,每一个单元模块都在工厂里加工好,运送到现场后直接安装到龙骨上即可,在
节约施工周期的同时提高了立面品质。
连廊处细节
最终我们和业主一起确定了具有一定漫反射的白色铝板表面。白色不仅表达着洁净,也暗示着未来。在周边呆笨的工业厂房群中,这一组理性的、白色的、极少主义的、技术至上的建筑群无疑会成为最卓尔不凡的存在。
立面细节
厂区入口门房
立面构成解析
04
结语
科兴的业主认为,科学和艺术是无法分割的,“医学是最美的艺术”。我们在设计和建造科兴凯信厂区的时候也更加确信了这一点——当技术的精确追求到极致时,艺术也就诞生了。
项目地点
北京市大兴区
建成时间
2022年
设计指导
崔愷
设计主持
郑世伟 余浩
建筑专业
姚丽 吕春云 王儒钧 任肖莉 李皓钰
结构专业
史杰 鲍晨泳 杨婷 童建坤
电气专业
常立强 张泽鹏
给排水专业
刘海 崔雅倩
暖通专业
李莹 刘权熠
总图专业
郑爱龙
景观专业
王洪涛 于家涛
室内专业
张洋洋
幕墙专业
孙洲
泛光专业
吴威
ARCHINA 所有平台上发布的项目、招聘、资讯等内容,部分由第三方提供或系统自动收录。资料版权属于第三方,若信息不实或涉及版权问题,需要版权方和第三方沟通,ARCHINA 将配合对接,并在确认无误后删除涉及版权问题的信息,相应的法律责任均由资料提供方承担。
推荐阅读
青川县高新产业孵化中心项目 | 中建西勘院设计
长安科技产业园改造项目 | 八局设计
深圳华宝科技园 | GVL怡境生态
大别山地标优品智慧物流产业园建设项目 | 中信建筑
天津智能创新产业园 | 维思平建筑设计
中电建科技创新产业园 | HZS汇张思
评论
请 [
登录
] 后评论
点击收藏,并建立自己的在线数据库
关于项目
设计公司
中国建筑设计研究院
标签
产业园
项目所在
中国
北京
大兴
手机扫描分享
评论