
设计团队:Arsen Aliverdiiev、Nadine Batz、Sabine Braun、Timo Flott、Kerry Plieninger、Isabel Pohle、Mario Rodriguez、Dominik Schäfer、Jonathan Siegle、Anna Theodossiadou
地址:德国 瓦尔登布赫
面积:4,200 平方米
时间:2023年
摄影:Philip Kottlorz
Tags:食品/巧克力,德国、开放协作、混合多元、品牌传达、色彩、结构、秩序、沉浸式体验、创意花园、多功能箱、几何构建、可持续
Ritter Sport在德国是一个尽人皆知的巧克力品牌。它的正方形包装和每种口味的标志性颜色让人过目不忘。这家家族企业的公司总部位于德国Waldenbuch。IFG设计团队在为其构思新的办公空间时,将其产品大胆而强有力的外观设计融入了我们的空间语言中。这个新的办公环境既充满灵感又催人奋进,从各个层面充分推动创新和交流,促进灵活性和多样性。

除办公之外,我们还为这里的130 名员工创造了其它的空间选择,满足各种会议和休闲需求,为沟通、协作、专注、创造和沉思提供环境。传统与现代交融是Ritter Sport的品牌核心,这一点同样体现在新的办公环境中。
#01 新“配方”

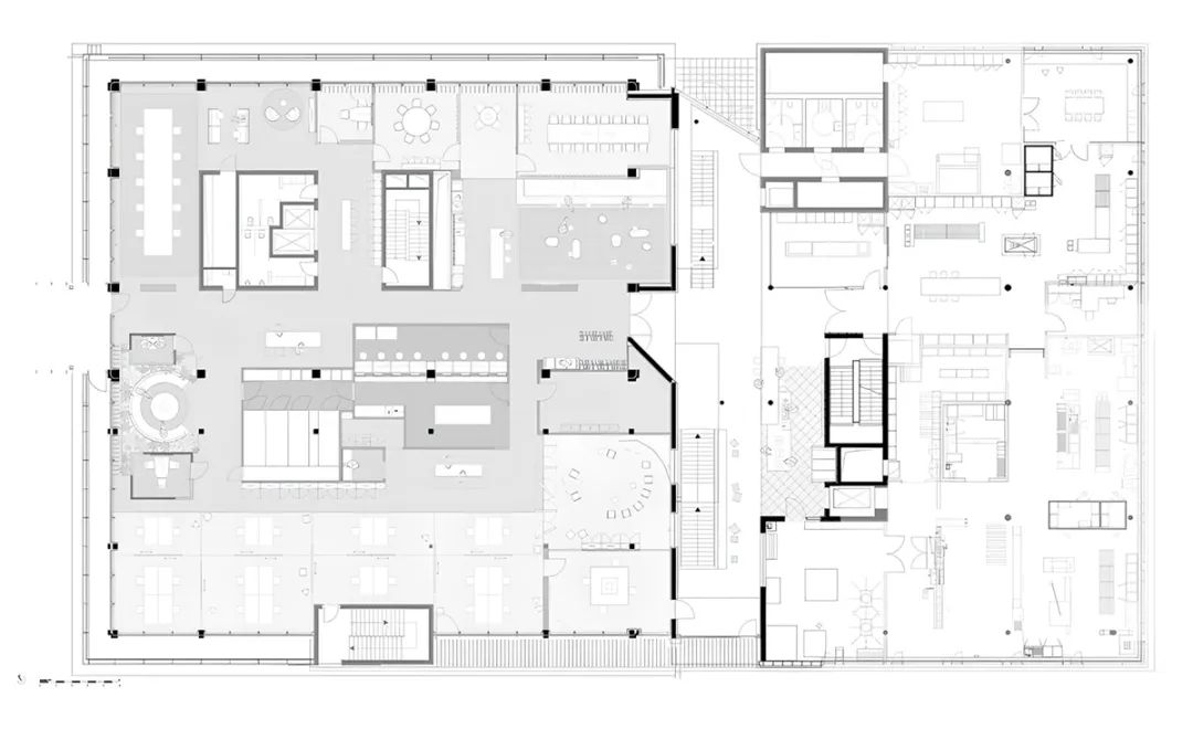
建筑事务所ARGE architekten grebner + amann为源自上世纪八十年代的老楼扩展出一栋新楼,并用玻璃将新旧部分衔接。这个充满张力并光线充足的过渡空间,不仅是新老建筑的交汇之处,它还为新老员工和不同的团队创造了一个相融的氛围。设计师将这个界面作为沟通和交流的场所,在每个楼层变换设计。一楼的“巧克力咖啡”为访客提供品尝巧克力和咖啡等美食的机会。其上一层的“对话咖啡”用于办公会议的席间交流。最顶一层的“远行咖啡”是一个登高远眺,心思神往的去处。




在一楼,还有许多其它地方也体现出Ritter Sport品牌的新工作文化。一条长长的“品牌之路”像一条红线贯穿大楼底层,墙上装饰的品牌相关内容,为昨天、今天和明天的故事提供充足的话题。办公区的“视觉前奏”是一个类似集市的广场区。这里有厨房、壁龛、可以移动的高脚桌和宽敞的阶梯剧场,氛围轻松。发光的天花板形状让人联想到典型的Ritter Sport巧克力包装,既可以容纳大型的线上和线下会议,亦适于举办小型活动。


“巧克力和可可工坊”与研发部门毗邻。所有员工都可以来这里亲手参与制作和品尝心仪口味的巧克力。这也是新的Ritter Sport巧克力总部的一个目标,即从研发到生产,让所有员工都可切身感受产品的魅力,从认同新的工作环境开始,把自己变成不折不扣的巧克力大使。

#02 口味俱全!

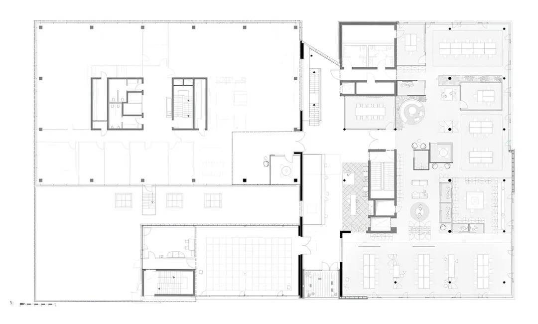
不同的交流和展示形式贯穿所有楼层和区域。非正式和正式的交流与会议场所和专注办公的房间相互交替。基于共享办公的理念,员工可根据手头的任务的工作进度自由选择办公地点。


此外,新的办公区也为约定会议、深入协作、研讨和保密的配方交流等需求提供了隔音会议室。在“创意花园”里,两个半开敞的庇荫亭在郁郁葱葱的环境中孕育创意。在一个中央感官区,专家们可以全身心投入到巧克力的感官体验中,免除视觉干扰。

为了更有力地促进公司的创新精神,突出积极、活力四射的品牌核心,我们还以“创意工坊”的形式营造了一个极具工作室氛围的灵活工作环境。在这里,可移动的空间隔断可同时用作白板或针板。空间构成可根据需要即时变换组合。



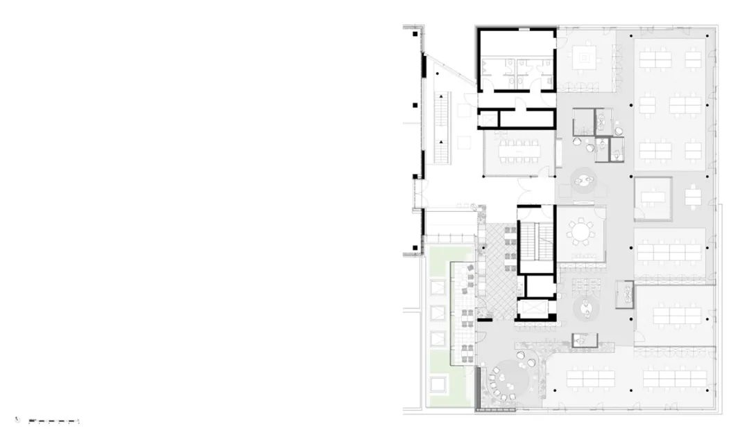
楼上两层是市场营销、通信和销售部门的办公场所。这里也为各种办公需求提供适用选择。这里有开敞的办公区和隐蔽的办公室,有团队工作室和单人空间俱全。灵活的组合和固定的功能点、非正式交流区和保密的谈话区为不同大小的团队提供讨论当前问题,协调未来发展的恰当环境。

除办公之外,新环境还设有特殊功能区,如一个名为“多功能箱”的空间区域,团队可在此通过集体活动促进凝聚力和员工的身心健康。此外,这里还设有一个半开放式的图书馆。图书馆背后是一个用于阅读的露台,从这里可以眺望厂区景观。

分别设于这两个楼层的“对话咖啡”以及带有屋顶花园的“远行咖啡”既是临时的办公场所,也为亲近自然,改善员工身心感受,从而促进工作表现产生积极影响。


#04 一切始于正方形

色彩、结构和秩序的韵律体现在材料的选择中,同时也是传统与现代、Ritter与Sport二元性的延续。部分区域以传统的木材和瓷砖为材料,但配以色彩鲜亮的立面或接缝等现代元素,即构成鲜明对比。








正方形作为主题,不仅体现在材料的选择上,也渗透在清晰有力的家具形态中。这些家具的造型审慎依托于Ritter Sport的商标,具备高度的品牌识别度,即便是墙上的隔音板也不离主题,并将严谨性贯穿至每一个细枝末节。
#05 坚信可持续发展

为了全面满足Ritter Sport最为严格的可持续发展要求,施工特别重视选用节约资源的材料。因此,选择的材料和产品尤其耐用且可回收。这些材料和产品的污染物和排放物含量极低。

整座新楼全部采用符合生态要求的施工方法,并具备高度的使用舒适度,因而获得了德国可持续建筑委员会(DGNB)颁发的金质证书,其贯彻的“从摇篮到摇篮”的标准得到一致好评。依据该标准,所有材料,包括建筑和室内设计材料,均能重回材料循环,或在生物圈中降解。

低排放建筑材料和产品,从墙漆、块毯,到办公桌、座椅,以及灯具、窗帘和植物,甚至包括花盆,均可确保健康的室内环境。还有生物动力照明的概念,以及室内郁郁葱葱,既净化空气,又改善音效的绿色植物,亦在此列。所有这些组分无一不承托了Ritter Sport公司始终致力于人与自然和谐相处的企业目标。

1932 年,Clara Ritter发现传统的长条形巧克力无法装入当时常见的运动衫中,于是便发明了一种正方形的巧克力,为日后的这个德国著名品牌埋下第一粒种。另外一个具有革命性的决定来自Alfred Otto Ritter。他在1974年为不同的巧克力口味指定了专属的颜色,并在当时的广告海报上宣称:“一切都变得更加多彩、更加欢快、更加现代、更加活跃——与之相配的巧克力也不例外”。















特色产品应用——

2、Tom-and-Jerry吧椅,品牌:Magis

3、Slit 艺术茶几,品牌:Hay

4、Easy Nest Chair,丹麦品牌:+Halle,设计师:Form Us With Love

评论