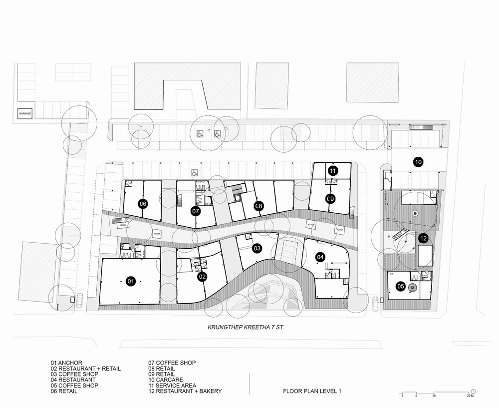
Kreetha7是一处位于泰国曼谷的小型社区商业中心,四周住区林立。所以Kreetha7的规模适中,中间以曲线切开一条内街通道,一侧一层,另一侧两层。建筑有着大大的屋檐出挑,让人们更加适合在这里徜徉。


二层的店铺在一层的基础上向后退了一些,于是有了宽敞的室外露台,甚至首层一些树木都直接冲了上来。

Kreetha7主要经营一些咖啡厅、酒吧、餐厅之类的商业业态。偶尔点缀几个零售店。店铺尺寸都很适中,最大的面积也不超过300平米,尺度宜人,非常适合附近居民在此聚餐,休闲。
设计来自泰国Stu/D/O Architects工作室。


评论