
地址:乌克兰 基辅
面积:1,885 平方米
时间:2021年
摄影:Andrii Posonsky
Tags:美容/时尚,欧莱雅、精致优雅、亲生物设计、自然生态氛围、ABW、开放协作、包容多元、可持续
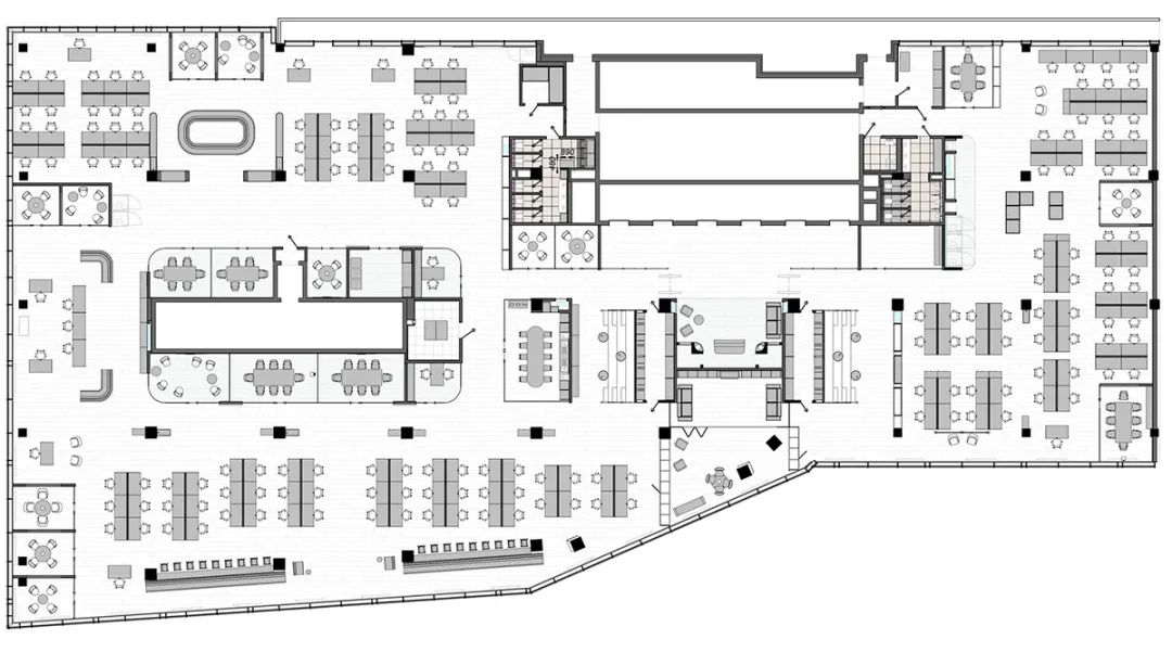
来自TABOORET的设计团队,精彩呈现化妆品公司L'Oréal欧莱雅位于乌克兰基辅的新办公室。本案的设计是对工作空间的全新审视,试图在人们对世界的态度发生转变的同时重新思考其功能任务和概念。

整个室内空间浸淫于精致优雅的配色中,自然绿植的加入更多了一份宁静与舒适的体验。本案的主要目标是打造一个创新的办公环境,通过丰富的功能区规划去满足团队高效工作和休闲的需求。





本案的设计采用了ABW的工作理念,允许员工根据自身需求和喜好自由选择工作场所。他们可以选择在开放空间工作、或在封闭会议室进行商务通话、也可以在演讲和培训礼堂与同事开展头脑风暴会议。当他们需要休息时,他们可以在宁静的空间中冥想、也可以在游戏室放肆嬉戏、或在时尚的厨房用餐区在咖啡的醇香中放松身心。






办公室最舒适的角落之一是全景落地窗的绿色花园。在这里,外面熙熙攘攘的城市景观与室内丰富的绿植交织在一起,同时巧妙的融入鸟鸣的环境音设计,塑造了一个如同自然生态的花园般氛围,带来舒适惬意的放松体验。毗邻此处规划了一处安静的图书区,这里是安静工作或冥想的理想场所。



























1、Gropius Cs1休闲椅,品牌:Noom


评论