“构成”一词包含构成主义中构成造型的概念,以及包豪斯和风格派的抽象造型表现等。
“景观的构成”是景观作为实体和虚体空间中各部位要素的集合形式。
总之,
构成就是研究局部与整体之间关系的原理,
进而解放对形式的想象力。

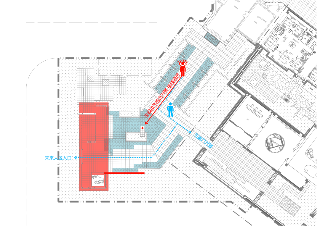
如何在有限场地空间,打造出极具设计感的城市空间,
是本次设计师首要解决的问题。
以下三项基本原则是团队探索出现代景观空间设计方法论:
简
采用简单、规律的几何形体从穿插构成的方法入手,在构成过程中逐步使其丰富,富于变化,变化归于规律,以达到更高级的“简”。
变
通过穿插与分割的处理,不仅能使形丰富多变,而且可以产生新的形态,从而使构成具有动感,在规律中寻求不规律。而点、线、面、体之间的转化可生成与整体相适应的虚面、虚体,进而增强空间趣味性,激发想象力。
合
好的空间必然是多种元素被雕琢、被交融、被综合的结果。

|外场
▼外场位于街角交汇处,是聚集人气的城市界面体验空间。

▼同时街角到入口处的过度空间形成直线式,以联系两种空间,形成新的空间序列。



▼空间序列的排布易于人流出入,希望未来这里也是周边居民散步休闲的选择


▼入口景观简洁有力,绿地形成的空间序列在入口处围合成广场空间,双层水景搭配雕塑形成视觉焦点,听水声潺潺,感受夏日的清凉与宁静。

|前场
▼两侧对称式的水景空间,搭配夹道的红枫,凸显空间序列感和仪式感。



▼穿插流水景墙可以与水景空间合并为轴线体量的一部分


▼入口的景墙与水景的穿插,使得空间之间具有高度的视觉连续性和空间连续性。


|后场
首先前场20m轴线空间很难形成序列感,
而对于轴线的对景是什么我们也做了很多设想:
“纵向拉长轴线景观”
“增大场地空间的视觉面积”
“空间转折的过渡”
“未来大区归家的入口导向空间”
……

▼穿插式的空间关系来自于两个领域的重叠,并且出现了一个共享的空间领域。



·由轴线线性水景过渡至后场水面,视觉上的整体性加强了空间的连续感。
·后场水面和绿化的穿插使得对景视线通透,有效拉伸轴线空间。
·主视点界面不是一个实体,而是拥有近景远景的空间组合,虚实结合,使得对景丰富舒朗而不会产生压迫感。
·根据水面的导引,自然行至主构架景观。
·每一次空间的转折,步移景异。

▼当两个空间以这种方式穿插时,每个体积仍保持着他作为一个空间的可识别性和界限。


经过消减和穿插后的形成均衡而变幻的长方体组合,以简洁的体块咬合方式,结合水面与天然石材本身的质感表达其本质与现代几何美学,使形体通透、轻巧。
▼廊架满足了现在和未来的多角度视线关系,并融合了归家入口、聚集式休闲和林下延伸空间的复合场景。




▼空间围合面之间的洞口,从视觉上把这些面分离出来并明确了这些面的独立性。随着这些洞口的数量和尺寸逐渐增大,空间便失去了原本的围合感,并开始与相邻水空间、绿地空间、道路空间结合起来,会增进与相邻空间的视觉连接性和相互的穿插关系。




▼面层墙体与线层格栅的巧妙组织,纠正了因形的分割而造成的空间重心偏离的问题,从而整体上取得均衡与稳定。


▼一个细长的开洞,不仅能够区分两个面,而且能够暗示远处的景物。

▼“建筑是集合在阳光下的体量所做的巧妙、恰当而卓越的表演。我们的眼睛生来就是为了观察光线中的形体;光与影展现了这些形体……”勒·柯布西耶《走向新建筑》。

▼构筑的体态围绕大树展开,洞口开在空间围合面的边缘,将从视觉上削弱空间转角处的边界,时刻感受树荫下的光影,映衬出金属与石材的柔美与质感。

▼白桦林下静心休憩场

|中庭

▼头顶上的天穹接受漫反射光和环境反射光。它有助于缓和直射光,平衡一个空间的光照水平。光在室内的表面上会造成非常丰富的光影图形,极为生动的表达了空间中的各种形体。


▼运用漫射日光随着每天不同时刻,每年不同季节及不同地点而变化。光就会把天空和季节中变化的色彩传送到它所照亮的墙体及景观家具表面。

▼步入室内中庭,先闻其声,7m高一挂瀑布声韵清脆。配合呼吸灯犹如坠落的星河。庭院中的照明以泛光源为主,使其点缀与景观植物之中,见光不见源。




团队也是第一次挑战室内7m高瀑布设计,
与甲方共同攻克在施工难度与建筑交圈过程中的难题。
7m高的瀑布,浅水面,如何解决溅水的问题?
其一,控制水的流量,使其沿着金属链缓慢流下
其二,设置收水槽,及时排走水槽中的水,使其无法溅出

7m高的瀑布蓄水箱容量较大,如何与建筑幕墙结合和隐藏?
其一,设置条状蓄水箱,便于隐藏与固定,与幕墙龙骨固定
其二,幕墙装饰金属格栅探出墙体一定距离,将蓄水箱、出水口及光源等隐藏至内部


项目名称:长春龙湖天璞示范区
项目地址:吉林省长春市高新区
景观面积:8000㎡
竣工时间:2021.04
景观设计:北京未琦
设计团队:张云尧 郭腾 牛丹薇 葛莹莹 赵世鑫 傅立阳 姜宜良
建筑设计:上海汇张思
施工单位:大连山水一禾
雕塑:沈阳滕毅园林景观工程
软装:沈阳中裕景观工程
摄影:RIF摄影工作室
评论